Miskolc, 51 nm-es, 2 szobás, felújított lakás!

Ingatlan azonosító: HI-2509570

Borsod-Abaúj-Zemplén megye - Miskolc, Tégla lakás


27 300 000 Ft (71 654 €)

  • Hirdetés feladója: Ingatlaniroda
  • Pontos cím: Miskolc
  • Típus: Eladó
  • Belső irodai azonosító: M318378-5098805
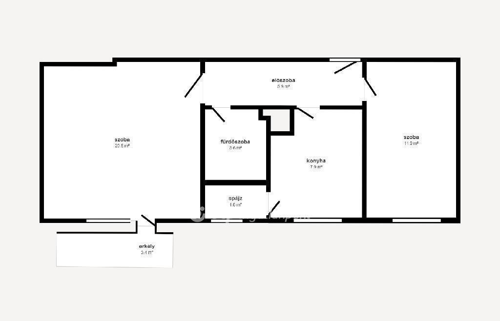
  • Alapterület: 51 m²
  • Építés éve: 1975
  • Egész szobák száma (12 m² felett): 1 db
  • Félszobák száma (6-12 m² között): 1 db
  • Ingatlan állapota: jó állapotú
  • Komfort: összkomfortos
  • Fűtés: gáz (konvektor)
  • Lift: nincs
  • Akadálymentesített: nincs
  • Napelem van?: nincs
  • Erkély: nincs
  • Légkondicionáló: nincs
  • Kilátás: utcai
  • A lakás falazata: Tégla
  • Közös költség mértéke: 10000

Leírás

KIVÉTELES AJÁNLAT MISKOLCON! FELÚJÍTOTT 2 SZOBÁS TÉGLALAKÁS AZONNALI KÖLTÖZÉSSEL! Ne keressen tovább, ha egy kifogástalan állapotú, azonnal költözhető otthont keres Miskolcon, a közkedvelt Torontáli úton! Kínálunk egy rendkívül igényesen felújított, 51 nm-es, 2 szobás téglalakást, amely az első emeleten található, így ideális elhelyezkedést biztosít a házban. A lakás felújítása során a minőség és a modern esztétika volt a fő szempont. A terek frissen cserélt, új burkolatokat kaptak, és egy vadonatúj, modern konyha került beépítésre, amely garantálja, hogy Önnek már csak a beköltözéssel kelljen foglalkoznia. A melegvíz-ellátásról egy energiatakarékos villanybojler gondoskodik, segítve a fenntartási költségek optimalizálását. Kényelmét tovább növeli, hogy a lakáshoz tartozik egy kellemes erkély, ahol reggeli kávéját vagy esti pihenését töltheti. Ráadásul a vételár tartalmaz egy saját, zárható pincehelyiséget is, mely értékes extra tárolókapacitást jelent. Tiszta, rendezett, tégla építésű ház, első emeleti elhelyezkedés ? ez az ingatlan befektetésnek és első otthonnak is tökéletes választás! Ne maradjon le erről a páratlan lehetőségről!OTP Banki hátterünknek köszönhetően finanszírozási igényekben (pl. Otthon Start Hitelprogram , Babaváró, Falusi CSOK, CSOK Plusz, Lakáshitel, Személyi kölcsön stb.), illetve biztosítások tekintetében is díjmentesen, soron kívüli ügyintézéssel segítem ügyfeleim! Referenciaszám: M318378 Referencia szám: M318378

E-mail küldése a hirdetőnek

Hibás hirdetés bejelentése

Sikeres elküldtük a hiba bejelentést.

Hirdető adatai

dr. Rohács Andrea
E-mail cím: rohacs.andrea@otpip.hu
Telefonszám: +36704398153
OTPip
Hirdetés feladója: Ingatlaniroda
Ingatlaniroda: OTPip
E-mail cím: miskolc@otpip.hu
Telefonszám: +36707082395

Képek



Térkép


Ajánlott ingatlanok

Tégla lakás

Miskolc, Gagarin utca, 28 nm-es garzon eladó!

Keresés azonosító alapján: HI-2510624
  • Miskolc
  • Alapterület: 28 m²
  • Ár: 16 400 000 Ft (43 045 €)
  • Feltöltés dátuma: 2025.12.08.
  •  
Tégla lakás
  • Miskolc
  • Alapterület: 38 m²
  • Ár: 21 990 000 Ft (57 717 €)
  • Feltöltés dátuma: 2025.09.22.
  •  
Tégla lakás

Miskolc, 160 nm-es, 4 + 1 szobás lakás/házrész eladó!

Keresés azonosító alapján: HI-2405521
  • Miskolc
  • Alapterület: 160 m²
  • Ár: 59 900 000 Ft (157 218 €)
  • Feltöltés dátuma: 2025.04.23.
  •  
Tégla lakás

Miskolc, Észak-Kilián, 51 nm-es, 2 szobás lakás!

Keresés azonosító alapján: HI-2393320
  • Miskolc
  • Alapterület: 51 m²
  • Ár: 25 400 000 Ft (66 667 €)
  • Feltöltés dátuma: 2025.03.25.
  •  
Facebook
Blogger
Twitter
Tweets by hasznaltingatla
Flickr