Miskolc, belváros, 83 nm-es, 3 szobás földszinti lakás!

Ingatlan azonosító: HI-2541027

Borsod-Abaúj-Zemplén megye - Miskolc, Tégla lakás


59 900 000 Ft (159 733 €)

  • Hirdetés feladója: Ingatlaniroda
  • Pontos cím: Miskolc
  • Típus: Eladó
  • Belső irodai azonosító: M322490-5156564
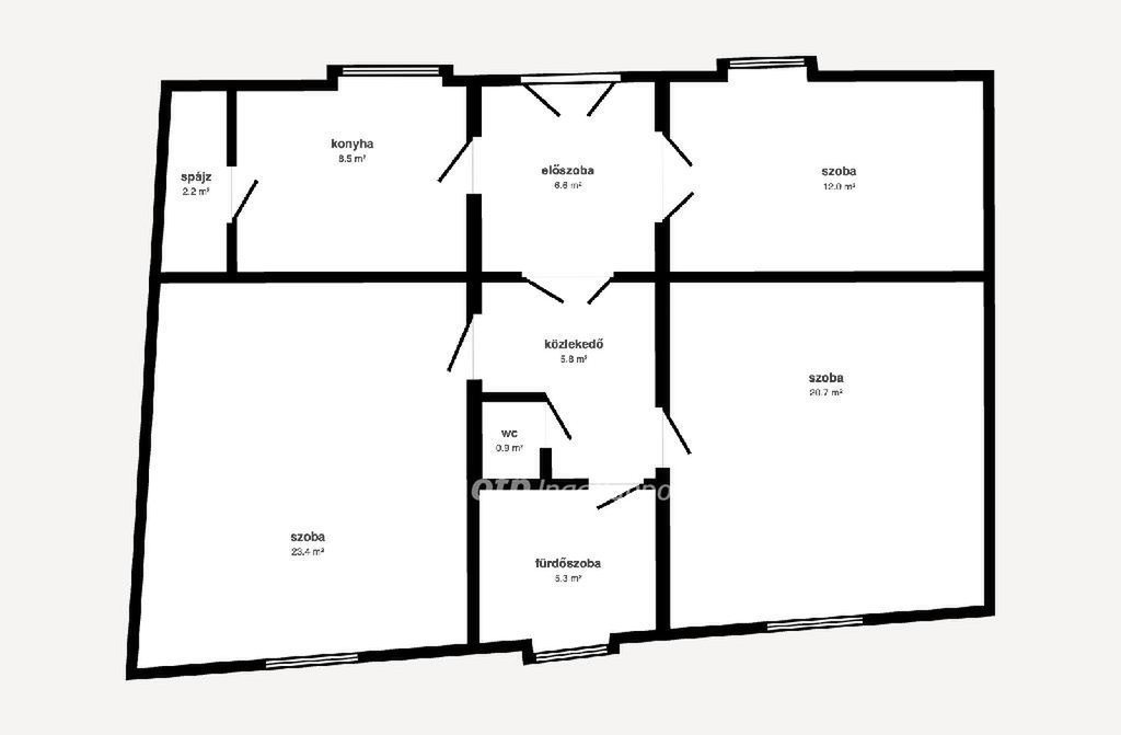
  • Alapterület: 83 m²
  • Építés éve: 1930
  • Egész szobák száma (12 m² felett): 3 db
  • Félszobák száma (6-12 m² között): 0 db
  • Emelet: földszint
  • Ingatlan állapota: közepes állapotú
  • Komfort: összkomfortos
  • Fűtés: egyéb kazán
  • Lift: nincs
  • Akadálymentesített: nincs
  • Napelem van?: nincs
  • Erkély: nincs
  • Légkondicionáló: nincs
  • Kilátás: kertre néző
  • A lakás falazata: Tégla
  • Közös költség mértéke: 13000

Leírás

Miskolc belvárosának egyik legkedveltebb részén kínálunk megvételre egy 83 nm alapterületű, három tágas szobával rendelkező lakást, amely ideális választás mindazok számára, akik a városi élet kényelmét szeretnék élvezni, mégis nyugodt, zöld környezetben keresnek otthont. Az ingatlan praktikus elrendezésű: három külön nyíló, világos szoba, fürdőszoba, külön WC, spájz, kényelmes előtér és közlekedő biztosítja a komfortos mindennapokat. A lakás előtt található parkosított, elzárt udvar különleges hangulatot teremt. A lakáshoz tartozik egy 28 nm-es pince is, amely kiváló tárolási lehetőséget biztosít. Az ingatlan jó állapotú, az elmúlt években több korszerűsítés történt: ennek keretében megújult a fürdőszoba, valamint új kondenzációs gázkazán került beépítésre. Az elektromos hálózat részben felújított. A fürdőszoba különlegessége a masszázsfunkciós kádas zuhanykabin, amely extra kényelmet biztosít. Az elhelyezkedésének és adottságainak köszönhetően a lakás ideális lehet családoknak, pároknak vagy akár befektetési célra is. Hívjon és tekintsük meg együtt! Jöjjön és tekintsük meg együtt, akár hétvégén is! OTP Banki hátterünknek köszönhetően finanszírozási igényekben (pl. Otthon Start Hitelprogram, Babaváró, Falusi CSOK, CSOK Plusz, Lakáshitel, Személyi kölcsön stb.), illetve biztosítások tekintetében is állunk ügyfeleink rendelkezésére! Hívása során hivatkozzon az M322490-es referenciaszámra. Referencia szám: M322490

E-mail küldése a hirdetőnek

Hibás hirdetés bejelentése

Sikeres elküldtük a hiba bejelentést.

Hirdető adatai

dr. Rohács Andrea
E-mail cím: rohacs.andrea@otpip.hu
Telefonszám: +36704398153
OTPip
Hirdetés feladója: Ingatlaniroda
Ingatlaniroda: OTPip
E-mail cím: miskolc@otpip.hu
Telefonszám: +36707082395

Képek



Térkép


Ajánlott ingatlanok

Tégla lakás

Miskolc, Széchenyi utca, 141 nm-es lakás eladó!

Keresés azonosító alapján: HI-2480925
  • Miskolc
  • Alapterület: 141 m²
  • Ár: 59 000 000 Ft (157 333 €)
  • Feltöltés dátuma: 2025.09.26.
  •  
Tégla lakás

Mikolc, belváros, 79 nm-es, 3 szobás lakás!

Keresés azonosító alapján: HI-2465805
  • Miskolc
  • Alapterület: 79 m²
  • Ár: 57 500 000 Ft (153 333 €)
  • Feltöltés dátuma: 2025.08.26.
  •  
Tégla lakás

Miskolc, Diósgyőr, 100 nm-es, 2 szintes lakás!

Keresés azonosító alapján: HI-2541505
  • Miskolc
  • Alapterület: 100 m²
  • Ár: 59 900 000 Ft (159 733 €)
  • Feltöltés dátuma: 2026.02.25.
  •  
Tégla lakás

Miskolc, belváros, 53 nm-es 1. em-i felújított lakás!

Keresés azonosító alapján: HI-2539591
  • Miskolc
  • Alapterület: 53 m²
  • Ár: 46 900 000 Ft (125 067 €)
  • Feltöltés dátuma: 2026.02.20.
  • klímás
Facebook
Blogger
Twitter
Tweets by hasznaltingatla
Flickr