Miskolc, Győri kapu, 54 nm-es 2 szobás felújított lakás!

Ingatlan azonosító: HI-2546607

Borsod-Abaúj-Zemplén megye - Miskolc, Panel lakás


27 900 000 Ft (72 093 €)

  • Hirdetés feladója: Ingatlaniroda
  • Pontos cím: Miskolc
  • Típus: Eladó
  • Belső irodai azonosító: M320727-5164456
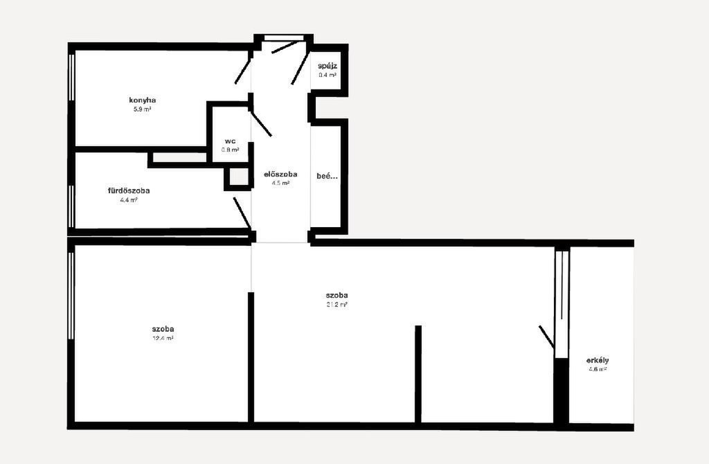
  • Alapterület: 54 m²
  • Építés éve: 1975
  • Egész szobák száma (12 m² felett): 2 db
  • Félszobák száma (6-12 m² között): 0 db
  • Emelet: 4. emelet
  • Ingatlan állapota: közepes állapotú
  • Komfort: összkomfortos
  • Fűtés: gáz (konvektor)
  • Lift: nincs
  • Akadálymentesített: nincs
  • Napelem van?: nincs
  • Erkély: nincs
  • Légkondicionáló: nincs
  • Kilátás: utcai
  • A lakás falazata: Panel
  • Közös költség mértéke: 12000

Leírás

Eladó 2 szobás lakás Miskolc közkedvelt részén, a Győri kapuban! Miskolc Győri kapu városrészében, egy 4 emeletes társasház 4. emeletén kínálunk megvételre egy 54 m2-es, 2 szobás lakást. Az ingatlan praktikus elrendezésű, világos helyiségekkel rendelkezik, így ideális választás lehet fiatal pároknak, kisebb családnak vagy akár befektetés céljára is. Főbb jellemzők: -54 nm alapterület -2 külön szoba -Konvektoros fűtés -Tehermentes, rövid időn belül birtokba vehető -Közkedvelt, jól ellátott környék A lakás elhelyezkedése kiváló: a belváros mindössze 10 perc alatt elérhető, a közelben boltok, iskola, óvoda, tömegközlekedési lehetőségek megtalálhatók. Remek lehetőség saját otthonnak vagy biztos befektetésnek egyaránt! Amennyiben az ingatlan felkeltette az érdeklődését, hívjon bizalommal és tekintsük meg együtt akár hétvégén is! OTP Banki hátterünknek köszönhetően finanszírozási igényekben (pl. Otthon Start Hitel Program, Babaváró, CSOK, Felújítási hitel, stb.) is állunk ügyfeleink rendelkezésére. Az ingatlan előre egyeztetett időpontban megtekinthető, megbízható ügyvédi közreműködést, szerződéskötéshez irodai hátteret biztosítunk. Referencia szám: M320727 Referencia szám: M320727

E-mail küldése a hirdetőnek

Hibás hirdetés bejelentése

Sikeres elküldtük a hiba bejelentést.

Hirdető adatai

dr. Rohács Andrea
E-mail cím: rohacs.andrea@otpip.hu
Telefonszám: +36704398153
OTPip
Hirdetés feladója: Ingatlaniroda
Ingatlaniroda: OTPip
E-mail cím: miskolc@otpip.hu
Telefonszám: +36707082395

Képek



Térkép


Ajánlott ingatlanok

Panel lakás

Miskolc, Kőporos utca, 61 nm-es,

Keresés azonosító alapján: HI-2507741
  • Miskolc
  • Alapterület: 61 m²
  • Ár: 35 500 000 Ft (91 731 €)
  • Feltöltés dátuma: 2025.12.01.
  •  
Panel lakás

Miskolc, Klapka György utca, 28 nm-es garzon eladó!

Keresés azonosító alapján: HI-2532871
  • Miskolc
  • Alapterület: 28 m²
  • Ár: 20 000 000 Ft (51 680 €)
  • Feltöltés dátuma: 2026.02.05.
  •  
Panel lakás

Miskolc, Avas, 55 nm-es felújítoott lakás!

Keresés azonosító alapján: HI-2524907
  • Miskolc
  • Alapterület: 55 m²
  • Ár: 36 900 000 Ft (95 349 €)
  • Feltöltés dátuma: 2026.01.22.
  •  
Panel lakás

Miskolc, belváros, 63 nm-es, felújított, 2 + 1 szobás lakás.

Keresés azonosító alapján: HI-2514231
  • Miskolc
  • Alapterület: 63 m²
  • Ár: 39 900 000 Ft (103 101 €)
  • Feltöltés dátuma: 2025.12.20.
  •  
Facebook
Blogger
Twitter
Tweets by hasznaltingatla
Flickr