Miskolc, Károly utca, 55 nm-es, 2 szobás lakás!

Ingatlan azonosító: HI-2514167

Borsod-Abaúj-Zemplén megye - Miskolc, Panel lakás


32 500 000 Ft (85 979 €)

  • Hirdetés feladója: Ingatlaniroda
  • Pontos cím: Miskolc
  • Típus: Eladó
  • Belső irodai azonosító: M318298-5110924
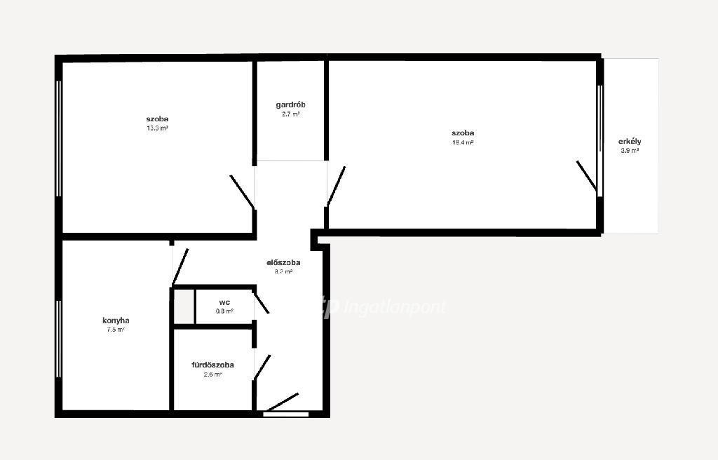
  • Alapterület: 55 m²
  • Építés éve: 1986
  • Egész szobák száma (12 m² felett): 2 db
  • Félszobák száma (6-12 m² között): 0 db
  • Emelet: 2. emelet
  • Ingatlan állapota: közepes állapotú
  • Komfort: összkomfortos
  • Fűtés: gáz (cirko)
  • Lift: nincs
  • Akadálymentesített: nincs
  • Napelem van?: nincs
  • Erkély: nincs
  • Légkondicionáló: nincs
  • Kilátás: utcai
  • A lakás falazata: Panel
  • Közös költség mértéke: 5000

Leírás

Eladó Miskolc egyik kedvelt részén, Újgyőri főtér szomszédságában, a Károly utcában, egy 55 nm-es, 2 szobás, második emeleti, tehermentes panel lakás! A lakás átlagos állapotú, jól elrendezéssel rendelkezik. A két szoba parkettás, a többi helyiség járólappal burkolt. A nyílászárók műanyag, hőszigetelt ablakok redőnnyel, a lépcsőház pedig zárható, tiszta és rendezett. A társasház 1986-ban épült, és külön előnye, hogy a lépcsőház saját kazánnal, teljesen egyedi fűtési rendszerrel rendelkezik ? ez kedvező fenntartási költségeket biztosít. Nagyszobában klíma is elhelyezésre került, beépített szekrény és a konyhabútor a vételár részét képezi, pince is tartozik hozzá. A környék csendes, rendezett, a lakóközösség jó, a közelben villamosmegálló, buszmegálló. Ideális választás első lakásnak, befektetésnek vagy kisebb család számára. Banki háttérrel, teljes körű ügyintézéssel segítem a vásárlást! Otthon Start Hitelprogram, CSOK Plusz és lakáshitel ügyintézésben is támogatást nyújtok díjmentesen! Érdeklődés esetén hivatkozzon M318298 azonosítási számra. Referencia szám: M318298

E-mail küldése a hirdetőnek

Hibás hirdetés bejelentése

Sikeres elküldtük a hiba bejelentést.

Hirdető adatai

dr. Rohács Andrea
E-mail cím: rohacs.andrea@otpip.hu
Telefonszám: +36704398153
OTPip
Hirdetés feladója: Ingatlaniroda
Ingatlaniroda: OTPip
E-mail cím: miskolc@otpip.hu
Telefonszám: +36707082395

Képek



Térkép


Ajánlott ingatlanok

Panel lakás

Miskolc, Kuruc utca, 54 nm-es, 1 + 2 félszobás lakás!

Keresés azonosító alapján: HI-2506836
  • Miskolc
  • Alapterület: 54 m²
  • Ár: 34 900 000 Ft (92 328 €)
  • Feltöltés dátuma: 2025.11.27.
  •  
Panel lakás

Miskolc, Avas, 55 nm-es, 2 szobás lakás!

Keresés azonosító alapján: HI-2493353
  • Miskolc
  • Alapterület: 55 m²
  • Ár: 25 400 000 Ft (67 196 €)
  • Feltöltés dátuma: 2025.10.23.
  •  
Panel lakás

Miskolc, Avas, 35 nm-es, panelprogramos lakás!

Keresés azonosító alapján: HI-2530116
  • Miskolc
  • Alapterület: 35 m²
  • Ár: 24 500 000 Ft (64 815 €)
  • Feltöltés dátuma: 2026.02.04.
  •  
Panel lakás

Miskolc, Szentpéteri kapu, 35 nm-es, 1 + 1 szobás lakás!

Keresés azonosító alapján: HI-2523645
  • Miskolc
  • Alapterület: 35 m²
  • Ár: 26 900 000 Ft (71 164 €)
  • Feltöltés dátuma: 2026.01.17.
  •  
Facebook
Blogger
Twitter
Tweets by hasznaltingatla
Flickr