Munkásszállásnak ,akár pályázatra is alkalmas ingatlan ELADÓ!

Ingatlan azonosító: HI-2463352

Bács-Kiskun megye - Tiszakécske, Csarnok


135 000 000 Ft (351 563 €)

  • Hirdetés feladója: Ingatlaniroda
  • Pontos cím: Tiszakécske
  • Típus: Eladó
  • Belső irodai azonosító: 3615731-4277412
  • Alapterület: 960 m²
  • Fűtés: egyéb
  • Napelem van?: nincs

Leírás

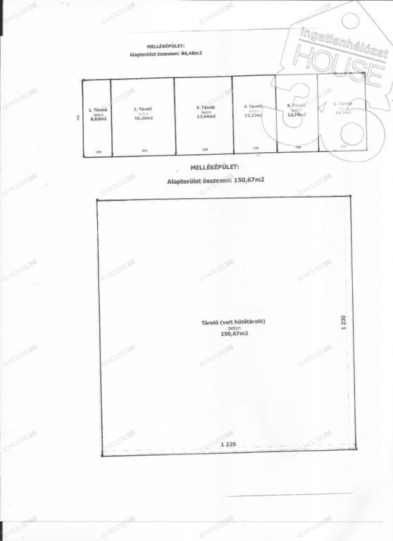
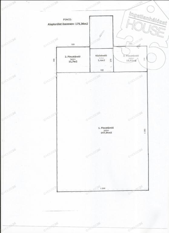
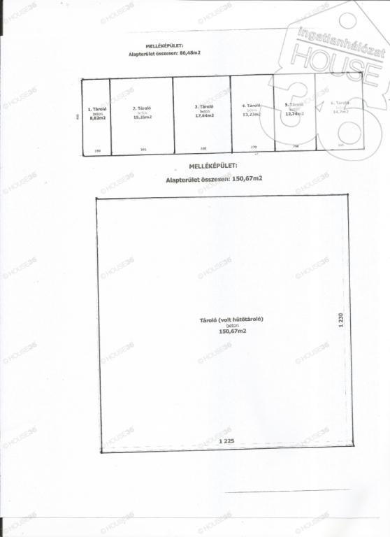
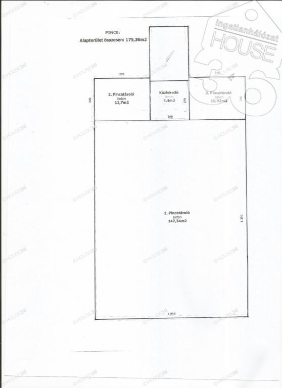
Tiszakécskén, közvetlenül a főút mellett a tiszakécskei gyógy-és termál fürdő és a Tisza parti üdülőövezet közelében, eladó egy több épületből álló ingatlan. A most megépülő M44 autópályán könnyen elérhető az ország bármely pontja. Az épület alkalmas szálloda, panzió, nyugdíjas otthon, munkás szálló kialakítására is. A XX.század elején épült alápincézett kastély épületben 8 szoba és fürdők. A 80-as években épült L alakú épületben amelynek egyik szárnya emeletes 13 szoba található mindegyikben fürdőszobával. Melléképület raktárakkal. A telken található még egy 150 m2 alapterületű hűtőház. - összközműves - teljesen bekerített 8599 m2 telek - buszmegálló a kapuban - főút mellett - kúria épület 210.74 m2 - Pince a főépület alatt 175.36 m2 - L alakú épület földszint 349,51 m2 - L alakú épület emelet 228.3 m2 - Tároló hűtő 150.67 m2 - melléképület 84.48 m2 Az épületekben további szobák kialakítására is van lehetőség. Rendezett parkosított terület . Mivel a 90-es évek vége óta az ingatlan nincs hasznosítva ezért felújítást igényel. Az ingatlan akár hét végén is megtekinthető.Hívjon.Nézzük meg. ​ Figyelem az adatlap megbízónktól kapott adatok alapján készült pontosságáért felelősséget vállalni nem tudunk. Az iroda legfrissebb, aktuális kínálatát a HOUSE36 saját weboldalán találja!

E-mail küldése a hirdetőnek

Hibás hirdetés bejelentése

Sikeres elküldtük a hiba bejelentést.

Hirdető adatai

Kocsis Zsuzsanna
E-mail cím: zsuzsanna.kocsis@h36.hu
Telefonszám: +36707959014
Hirdetés feladója: Ingatlaniroda

Képek



Térkép


Ajánlott ingatlanok

Csarnok

Szelevény központjában telephely ELADÓ!

Keresés azonosító alapján: HI-2463354
  • Szelevény
  • Alapterület: 300 m²
  • Ár: 45 000 000 Ft (117 188 €)
  • Feltöltés dátuma: 2025.08.19.
  •  
Tégla lakás

Kivételes lehetőség a belváros peremén!

Keresés azonosító alapján: HI-2472139
  • Kecskemét
  • Alapterület: 91 m²
  • Ár: 74 200 000 Ft (193 229 €)
  • Feltöltés dátuma: 2025.09.10.
  •  
Szántó
  • Kecskemét
  • Alapterület: 80 m²
  • Telekterület: 44 177 m²
  • Ár: 52 990 000 Ft (137 995 €)
  • Feltöltés dátuma: 2025.10.07.
  •  
Családi ház

Nagykőrös csendes részén 120 m2-es családi ház eladó!

Keresés azonosító alapján: HI-2500301
  • Nagykőrös
  • Alapterület: 120 m²
  • Telekterület: 696 m²
  • Ár: 49 900 000 Ft (129 948 €)
  • Feltöltés dátuma: 2025.11.11.
  •  
Facebook
Blogger
Twitter
Tweets by hasznaltingatla
Flickr