Nagykanizsán a Katonaréten eladó udvari lakás kertkapcsolattal!

Ingatlan azonosító: HI-2551360

Zala megye - Nagykanizsa, Családi ház


16 800 000 Ft (42 857 €)

  • Hirdetés feladója: Ingatlaniroda
  • Pontos cím: Nagykanizsa
  • Típus: Eladó
  • Belső irodai azonosító: HK-5176207-5176207
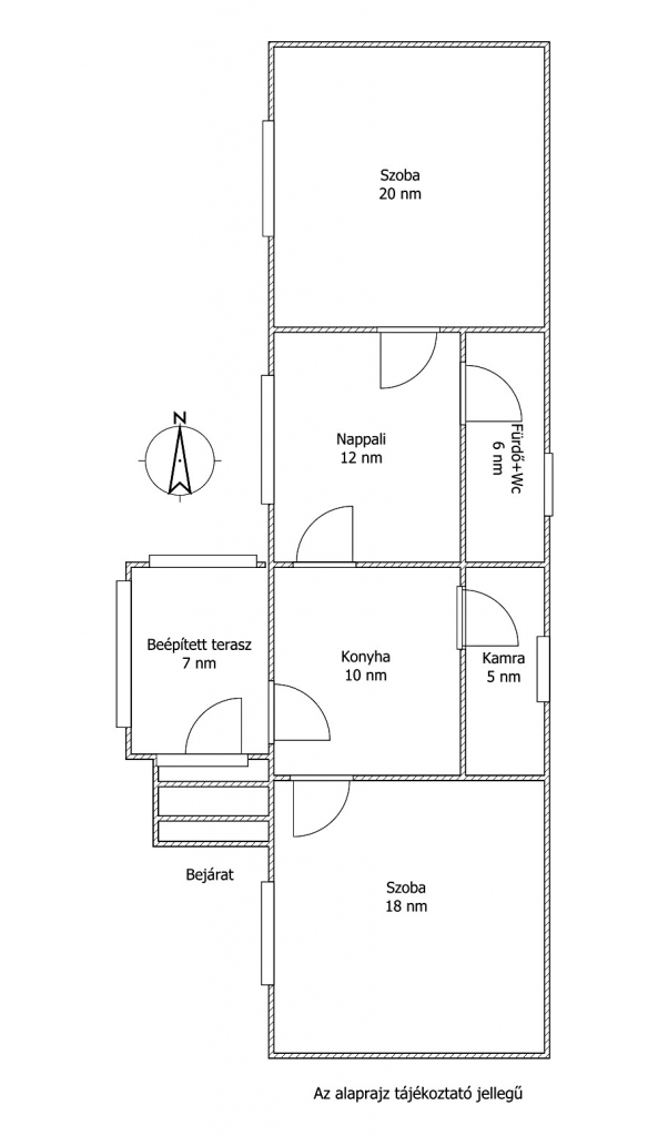
  • Alapterület: 78 m²
  • Telekterület: 100 m² ( 28 négyszögöl )
  • Építés éve: 1968
  • Egész szobák száma (12 m² felett): 3 db
  • Félszobák száma (6-12 m² között): 0 db
  • Fürdőszobák száma: 1 db
  • Ingatlan állapota: közepes állapotú
  • Komfort: összkomfortos
  • Fűtés: gáz (konvektor)
  • Pince: nincs
  • Akadálymentesített: nincs
  • Napelem van?: nincs
  • Légkondicionáló: nincs

Leírás

Nagykanizsa kedvelt városrészében található ez az 1968-ban épült, összközműves, 78 nm-es, két szoba+ nappalis udvari téglalakás, melyet most eladásra kínálunk. Az ingatlant jelenleg nem lakják, az azonnali birtokba adás lehetőségével ajánljuk. Állapotát tekintve felújítandó, az utóbbi időben a karbantartások elmaradtak. Fűtése gázkonvektorokkal történik. A házhoz beépített terasz, és saját használatú udvarrész is tartozik. A telek osztatlan közös tulajdonban van a szomszéddal. Parkolni a ház előtt lehetséges. További részletes információkért keressen minket elérhetőségeinken! Referencia szám: HK-5176207-HI

E-mail küldése a hirdetőnek

Hibás hirdetés bejelentése

Sikeres elküldtük a hiba bejelentést.

Hirdető adatai

Agoudan Dániel
E-mail cím: info@neberingatlan.com
Telefonszám: +36202991333
Hirdetés feladója: Ingatlaniroda

Képek



Térkép


Ajánlott ingatlanok

Családi ház
  • Nagykanizsa
  • Alapterület: 214 m²
  • Telekterület: 119 m²
  • Ár: 129 900 000 Ft (331 378 €)
  • Feltöltés dátuma: 2026.01.27.
  •  
Családi ház

Eladó 4+nappali szobás ház Gyékényesen!

Keresés azonosító alapján: HI-2526719
  • Gyékényes
  • Alapterület: 120 m²
  • Telekterület: 4 031 m²
  • Ár: 41 990 000 Ft (107 117 €)
  • Feltöltés dátuma: 2026.01.27.
  •  
Családi ház
  • Bázakerettye
  • Alapterület: 83 m²
  • Telekterület: 2 101 m²
  • Ár: 49 900 000 Ft (127 296 €)
  • Feltöltés dátuma: 2026.02.26.
  • klímás
Családi ház

Surdon 60 m2-es 2 szobás ház kényelmes telekkel eladó!

Keresés azonosító alapján: HI-2526751
  • Surd
  • Alapterület: 60 m²
  • Telekterület: 2 583 m²
  • Ár: 10 500 000 Ft (26 786 €)
  • Feltöltés dátuma: 2026.01.27.
  •  
Facebook
Blogger
Twitter
Tweets by hasznaltingatla
Flickr