Nappali + 3 szobás új építésű családi ház eladó Jakabszálláson!

Ingatlan azonosító: HI-2530243

Bács-Kiskun megye - Jakabszállás, Családi ház


78 900 000 Ft (215 574 €)

  • Hirdetés feladója: Ingatlaniroda
  • Pontos cím: Jakabszállás
  • Típus: Eladó
  • Belső irodai azonosító: 3621082-5128418
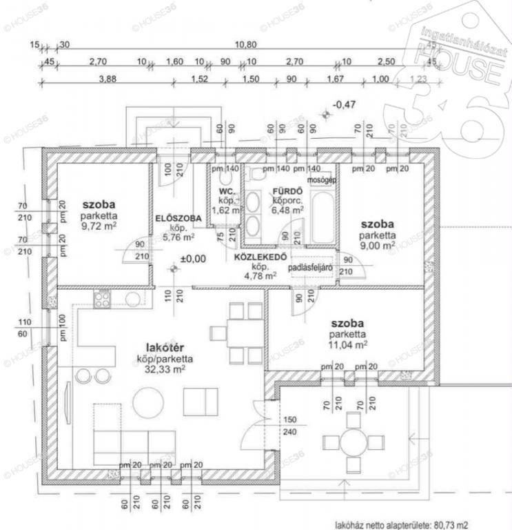
  • Alapterület: 81 m²
  • Telekterület: 644 m² ( 179 négyszögöl )
  • Építés éve: 2026
  • Egész szobák száma (12 m² felett): 4 db
  • Félszobák száma (6-12 m² között): 0 db
  • Fürdőszobák száma: 1 db
  • Ingatlan állapota: új építésű
  • Fűtés: gáz (cirko)
  • Pince: nincs
  • Akadálymentesített: nincs
  • Energiatanúsítvány: A
  • Napelem van?: nincs
  • Légkondicionáló: nincs

Leírás

81 m2-es, nappali + 3 szobás, új építésű ház Jakabszálláson! Az ár tartalmazza a telek árát is! Jellemzői: telek 644 m2 lakótér 81 m2 10 m2 térkövezett terasz gáz-cirkó fűtés, Bosch 2300 kazánnal, padlófűtés 2 klíma Porotherm főfalak 10 cm-es tégla válaszfalak (belső) Fa födémszerkezet láng és gombamentesítő anyaggal kezelve Cserép tetőfedés Műanyag, bukó-nyíló nyílászárók (3 rétegű, 6 légkamrás), biztonsági bejárati ajtó redőny, szúnyogháló 15 cm EPS homlokzati hőszigetelés 2026 decemberi átadás A hirdetésben szereplő fotók egy referenciaházban készültek. ​ A tulajdonos kérésére az ingatlan bemutatása egy személyes konzultáció után történik, ahol részletes tájékoztatást kaphat az ingatlan paramétereiről és egyéb kényelmi szolgáltatásairól! Figyelem az adatlap megbízónktól kapott adatok alapján készült, pontosságáért felelősséget nem tudunk vállalni! Az iroda legfrissebb, aktuális kínálatát a HOUSE36 saját weboldalán találja!

E-mail küldése a hirdetőnek

Hibás hirdetés bejelentése

Sikeres elküldtük a hiba bejelentést.

Hirdető adatai

Kollerné Rádi Valéria
E-mail cím: valeria.kollerne@h36.hu
Telefonszám: +36704211201
Hirdetés feladója: Ingatlaniroda

Képek



Térkép


Ajánlott ingatlanok

Családi ház

EXKLUZÍV OTTHON KECSKEMÉTEN, ELEGANCIA, LUXUS, KÉNYELEM!

Keresés azonosító alapján: HI-2539511
  • Kecskemét
  • Alapterület: 120 m²
  • Telekterület: 1 500 m²
  • Ár: 145 000 000 Ft (396 175 €)
  • Feltöltés dátuma: 2026.02.20.
  •  
Családi ház

Kecskeméten új családi ház eladó!

Keresés azonosító alapján: HI-2530152
  • Kecskemét
  • Alapterület: 90 m²
  • Telekterület: 1 501 m²
  • Ár: 82 900 000 Ft (226 503 €)
  • Feltöltés dátuma: 2026.02.04.
  •  
Családi ház

Kecskeméten a Nagykörúton családi ház eladó!

Keresés azonosító alapján: HI-2561240
  • Kecskemét
  • Alapterület: 100 m²
  • Telekterület: 277 m²
  • Ár: 54 900 000 Ft (150 000 €)
  • Feltöltés dátuma: 2026.04.15.
  •  
Családi ház

Öntse formába elképzeléseit!

Keresés azonosító alapján: HI-2556047
  • Kecskemét
  • Alapterület: 105 m²
  • Telekterület: 5 614 m²
  • Ár: 48 000 000 Ft (131 148 €)
  • Feltöltés dátuma: 2026.03.30.
  •  
Facebook
Blogger
Twitter
Tweets by hasznaltingatla
Flickr