Nappali + 3 szobás új építésű családi ház eladó Jakabszálláson!

Ingatlan azonosító: HI-2532006

Bács-Kiskun megye - Jakabszállás, Családi ház


78 900 000 Ft (222 254 €)

  • Hirdetés feladója: Ingatlaniroda
  • Pontos cím: Jakabszállás
  • Típus: Eladó
  • Belső irodai azonosító: 3621082-5131612
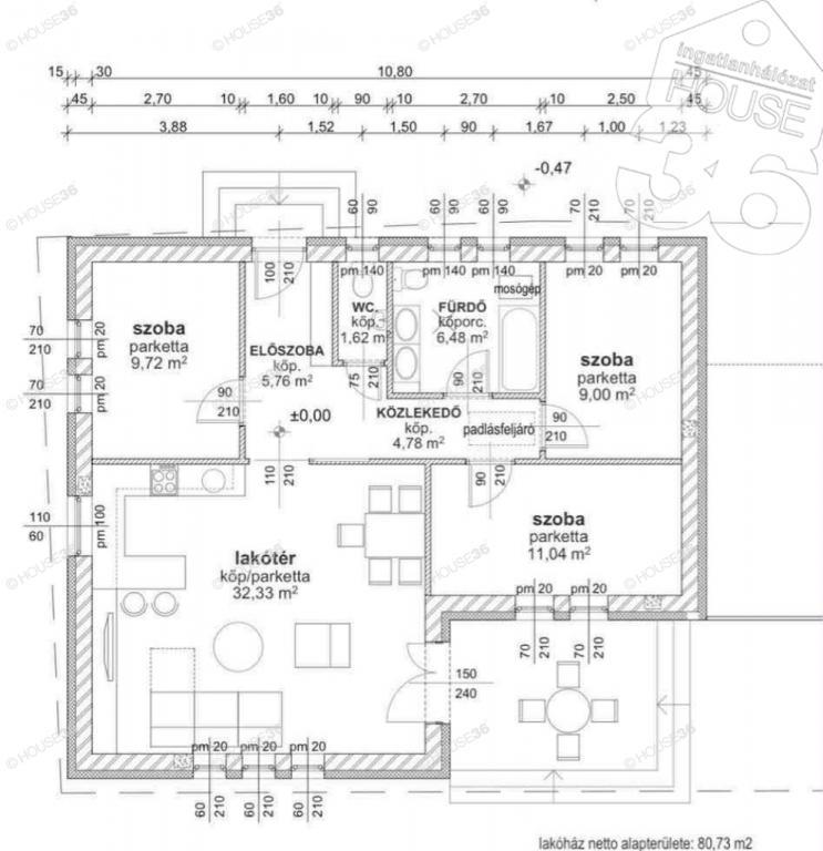
  • Alapterület: 81 m²
  • Telekterület: 644 m² ( 179 négyszögöl )
  • Építés éve: 2026
  • Egész szobák száma (12 m² felett): 4 db
  • Félszobák száma (6-12 m² között): 0 db
  • Ingatlan állapota: új építésű
  • Fűtés: gáz (cirko)
  • Pince: nincs
  • Akadálymentesített: nincs
  • Energiatanúsítvány: A
  • Napelem van?: nincs
  • Légkondicionáló: nincs

Leírás

ÚJ ÉPÍTÉSŰ CSALÁDI HÁZ ELADÓ JAKABSZÁLLÁSON KECSKEMÉTTŐL CSUPÁN 20 perc távolságra ! 81 m2-es, nappali + 3 szobás, új építésű ház Jakabszálláson! Az ár tartalmazza a telek árát is! Jellemzői: telek 644 m2 lakótér 81 m2 10 m2 térkövezett terasz gáz-cirkó fűtés, Bosch 2300 kazánnal, padlófűtés 2 klíma Porotherm főfalak 10 cm-es tégla válaszfalak (belső) Fa födémszerkezet láng és gombamentesítő anyaggal kezelve Cserép tetőfedés Műanyag, bukó-nyíló nyílászárók (3 rétegű, 6 légkamrás), biztonsági bejárati ajtó redőny, szúnyogháló 15 cm EPS homlokzati hőszigetelés 2026 decemberi átadás A hirdetésben szereplő fotók egy referenciaházban készültek. ​ A tulajdonos kérésére az ingatlan bemutatása egy személyes konzultáció után történik, ahol részletes tájékoztatást kaphat az ingatlan paramétereiről és egyéb kényelmi szolgáltatásairól! Figyelem az adatlap megbízónktól kapott adatok alapján készült, pontosságáért felelősséget nem tudunk vállalni! Az iroda legfrissebb, aktuális kínálatát a HOUSE36 saját weboldalán találja!

E-mail küldése a hirdetőnek

Hibás hirdetés bejelentése

Sikeres elküldtük a hiba bejelentést.

Hirdető adatai

Alt Róbertné
E-mail cím: erika.altne@h36.hu
Telefonszám: +36706330680
Hirdetés feladója: Ingatlaniroda

Képek



Térkép


Ajánlott ingatlanok

Családi ház
  • Jakabszállás
  • Alapterület: 350 m²
  • Telekterület: 1 510 m²
  • Ár: 127 500 000 Ft (359 155 €)
  • Feltöltés dátuma: 2026.02.18.
  •  
Családi ház

Tiszaalpáron - 3 szobás, nappalis családi ház eladó!

Keresés azonosító alapján: HI-2531972
  • Móricz Zsigmond utca
  • Alapterület: 99 m²
  • Telekterület: 1 756 m²
  • Ár: 29 900 000 Ft (84 225 €)
  • Feltöltés dátuma: 2026.02.04.
  •  
Családi ház

Kiváló elosztású ház tágas térkihasználással!

Keresés azonosító alapján: HI-2532005
  • Kerekegyháza
  • Alapterület: 109 m²
  • Telekterület: 913 m²
  • Ár: 39 900 000 Ft (112 394 €)
  • Feltöltés dátuma: 2026.02.04.
  •  
Családi ház

Regényes környezetben, igazi sváb ház!

Keresés azonosító alapján: HI-2531992
  • Tormás
  • Alapterület: 110 m²
  • Telekterület: 3 249 m²
  • Ár: 15 200 000 Ft (42 817 €)
  • Feltöltés dátuma: 2026.02.04.
  •  
Facebook
Blogger
Twitter
Tweets by hasznaltingatla
Flickr