Nappali + 3 szobás új építésű családi ház eladó Jakabszálláson!

Ingatlan azonosító: HI-2532259

Bács-Kiskun megye - Jakabszállás, Családi ház


78 900 000 Ft (222 254 €)

  • Hirdetés feladója: Ingatlaniroda
  • Pontos cím: Jakabszállás Szilfa utca
  • Típus: Eladó
  • Belső irodai azonosító: 3621082-5128523
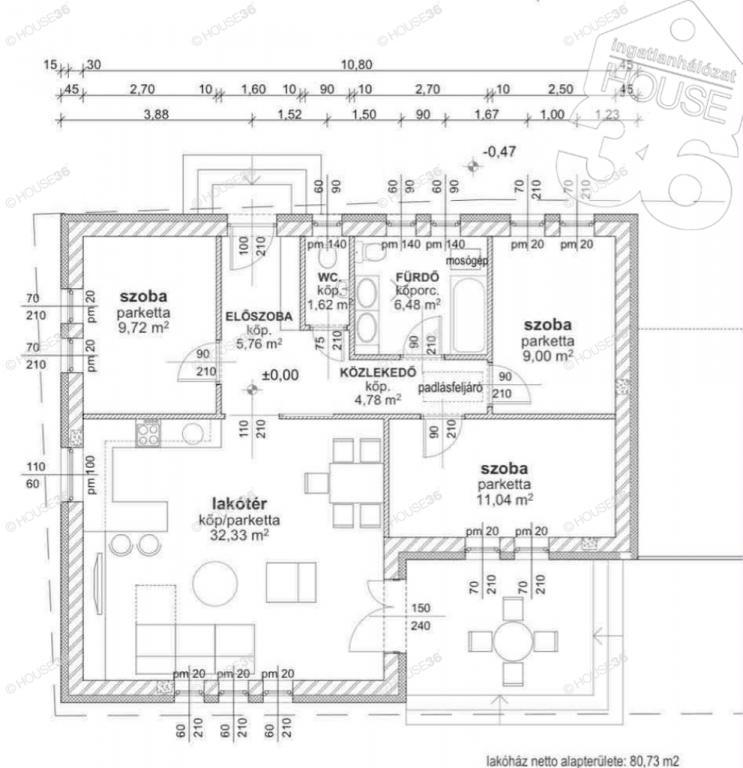
  • Alapterület: 81 m²
  • Telekterület: 644 m² ( 179 négyszögöl )
  • Építés éve: 2026
  • Egész szobák száma (12 m² felett): 4 db
  • Félszobák száma (6-12 m² között): 0 db
  • Ingatlan állapota: új építésű
  • Komfort: összkomfortos
  • Fűtés: gáz (cirko)
  • Pince: nincs
  • Akadálymentesített: nincs
  • Napelem van?: nincs
  • Légkondicionáló: nincs

Leírás

81 m2-es, nappali + 3 szobás, új építésű ház Jakabszálláson! Az ár tartalmazza a telek árát is! Jellemzői: telek 644 m2 lakótér 81 m2 10 m2 térkövezett terasz gáz-cirkó fűtés, Bosch 2300 kazánnal, padlófűtés 2 klíma Porotherm főfalak 10 cm-es tégla válaszfalak (belső) Fa födémszerkezet láng és gombamentesítő anyaggal kezelve Cserép tetőfedés Műanyag, bukó-nyíló nyílászárók (3 rétegű, 6 légkamrás), biztonsági bejárati ajtó redőny, szúnyogháló 15 cm EPS homlokzati hőszigetelés 2026 decemberi átadás A hirdetésben szereplő fotók egy referenciaházban készültek. ​ A tulajdonos kérésére az ingatlan bemutatása egy személyes konzultáció után történik, ahol részletes tájékoztatást kaphat az ingatlan paramétereiről és egyéb kényelmi szolgáltatásairól! Figyelem az adatlap megbízónktól kapott adatok alapján készült, pontosságáért felelősséget nem tudunk vállalni! Az iroda legfrissebb, aktuális kínálatát a HOUSE36 saját weboldalán találja.

E-mail küldése a hirdetőnek

Hibás hirdetés bejelentése

Sikeres elküldtük a hiba bejelentést.

Hirdető adatai

Bagó Diána
E-mail cím: diana.bago@h36.hu
Telefonszám: +36-70-634-5581
agents
Hirdetés feladója: Ingatlaniroda

Képek



Térkép


Ajánlott ingatlanok

Családi ház

Akár üzleti tevékenységre, akár saját részre!

Keresés azonosító alapján: HI-2551474
  • Kecskemét Úrrét tanya
  • Alapterület: 440 m²
  • Telekterület: 7 000 m²
  • Ár: 420 000 000 Ft (1 183 099 €)
  • Feltöltés dátuma: 2026.03.17.
  •  
Családi ház

Autentikus gerendaház a Vacsiközben!

Keresés azonosító alapján: HI-2532310
  • Kecskemét Dráva utca
  • Alapterület: 147 m²
  • Telekterület: 3 000 m²
  • Ár: 169 900 000 Ft (478 592 €)
  • Feltöltés dátuma: 2026.02.04.
  •  
Családi ház

Eladó Kecskemét - Katonatelepen kétszintes családi ház.

Keresés azonosító alapján: HI-2565759
  • Kecskemét Zsigmond Ferenc utca
  • Alapterület: 140 m²
  • Telekterület: 989 m²
  • Ár: 105 000 000 Ft (295 775 €)
  • Feltöltés dátuma: 2026.04.28.
  •  
Családi ház

KIVÉTELES LEHETŐSÉG HETÉNYEGYHÁZÁN!

Keresés azonosító alapján: HI-2565758
  • Kecskemét Népdal utca
  • Alapterület: 162 m²
  • Telekterület: 780 m²
  • Ár: 64 900 000 Ft (182 817 €)
  • Feltöltés dátuma: 2026.04.28.
  •  
Facebook
Blogger
Twitter
Tweets by hasznaltingatla
Flickr