Nyisson itt egy nyugdíjas otthont.Akár pályázatra is alkalmas ingatlan ELADÓ!

Ingatlan azonosító: HI-2530322

Bács-Kiskun megye - Tiszakécske, Csarnok


135 000 000 Ft (368 852 €)

  • Hirdetés feladója: Ingatlaniroda
  • Pontos cím: Tiszakécske
  • Típus: Eladó
  • Belső irodai azonosító: 3615731-4277412
  • Alapterület: 960 m²
  • Fűtés: egyéb
  • Napelem van?: nincs

Leírás

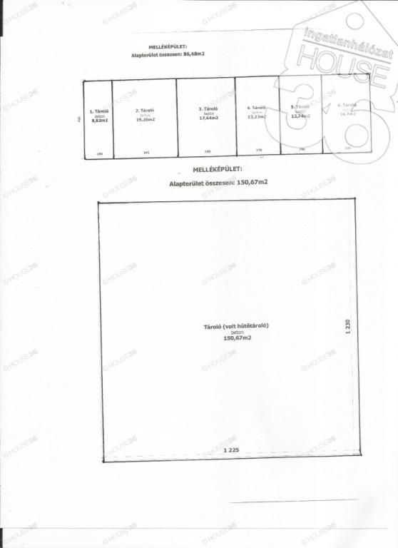
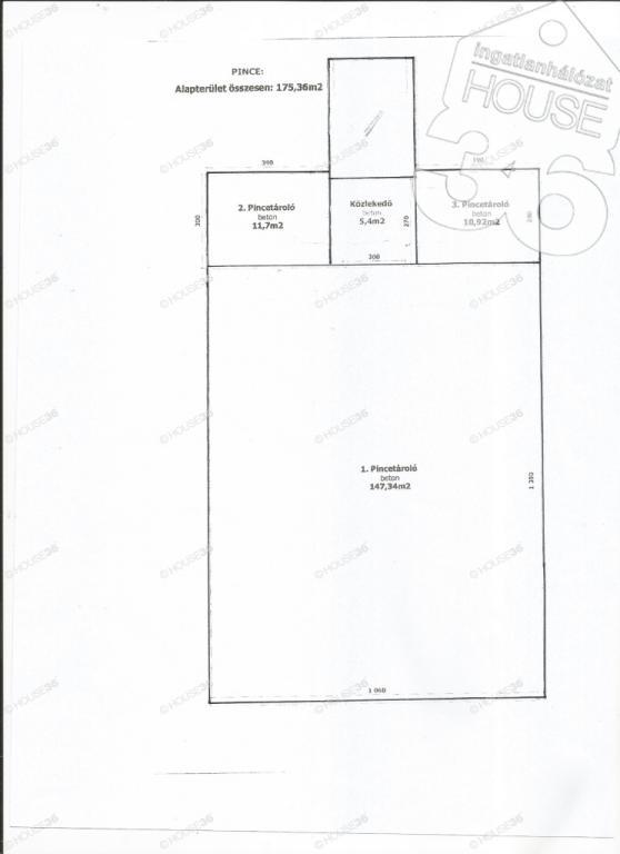
Tiszakécskén, közvetlenül a főút mellett a tiszakécskei gyógy-és termál fürdő és a Tisza parti üdülőövezet közelében, eladó egy több épületből álló ingatlan. A most megépülő M44 autópályán könnyen elérhető az ország bármely pontja. Az épület alkalmas szálloda, panzió, nyugdíjas otthon, munkás szálló kialakítására is. A XX.század elején épült alápincézett kastély épületben 8 szoba és fürdők. A 80-as években épült L alakú épületben amelynek egyik szárnya emeletes 13 szoba található mindegyikben fürdőszobával. Melléképület raktárakkal. A telken található még egy 150 m2 alapterületű hűtőház. - összközműves - teljesen bekerített 8599 m2 telek - buszmegálló a kapuban - főút mellett - kúria épület 210.74 m2 - Pince a főépület alatt 175.36 m2 - L alakú épület földszint 349,51 m2 - L alakú épület emelet 228.3 m2 - Tároló hűtő 150.67 m2 - melléképület 84.48 m2 Az épületekben további szobák kialakítására is van lehetőség. Rendezett parkosított terület . Mivel a 90-es évek vége óta az ingatlan nincs hasznosítva ezért felújítást igényel. Az ingatlan akár hét végén is megtekinthető.Hívjon.Nézzük meg. ​ Figyelem az adatlap megbízónktól kapott adatok alapján készült pontosságáért felelősséget vállalni nem tudunk. Az iroda legfrissebb, aktuális kínálatát a HOUSE36 saját weboldalán találja!

E-mail küldése a hirdetőnek

Hibás hirdetés bejelentése

Sikeres elküldtük a hiba bejelentést.

Hirdető adatai

Kocsis Zsuzsanna
E-mail cím: zsuzsanna.kocsis@h36.hu
Telefonszám: +36707959014
Hirdetés feladója: Ingatlaniroda

Képek



Térkép


Ajánlott ingatlanok

Csarnok

Szelevény központjában telephely ELADÓ!

Keresés azonosító alapján: HI-2530323
  • Szelevény
  • Alapterület: 300 m²
  • Ár: 29 900 000 Ft (81 694 €)
  • Feltöltés dátuma: 2026.02.04.
  •  
Családi ház

Kecskeméten a Nagykörúton családi ház eladó!

Keresés azonosító alapján: HI-2561880
  • Kecskemét
  • Alapterület: 100 m²
  • Telekterület: 277 m²
  • Ár: 54 900 000 Ft (150 000 €)
  • Feltöltés dátuma: 2026.04.16.
  •  
Könnyűszerkezetes ház

Kecskemét - Kadafalván, költözhető új építésű ház!

Keresés azonosító alapján: HI-2553629
  • Kecskemét
  • Alapterület: 167 m²
  • Telekterület: 773 m²
  • Ár: 150 000 000 Ft (409 836 €)
  • Feltöltés dátuma: 2026.03.24.
  •  
Családi ház

Eladó kis házikó az Úrihegyben!

Keresés azonosító alapján: HI-2530330
  • Kecskemét
  • Alapterület: 22 m²
  • Telekterület: 1 451 m²
  • Ár: 14 990 000 Ft (40 956 €)
  • Feltöltés dátuma: 2026.02.04.
  •  
Facebook
Blogger
Twitter
Tweets by hasznaltingatla
Flickr