***Otthon és Befektetés - Új lakóparki lakások Kecskeméten***

Ingatlan azonosító: HI-2454962

Bács-Kiskun megye - Kecskemét, Új építésű lakás


64 781 600 Ft (165 682 €)

  • Hirdetés feladója: Ingatlaniroda
  • Pontos cím: Kecskemét Homokszem utca
  • Típus: Eladó
  • Belső irodai azonosító: 3619015-4827481
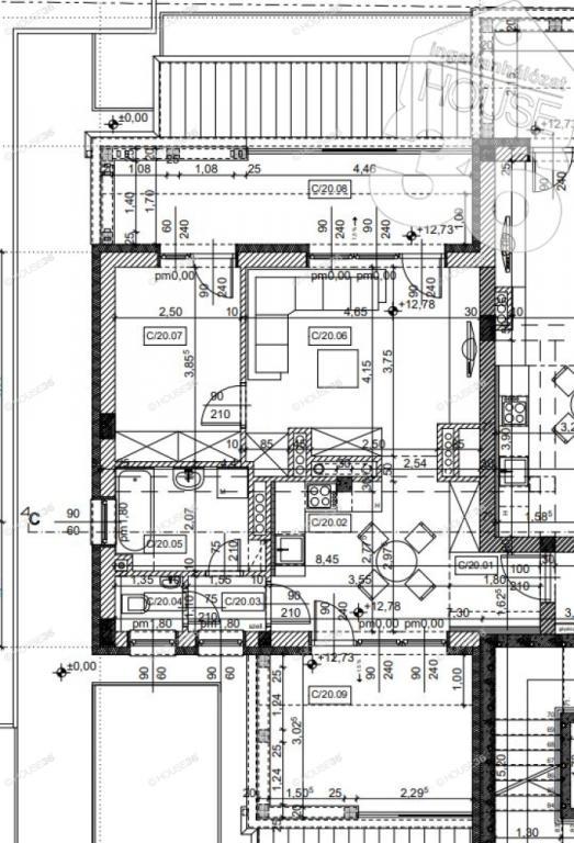
  • Alapterület: 62 m²
  • Építés éve: 2025
  • Egész szobák száma (12 m² felett): 2 db
  • Félszobák száma (6-12 m² között): 0 db
  • Emelet: 4. emelet
  • Ingatlan állapota: új építésű
  • Fűtés: egyéb
  • Lift: van
  • Akadálymentesített: nincs
  • Napelem van?: nincs
  • Erkély: nincs
  • Légkondicionáló: nincs
  • A lakás falazata: Tégla

Leírás

Kecskemét folyamatosan szépülő városrészében, zárt parkosított környezetben, új építésű liftes társasházban lévő, IV. emeleti, 49,75 m2.-es, 2 szobás, 25,08 m2.-es dupla terasszal rendelkező penthouse lakás leköthető! Kitűnő elrendezésű, napfényes lakások, korszerű megoldások jellemzik a zárt lakóparkban kialakított otthonok megvalósulását! A lakásokhoz sorszámozott parkoló vásárolható. Befektetőknek visszabérlési opcióval! Várható átadás: 2026. szeptember 22lakásos, 5 szintes épület Földszintről induló lift teszi kényelmessé a közlekedést. Tömbfűtés, lakásonként egyedi méréssel, padlófűtéssel. Műanyagnyílászárók, 6 kamrás, 3 rétegű hőszigetelt üvegezéssel, rejtett redőnytokok beépítése, redőnnyel. Helyiségenként, hűtő-fűtő klíma kerültelepítésre. Padló nagy kopásállóságú kőkerámia és laminált burkolattal lesz ellátva. Vizes helyiségekben jó minőségű porcelán szaniterek opcionálisan, zuhanytálca illetve fürdőkád a terveknek megfelelően a hozzátartozó csaptelep és zuhanyszett tartozékaival. A társasházat sok zöld felület veszi körül, fákkal, cserjékkel, parkosított kerttel, automata öntöző rendszerrel. A zárt udvarban egy EU szabványoknak megfelelő játszótér is kialakításra kerül. A parkolók megvilágításáról napelemes közvilágítás gondoskodik. A fenti adatok tájékoztató jellegűek, felelősséget érte nem vállalok. Referencia szám: 3619015

E-mail küldése a hirdetőnek

Hibás hirdetés bejelentése

Sikeres elküldtük a hiba bejelentést.

Hirdető adatai

Major Éva
E-mail cím: eva.major@h36.hu
Telefonszám: +36704335341
agents
Hirdetés feladója: Ingatlaniroda

Képek



Térkép


Ajánlott ingatlanok

Új építésű lakás

12 lakásos lakópark önálló udvarral, parkolóval!

Keresés azonosító alapján: HI-2455016
  • Helvécia
  • Alapterület: 60 m²
  • Ár: 53 700 000 Ft (137 340 €)
  • Feltöltés dátuma: 2025.08.02.
  •  
Új építésű lakás
  • Kecskemét Vágó utca
  • Alapterület: 112 m²
  • Ár: 106 900 000 Ft (273 402 €)
  • Feltöltés dátuma: 2025.08.02.
  •  
Új építésű lakás
  • Kecskemét
  • Alapterület: 118 m²
  • Ár: 108 000 000 Ft (276 215 €)
  • Feltöltés dátuma: 2025.08.02.
  •  
Új építésű lakás

1. emeleti új építésű lakás eladó

Keresés azonosító alapján: HI-2471413
  • Kecskemét
  • Alapterület: 59 m²
  • Ár: 74 990 000 Ft (191 790 €)
  • Feltöltés dátuma: 2025.09.06.
  •  
Facebook
Blogger
Twitter
Tweets by hasznaltingatla
Flickr