Pécs egyik legexkluzívabb ingatlana eladó – a luxus, az elegancia és a természet találkozása

Ingatlan azonosító: HI-2490922

Baranya megye - Pécs, Családi ház


599 000 000 Ft (1 576 316 €)

  • Hirdetés feladója: Ingatlaniroda
  • Pontos cím: Pécs
  • Típus: Eladó
  • Belső irodai azonosító: HZ033993-5065916
  • Alapterület: 1 800 m²
  • Telekterület: 1 695 m² ( 471 négyszögöl )
  • Építés éve: 2003
  • Egész szobák száma (12 m² felett): 17 db
  • Félszobák száma (6-12 m² között): 0 db
  • Fürdőszobák száma: 12 db
  • Ingatlan állapota: felújított
  • Komfort: duplakomfortos
  • Fűtés: gázkazán
  • Pince: van
  • Akadálymentesített: nincs
  • Energiatanúsítvány: B
  • Napelem van?: nincs
  • Légkondicionáló: van

Leírás

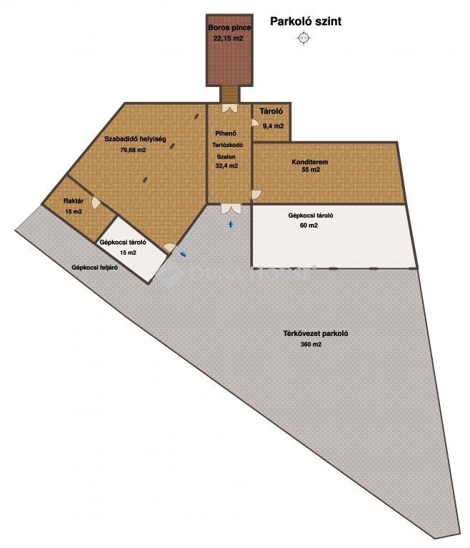
Egyedülálló lehetőséget kínálunk: eladásra került egy páratlan adottságokkal rendelkező luxusingatlan Pécs egyik legszebb pontján, a Mecsek ölelésében. A 1695 m²-es telken fekvő 1727 m²-es komplexum két főépületből, négy szintből és megannyi exkluzív térből áll. Főbb jellemzők: 16 hálószoba, 12 fürdőszoba, 3 konyha és 3 étkező 71 m²-es nappali 7 méteres belmagassággal Panorámás, fedett medence (28 m²) és wellness részleg szaunával Fitness terem (55 m²), klubhelyiség, 80 m²-es rendezvényterem Borospince (22 m²) és prémium minőségű belsőépítészeti megoldások Parkolás és infrastruktúra: 5 garázs + 4 külső beálló Több mint 200 m² parkolófelület Mosókonyha, gépészeti helyiségek, raktárak 28 kW-os napelemrendszer a modern energiahatékonyságért Kültér és elhelyezkedés: Parkosított kert, közel 600 m² zöldterület Lenyűgöző Mecsek-panoráma Nyugodt, mégis jól megközelíthető lokáció Ez az ingatlan nem csupán otthon, hanem életstílus. Tökéletes választás lehet exkluzív magánrezidenciának, reprezentatív céges központnak, prémium boutique hotelnek vagy wellnessközpontnak is. Komoly érdeklődők számára további információ és megtekintés egyeztethető. Fedezze fel Pécs valódi gyöngyszemét – ahol minden nap a luxus nyugalmában kezdődhet. 599000000 Ft Keressenek Bizalommal! Érdeklődni.: Orsolics Zsolt + 36(20)3770000 Referencia szám: HZ033993-HI

E-mail küldése a hirdetőnek

Hibás hirdetés bejelentése

Sikeres elküldtük a hiba bejelentést.

Hirdető adatai

Orsolics Zsolt Péter
E-mail cím: orsolics.zsolt@dh.hu
Telefonszám: +36203770000
Duna House
Hirdetés feladója: Ingatlaniroda
Ingatlaniroda: Duna House
E-mail cím: pecs.belvaros@dh.hu
Telefonszám: +3672369724

Képek



Térkép


Ajánlott ingatlanok

Családi ház

Eladó ház, Pécs

Keresés azonosító alapján: HI-2475866
  • Pécs
  • Alapterület: 132 m²
  • Telekterület: 450 m²
  • Ár: 114 900 000 Ft (302 368 €)
  • Feltöltés dátuma: 2025.09.19.
  •  
Családi ház
  • Pécs
  • Alapterület: 122 m²
  • Telekterület: 407 m²
  • Ár: 104 900 000 Ft (276 053 €)
  • Feltöltés dátuma: 2026.01.16.
  • klímás
Családi ház

Eladó ház, Pécs

Keresés azonosító alapján: HI-2451485
  • Pécs
  • Alapterület: 134 m²
  • Telekterület: 438 m²
  • Ár: 80 000 000 Ft (210 526 €)
  • Feltöltés dátuma: 2025.07.31.
  •  
Családi ház

Eladó ház, Kozármisleny

Keresés azonosító alapján: HI-2391367
  • Kozármisleny
  • Alapterület: 236 m²
  • Telekterület: 1 548 m²
  • Ár: 183 900 000 Ft (483 947 €)
  • Feltöltés dátuma: 2025.03.20.
  •  
Facebook
Blogger
Twitter
Tweets by hasznaltingatla
Flickr