Szentendre pismány

Ingatlan azonosító: HI-2496797

Pest megye - Szentendre, Családi ház


80 000 000 Ft (206 718 €)

  • Hirdetés feladója: Ingatlaniroda
  • Pontos cím: Szentendre
  • Típus: Eladó
  • Belső irodai azonosító: HK-5075184-5075184
  • Alapterület: 50 m²
  • Telekterület: 811 m² ( 225 négyszögöl )
  • Egész szobák száma (12 m² felett): 3 db
  • Félszobák száma (6-12 m² között): 0 db
  • Ingatlan állapota: közepes állapotú
  • Fűtés: gázkazán
  • Pince: nincs
  • Akadálymentesített: nincs
  • Napelem van?: nincs
  • Légkondicionáló: nincs

Leírás

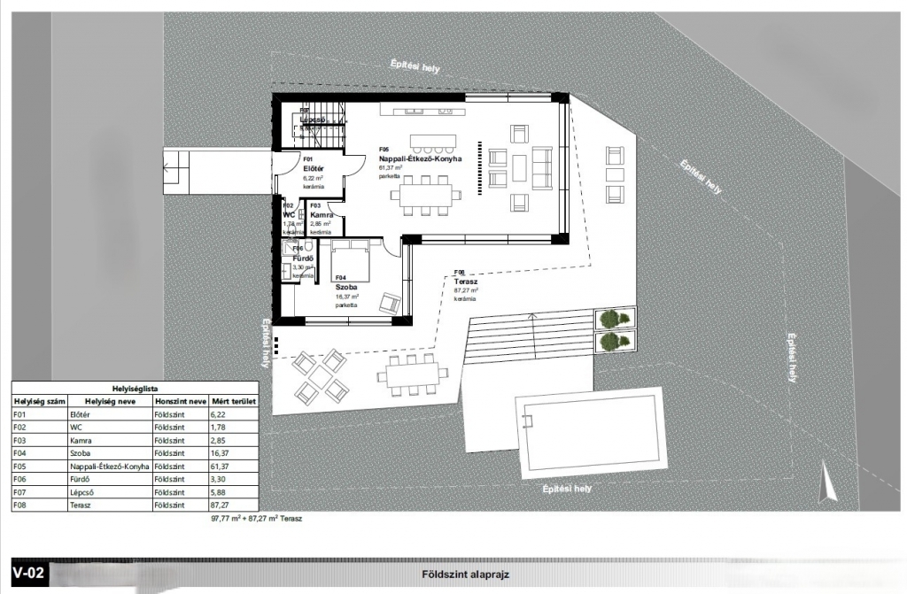
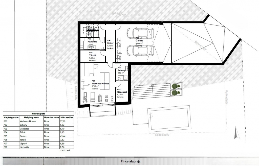
Eladó építési telek Pismány hegyen - lenyűgöző körpanorámával és minden közművel. Szentendre egyik legszebb fekvésű részén, Pismány hegy déli lejtőjén kínálunk eladásra egy 811 nm-es, belterületi, közművesített építési telket, amely páratlan körpanorámát biztosít a Dunakanyarra. A telek nívós építész iroda által készített koncepció tervvel rendelkezik. Elhelyezkedés: A telek, csendes, rendezett környezetben található, könnyen megközelíthető autóval, aszfaltozott utcák határolják két oldalról. A kert déli fekvésű, enyhén lejtős, kiváló tájolással. Főbb jellemzők: Telekméret: 811 nm Besorolás: Belterület - lakóövezet Építési övezet: Lke/2 Beépíthetőség (terepszint felett): max. 15% Közművek: víz, villany, gáz, csatorna - teljesen bevezetve Jelenlegi beépítés: A telken egy kétszintes, összkomfortos faház található. Az ingatlan fűthető, de használatba vételhez felújítást igényel. Építési lehetőség: Egy elismert építész által készített koncepcióterv elérhető, mely egy háromszintes, kb. 300 nm összterületű családi ház megvalósítását vázolja. Ez a különleges adottságú helyszín ideális egy nagyszabású, reprezentatív otthon megépítésére, amely valóban egyedülálló lehetőséget kínál. Előnyök röviden: Ritka fekvés, lenyűgöző kilátás Tehermentes, azonnal birtokba vehető Beépített, ápolt környék Rendezett jogi és műszaki állapot Ideális családi ház, nyaraló vagy prémium befektetés céljára Ne hagyja ki ezt az egyedülálló lehetőséget - érdeklődjön most, és építse meg álmai otthonát a Dunakanyar fölé magasodva! Az OTP Bankcsoport teljes körű ügyintézéssel áll az eladók és a vevők rendelkezésére! A kínálatunkból választott ingatlan finanszírozásához kedvezményes hitel- és lízingkonstrukciókat, lakástakarék-pénztári megoldásokat kínálunk. Az adásvételi szerződés megkötéséhez igény szerint megbízható ügyvédi közreműködést biztosítunk, és segítséget nyújtunk az adásvételhez kapcsolódó ügyek intézéséhez. Referencia szám: HK-5075184-HI

E-mail küldése a hirdetőnek

Hibás hirdetés bejelentése

Sikeres elküldtük a hiba bejelentést.

Hirdető adatai

Biróczki Attila
E-mail cím: biroczki.attila@otpip.hu
Telefonszám: +36-30-961-7263
OTPip
Hirdetés feladója: Ingatlaniroda
Ingatlaniroda: OTPip
E-mail cím: zuglo@otpip.hu
Telefonszám: +36309617263

Képek



Térkép


Ajánlott ingatlanok

Családi ház

Eladó Ház, Budapest 16. ker.

Keresés azonosító alapján: HI-2407783
  • Budapest XVI.
  • Alapterület: 269 m²
  • Telekterület: 1 995 m²
  • Ár: 165 000 000 Ft (426 357 €)
  • Feltöltés dátuma: 2025.04.29.
  •  
Családi ház

Eladó Ház, Budapest 16. ker.

Keresés azonosító alapján: HI-2464008
  • Budapest XVI.
  • Alapterület: 270 m²
  • Telekterület: 1 143 m²
  • Ár: 187 000 000 Ft (483 204 €)
  • Feltöltés dátuma: 2025.08.20.
  •  
Családi ház

Családi ház Rákoscsaba

Keresés azonosító alapján: HI-2216608
  • Budapest XVII.
  • Alapterület: 75 m²
  • Telekterület: 675 m²
  • Ár: 74 000 000 Ft (191 214 €)
  • Feltöltés dátuma: 2024.04.29.
  •  
Családi ház

Eladó Ház, Csömör

Keresés azonosító alapján: HI-2388185
  • Csömör
  • Alapterület: 309 m²
  • Telekterület: 1 330 m²
  • Ár: 299 000 000 Ft (772 610 €)
  • Feltöltés dátuma: 2025.03.13.
  •  
Facebook
Blogger
Twitter
Tweets by hasznaltingatla
Flickr