Új építésű házak között, nyugodt békés utcában épül az ingatlan.

Ingatlan azonosító: HI-2549669

Pest megye - Kóka, Családi ház


61 990 000 Ft (158 138 €)

  • Hirdetés feladója: Ingatlaniroda
  • Pontos cím: Kóka
  • Típus: Eladó
  • Belső irodai azonosító: HZ016127-5173492
  • Alapterület: 89 m²
  • Telekterület: 512 m² ( 142 négyszögöl )
  • Építés éve: 2026
  • Egész szobák száma (12 m² felett): 4 db
  • Félszobák száma (6-12 m² között): 0 db
  • Fürdőszobák száma: 1 db
  • Ingatlan állapota: új építésű
  • Fűtés: egyéb
  • Pince: nincs
  • Akadálymentesített: nincs
  • Napelem van?: nincs
  • Légkondicionáló: nincs

Leírás

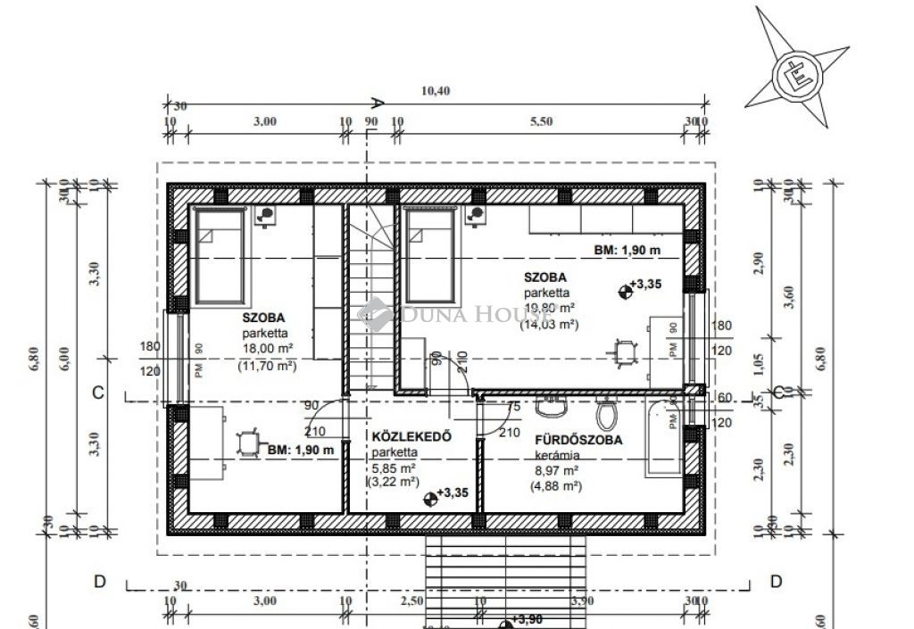
Új építésű házak között, nyugodt békés utcában épül az ingatlan. 920m2 sarok telek , ügyvédi megosztóval ketté választva, teljesen privát elkerített telekkel. tetőtér beépítéses lakás: - nettó hasznos alapterület: 89,53 (az emeleten csak 1,8 m felett mérve, tehát valójában nagyobb) - 30 cm PTH teherhordó tégla falazat 10 cm grafitos dryvit szigeteléssel - monoblokkos hőszivattyús padlófűtési rendszer - split klíma előkészítés egy végpontra - szigetelt fafödém - beton vagy kerámia cserépfedés Burkolatok 5000ft/m2 Burkolatok: - előtér, konyha, HTH-WC, fürdőszoba mázas kerámia járólap 33x33 cm méretig, fürdőszobában 2,0 m-ig fali csempe, konyhapult felett fali csempe, szoba, nappali laminált lap (5000ft/m2-ig állja a kivitelező) Glettelés, festés: - bandázsolás, glettelés, két réteg diszperziós falfestés fehér színre, látszó fa felületeken lazúrozás Nyílászárók: - műanyag homlokzati nyílászárók 3 réteg üvegezéssel min 76 mm vtg szerkezettel, bejárati ajtó MABISZ minősítéssel, beltéri ajtók CPL kivitelben utólag szerelhető tokkal fém kilinccsel gépészet: - monoblokkos levegő-víz hőszivattyús fűtés és meleg víz termelés, padlófűtés programozható WIFI-s termosztáttal, fürdőben 1 db elektromos fűtésű törölközőszárító radiátor, Alföldi vagy KOLO szaniterek, MOFÉM csaptelepek, 170 cm akril vagy lemezkád, álló- alsó kifolyású WC-k falon kívüli tartállyal, klíma előkészítés, (zuhanyfülke opcióban rendelhető) A szanitereket a cég 500.000 ft-ig állja. Elektromos szerelések: - 3x16A elektromos áram bekötés légkábellel, kapcsolók, aljzatok Asfora vagy hasonló minőségben, 0,75-s MBCU vezetékek védőcsőben vezetve, internet részére egy végpontra csövezés Helyiségenként 3 dugaj és 1 kapcsoló van az árban. Külső munkák: - közműbekötések, 150 cm drótkerítés betonoszlopokkal, simított beton járda bejáratnál, kb.: 16 m2 simított beton terasz, gk beálló zúzott kőből murva terítéssel. A cég 25 éves makulátlan múlttal rendelkező, leellenőrizhető. Számtalan referencia munka! Minden hitelre alkalmas az ingatlan! - kivitelezés kezdete: 2026.1. negyedév - kivitelezés befejezése : 2026.4. negyedév Bármi kérdése van hívjon bizalommal! Érd.: Horváth Bence +36304694413 email: horvath.bence1@dh.hu Referencia szám: HZ016127

E-mail küldése a hirdetőnek

Hibás hirdetés bejelentése

Sikeres elküldtük a hiba bejelentést.

Hirdető adatai

Horváth Bence
E-mail cím: horvath.bence1@dh.hu
Telefonszám: +36304694413
Duna House
Hirdetés feladója: Ingatlaniroda
Ingatlaniroda: Duna House
E-mail cím: homecenter@dh.hu
Telefonszám: +36301245037

Képek



Térkép


Ajánlott ingatlanok

Családi ház

Pilisen Brutális Műszaki Tartalom Ahol az alap nem csak egy szó

Keresés azonosító alapján: HI-2547097
  • Pilis
  • Alapterület: 122 m²
  • Telekterület: 756 m²
  • Ár: 120 000 000 Ft (306 122 €)
  • Feltöltés dátuma: 2026.03.06.
  •  
Családi ház

Eladó ház, Gomba

Keresés azonosító alapján: HI-2502111
  • Gomba
  • Alapterület: 60 m²
  • Telekterület: 280 m²
  • Ár: 36 000 000 Ft (91 837 €)
  • Feltöltés dátuma: 2025.11.15.
  •  
Családi ház

Több generációra vagy befektetésre is ideális ház Cegléden

Keresés azonosító alapján: HI-2460705
  • Cegléd
  • Alapterület: 123 m²
  • Telekterület: 1 112 m²
  • Ár: 59 900 000 Ft (152 806 €)
  • Feltöltés dátuma: 2025.08.12.
  •  
Családi ház

Eladó ház, Vecsés

Keresés azonosító alapján: HI-2498947
  • Vecsés
  • Alapterület: 107 m²
  • Telekterület: 521 m²
  • Ár: 73 000 000 Ft (186 224 €)
  • Feltöltés dátuma: 2025.11.06.
  •  
Facebook
Blogger
Twitter
Tweets by hasznaltingatla
Flickr