Új építésű ikerház eladó Helvécián!

Ingatlan azonosító: HI-2501446

Bács-Kiskun megye - Kecskemét, Könnyűszerkezetes ház


48 900 000 Ft (128 346 €)

  • Hirdetés feladója: Ingatlaniroda
  • Pontos cím: Kecskemét
  • Típus: Eladó
  • Belső irodai azonosító: 3620803-5084054
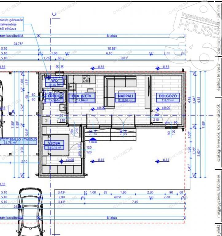
  • Alapterület: 47 m²
  • Telekterület: 810 m² ( 225 négyszögöl )
  • Építés éve: 2026
  • Egész szobák száma (12 m² felett): 3 db
  • Félszobák száma (6-12 m² között): 0 db
  • Ingatlan állapota: új építésű
  • Fűtés: egyéb
  • Pince: nincs
  • Akadálymentesített: nincs
  • Energiatanúsítvány: A
  • Napelem van?: nincs
  • Légkondicionáló: nincs

Leírás

Új építésű 47 m2 es, nappali + 2 szobás ikerház eladó Kecskemét vonzáskörzetében! Jellemzői: 2026szeptemberi átadás nappali + 2szoba 47 m2 könnyűszerkezetes építés bioderítő 2 db klíma fedett gépkocsi beálló 810 m2 telek burkolat választható 10 cm-es szigetelés, 20 cm födémszigetelés ​ A tulajdonos kérésére az ingatlan bemutatása egy személyes konzultáció után történik, ahol részletes tájékoztatást kaphat az ingatlan paramétereiről és egyéb kényelmi szolgáltatásairól !Figyelem az adatlap megbízónktól kapott adatok alapján készült, pontosságáért felelősséget nem tudunk vállalni! 48900000 Ft Az iroda legfrissebb, aktuális kínálatát a HOUSE36 saját weboldalán találja. Referencia szám: 3620803

E-mail küldése a hirdetőnek

Hibás hirdetés bejelentése

Sikeres elküldtük a hiba bejelentést.

Hirdető adatai

Veligdán Gabriella
E-mail cím: gabriella.veligdan@h36.hu
Telefonszám: +36704150679
Hirdetés feladója: Ingatlaniroda

Képek



Térkép


Ajánlott ingatlanok

Könnyűszerkezetes ház

Nappali + 2 szobás ház eladó Helvécián 2026-os átadással!

Keresés azonosító alapján: HI-2523550
  • Kecskemét
  • Alapterület: 60 m²
  • Telekterület: 500 m²
  • Ár: 57 900 000 Ft (151 969 €)
  • Feltöltés dátuma: 2026.01.16.
  •  
Könnyűszerkezetes ház

Kecskeméten, a Vacsi közben nappali + 2 szobás új ház eladó!

Keresés azonosító alapján: HI-2519249
  • Kecskemét
  • Alapterület: 70 m²
  • Telekterület: 350 m²
  • Ár: 79 000 000 Ft (207 349 €)
  • Feltöltés dátuma: 2026.01.08.
  •  
Könnyűszerkezetes ház

Nappali + 3 szobás ház eladó 2026-os átadással!

Keresés azonosító alapján: HI-2510889
  • Kecskemét
  • Alapterület: 70 m²
  • Telekterület: 10 m²
  • Ár: 52 900 000 Ft (138 845 €)
  • Feltöltés dátuma: 2025.12.09.
  •  
Könnyűszerkezetes ház

Kitűnő áron 100 m2-es családi ház eladó!

Keresés azonosító alapján: HI-2454114
  • Kecskemét
  • Alapterület: 100 m²
  • Telekterület: 1 m²
  • Ár: 52 000 000 Ft (136 483 €)
  • Feltöltés dátuma: 2025.08.02.
  •  
Facebook
Blogger
Twitter
Tweets by hasznaltingatla
Flickr