Új építésű ikerház, nappali+3 szoba, terasz, 460 m2 saját kert Gödöllő

Ingatlan azonosító: HI-2486742

Pest megye - Gödöllő, Ikerház


109 900 000 Ft (283 247 €)

  • Hirdetés feladója: Ingatlaniroda
  • Pontos cím: Gödöllő Kiss József utca
  • Típus: Eladó
  • Belső irodai azonosító: HK-5055422-5055422
  • Alapterület: 103 m²
  • Telekterület: 464 m² ( 129 négyszögöl )
  • Építés éve: 2025
  • Egész szobák száma (12 m² felett): 4 db
  • Félszobák száma (6-12 m² között): 0 db
  • Fürdőszobák száma: 1 db
  • Ingatlan állapota: új építésű
  • Komfort: összkomfortos
  • Fűtés: egyéb
  • Pince: nincs
  • Akadálymentesített: nincs
  • Energiatanúsítvány: A
  • Napelem van?: nincs
  • Légkondicionáló: nincs

Leírás

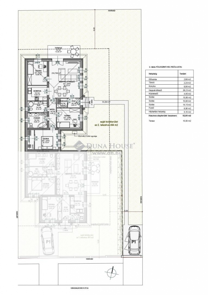
Gödöllő központhoz közeli részén épülő, modern nappali + 3 szobás ikerházfél eladó terasszal, saját nagyobb telekkel. A 92,8 m²-es családi házhoz 10 m²-es terasz és 464 m² saját telek tartozik. Az otthon fűtését padlófűtés és energiatakarékos hőszivattyú biztosítja korszerű, környezetbarát megoldás a komfort érdekében. Az ingatlan elrendezése: Tágas amerikai konyhás nappali (28,23 m²), keleti tájolással 3 külön nyíló, világos szoba (ÉK-i tájolással) Fürdőszoba WC-vel Külön tároló és háztartási helyiség Közvetlen kertkapcsolat a teraszról Ez az ingatlan ideális választás azoknak, akik modern, energiatakarékos otthont keresnek zöldövezeti környezetben. Műszaki paraméterek: - 30-as Porotherm tégla falazat + 15 cm dyrvit szigetelés, - beton cserépfedés, - födémen 30 cm vastag kőzetgyapot, aljzaton 15 cm, lábazaton 13 cm szigetelés, - 3 rétegű, 5 légkamrás műanyag nyílászárók, - hőszivattyú padlófűtéses hőleadással, - dupla 30-as fal a két ház között - energetikai besorolása: A A 464 nm-es telekre épülő ingatlanhoz az udvarban gyalogos bejáró és fedett kocsibeálló kerül kialakításra Helyi busz, hév, autópálya, iskola, óvoda, közért stb. percek alatt könnyen elérhető! Az ingatlant több referenciával rendelkező, megbízható kivitelező építi! Burkolatok, belső ajtók a vevői igényei szerint még szabadon választhatók! Amennyiben az ingatlan megfelelne az elvárásainak de nem rendelkezik a teljes vételárral? Ebben az esetben a CREDIPASS munkatársai kötelezettség- és díjmentes tanácsadással állnak Ügyfeleink rendelkezésére. Használja ki a jelenleg még érvényben lévő kedvező kamatozású hiteleket, CSOK-ot, illetékkedvezményt! Hétvégén is várom megtisztelő hívását, abban az esetben is ha csak hitelre lenne szüksége, Várom hívását, ha még el kell adnia ahhoz, hogy vásárolni tudjon! Várom megtisztelő hívását: Plachy Zsuzsa 30-8695401 Referencia szám: HK-5055422

E-mail küldése a hirdetőnek

Hibás hirdetés bejelentése

Sikeres elküldtük a hiba bejelentést.

Hirdető adatai

Plachy Zsuzsa
E-mail cím: plachy.zsuzsa@dh.hu
Telefonszám: +36308695401
Duna House
Hirdetés feladója: Ingatlaniroda
Ingatlaniroda: Duna House
E-mail cím: marvany@dh.hu
Telefonszám: +3616102533

Képek



Térkép


Ajánlott ingatlanok

Ikerház

Új építésű ikerház Isaszeg Buda utca környéke

Keresés azonosító alapján: HI-2437426
  • Isaszeg Buda utca
  • Alapterület: 98 m²
  • Telekterület: 120 m²
  • Ár: 68 000 000 Ft (175 258 €)
  • Feltöltés dátuma: 2025.07.02.
  •  
Ikerház
  • Vácrátót Hunyadi utca
  • Alapterület: 74 m²
  • Telekterület: 381 m²
  • Ár: 89 500 000 Ft (230 670 €)
  • Feltöltés dátuma: 2025.10.10.
  •  
Ikerház

Eladó új építésű ház, Őrbottyán

Keresés azonosító alapján: HI-2477936
  • Őrbottyán Dózsa György utca
  • Alapterület: 112 m²
  • Telekterület: 1 383 m²
  • Ár: 110 000 000 Ft (283 505 €)
  • Feltöltés dátuma: 2025.09.23.
  •  
Ikerház
  • Budapest XVII. Kövirigó utca
  • Alapterület: 162 m²
  • Telekterület: 364 m²
  • Ár: 118 000 000 Ft (304 124 €)
  • Feltöltés dátuma: 2025.09.10.
  • klímás
Facebook
Blogger
Twitter
Tweets by hasznaltingatla
Flickr