Csorna - 1127 m2-es telken bontandó ház eladó

Ingatlan azonosító: HI-2561116

Győr-Moson-Sopron megye - Csorna, Családi ház


20 000 000 Ft (55 096 €)

  • Hirdetés feladója: Ingatlaniroda
  • Pontos cím: Csorna
  • Típus: Eladó
  • Belső irodai azonosító: 2960
  • Alapterület: 50 m²
  • Telekterület: 1 127 m² ( 313 négyszögöl )
  • Épület szintjei: földszintes
  • Egész szobák száma (12 m² felett): 1 db
  • Fürdőszobák száma: 1 db
  • Wc-k száma: 1 db
  • Ingatlan állapota: felújítandó
  • Komfort: komfortos
  • Fűtés: cserépkályha
  • Parkolás: parkolás telken belül
  • Pince: nincs
  • Akadálymentesített: nincs
  • Napelem van?: nincs
  • Légkondicionáló: nincs
  • Kilátás: udvari
  • Falazat ház: Tégla
  • Víz: van
  • Villany: van
  • Gáz: az utcában

Leírás

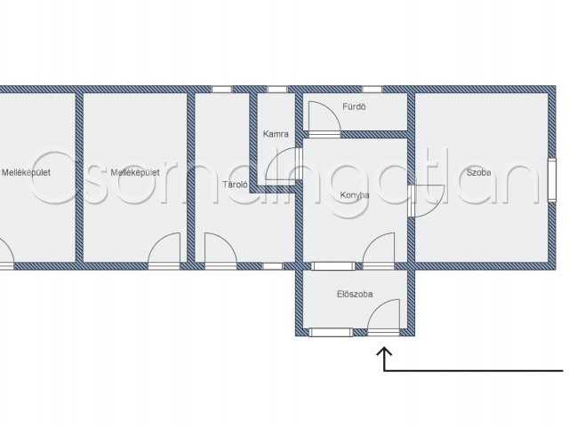
Csendes utcában kis tégla családi ház 1127 m2-es gyümölcsfás telken eladó. HELYISÉGEK: - hálószoba - konyha - kamra - fürdő - előszoba MŰSZAKI JELLEMZŐK: - téglaház, mely felújítandó, vagy bontandó állapotban van - házba víz és villany bevezetve - cserép tetőfedés - fűtés cserépkályha és kályha által - meleg víz villanybojler által TELEK: - melléképületek - kút - egy része gyümölcsfákkal van beültetve - körbekerített - parkolás az udvaron lehetséges FONTOS LEHET: - tehermentes - azonnal birtokba vehető CSORNA A kb. 10.000 fős város az M85-ös gyorsforgalmi út által 30 perc alatt elérhető Győrből, illetve vasútvonalon is. - bölcsőde, óvodák - általános iskolák (római katolikus, művészeti, speciális, önkormányzati) - gimnázium, szakközép iskolák - Margit Kórház - termálfürdő - áruházláncok, boltok stb. helyben megtalálhatóak

E-mail küldése a hirdetőnek

Hibás hirdetés bejelentése

Sikeres elküldtük a hiba bejelentést.

Hirdető adatai

CsornaIngatlan
E-mail cím: ingatlancsorna@gmail.com
Telefonszám: +36-20-5011177
Hirdetés feladója: Ingatlaniroda

Képek



Ajánlott ingatlanok

Családi ház

Kapuvár - frekventált utcában 110 m2-es ház eladó

Keresés azonosító alapján: HI-2501193
  • Kapuvár
  • Alapterület: 110 m²
  • Telekterület: 849 m²
  • Ár: 51 000 000 Ft (140 496 €)
  • Feltöltés dátuma: 2025.11.12.
  •  
Családi ház

Dör - felújítás alatt lévő, 2 szoba nappalis ház eladó

Keresés azonosító alapján: HI-2481695
  • Dör
  • Alapterület: 75 m²
  • Telekterület: 1 057 m²
  • Ár: 36 900 000 Ft (101 653 €)
  • Feltöltés dátuma: 2025.09.29.
  •  
Családi ház

Kapuvár - 2 +1 félszobás, nappalis, összkomfortos ház eladó

Keresés azonosító alapján: HI-2518107
  • Kapuvár
  • Alapterület: 100 m²
  • Telekterület: 1 569 m²
  • Ár: 39 900 000 Ft (109 917 €)
  • Feltöltés dátuma: 2026.01.06.
  •  
Családi ház

Kóny - 2 lakrészes családi ház üzlethelyiséggel eladó

Keresés azonosító alapján: HI-2406270
  • Kóny
  • Alapterület: 320 m²
  • Telekterület: 1 369 m²
  • Ár: 119 000 000 Ft (327 824 €)
  • Feltöltés dátuma: 2025.04.24.
  •  
Facebook
Blogger
Twitter
Tweets by hasznaltingatla
Flickr