Eladó felújított, teraszos, 4 szobás lakás, Budapest 16. ker. Mátyásföld

Ingatlan azonosító: HI-2519055

Budapest - Budapest XVI., Tégla lakás


140 000 000 Ft (362 694 €)

  • Hirdetés feladója: Ingatlaniroda
  • Pontos cím: Budapest XVI. Tatjána utca
  • Típus: Eladó
  • Belső irodai azonosító: LK038445-5100988
  • Alapterület: 168 m²
  • Építés éve: 1990
  • Egész szobák száma (12 m² felett): 4 db
  • Félszobák száma (6-12 m² között): 0 db
  • Fürdőszobák száma: 2 db
  • Emelet: földszint
  • Ingatlan állapota: felújított
  • Komfort: duplakomfortos
  • Fűtés: gáz (cirko)
  • Lift: nincs
  • Akadálymentesített: nincs
  • Napelem van?: nincs
  • Erkély: van
  • Légkondicionáló: van
  • Kilátás: kertre néző
  • Tájolás: dél-nyugat
  • A lakás falazata: Tégla

Leírás

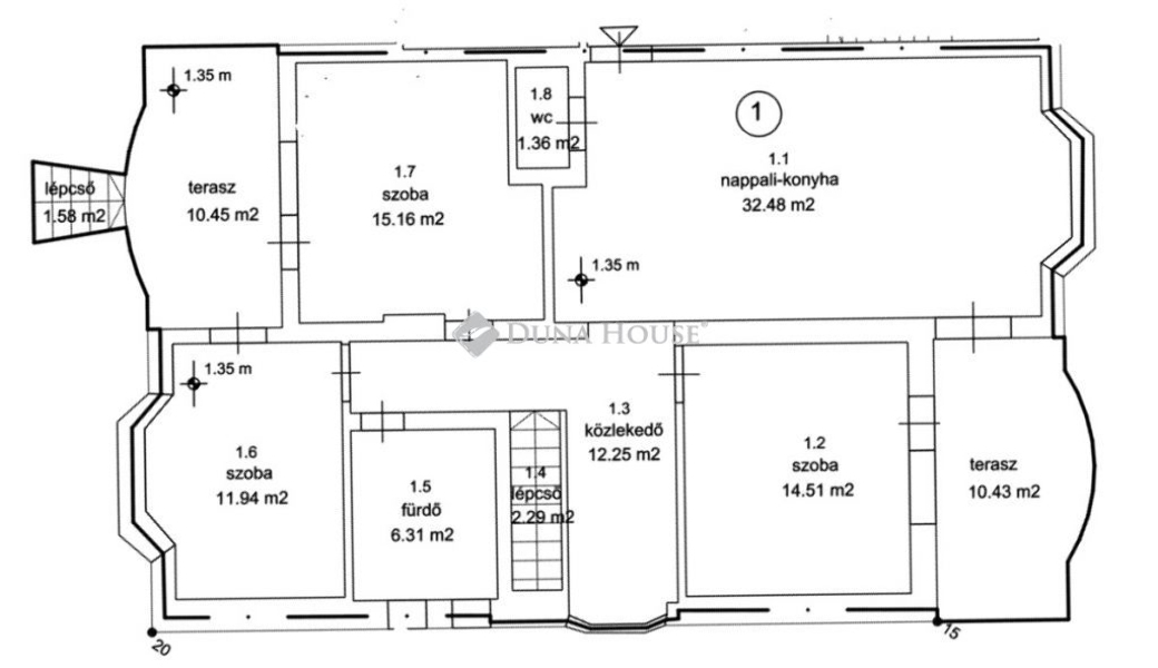
KERTKAPCSOLATOS FELÚJÍTOTT, 4 szobás, duplafürdős, teraszos, LAKÁS! Budapesten, a 16. kerületben, Mátyásföldön kínálunk eladásra egy tehermentes, akár azonnal költözhető, teljes körűen felújított, két szintes, 4 szobával rendelkező, klimatizált lakást, egy négy lakásos társasházban. Az ingatlan összesen **168 m²**-es: - **125 m² lakótér**, - **két terasz** (9,7 m² és 10,33 m² összesen 20 m²), - valamint egy **23,21 m²-es garázs** tartozik hozzá. A lakás elosztása ideális: - egy **tágas, amerikai konyhás nappali**, - **három külön nyíló hálószoba**, - **két fürdőszoba + WC**, - valamint egy **külön vendég-WC** biztosítja a kényelmet. Az alsó szinten emellett mosókonyha és szauna is helyet kapott. A saját garázsból közvetlenül feljuthatunk a lakótérbe. A lakás minden helyisége világos, napfényes, a négy szobához saját teraszkapcsolat tartozik. A hátsó teraszról pár lépcső vezet le a közös használatú kertbe. A lakáshoz tartozik továbbá: - **318 m²-es kertrész kizárólagos használati joga (megosztva egy másik lakással)**, - valamint egy **39 m²-es közös kertrész** használati joga. **A környék kiváló infrastruktúrával rendelkezik**: a közelben található a Naplás-tó, parkok, uszoda, Aldi, Lidl, óvoda, iskola, játszótér, posta és több bank is. A busz- és HÉV-megálló gyalogos távolságra van, az Örs vezér tere pedig kb. 10 perc alatt elérhető. Amennyiben az ingatlan megfelelne az elvárásainak de nem rendelkezik a teljes vételárral? Ebben az esetben a CREDIPASS munkatársai kötelezettség- és díjmentes tanácsadással állnak Ügyfeleink rendelkezésére. Használja ki a jelenleg még érvényben lévő kedvező kamatozású hiteleket, CSOK-ot, illetékkedvezményt! Hétvégén is várom megtisztelő hívását, abban az esetben is ha csak hitelre lenne szüksége, Várom hívását, ha még el kell adnia ahhoz, hogy vásárolni tudjon! Várom megtisztelő hívását: Plachy Zsuzsa 30-8695401 Referencia szám: LK038445

E-mail küldése a hirdetőnek

Hibás hirdetés bejelentése

Sikeres elküldtük a hiba bejelentést.

Hirdető adatai

Plachy Zsuzsa
E-mail cím: plachy.zsuzsa@dh.hu
Telefonszám: +36308695401
Duna House
Hirdetés feladója: Ingatlaniroda
Ingatlaniroda: Duna House
E-mail cím: marvany@dh.hu
Telefonszám: +3616102533

Képek



Térkép


Ajánlott ingatlanok

Tégla lakás

Eladó újszerű, 3 szobás, erkélyes lakás, Budapest 13. ker.

Keresés azonosító alapján: HI-2519039
  • Budapest XIII. Röppentyű utca
  • Alapterület: 72 m²
  • Ár: 111 600 000 Ft (289 119 €)
  • Feltöltés dátuma: 2026.01.08.
  •  
Tégla lakás

Eladó 3 szobás, tető teraszos lakás, Budapest 7. ker.

Keresés azonosító alapján: HI-2519064
  • Budapest VII. Dózsa György út
  • Alapterület: 72 m²
  • Ár: 95 900 000 Ft (248 446 €)
  • Feltöltés dátuma: 2026.01.08.
  •  
Tégla lakás

Eladó lakás, Budapest 13. ker.

Keresés azonosító alapján: HI-2519043
  • Budapest XIII. Madarász Viktor utca
  • Alapterület: 52 m²
  • Ár: 84 990 000 Ft (220 181 €)
  • Feltöltés dátuma: 2026.01.08.
  • klímás
Tégla lakás

Eladó felújított 2 szobás lakás, Budapest 7. ker.

Keresés azonosító alapján: HI-2480083
  • Budapest VII. Szinva utca
  • Alapterület: 68 m²
  • Ár: 79 900 000 Ft (206 995 €)
  • Feltöltés dátuma: 2025.09.25.
  •  
Facebook
Blogger
Twitter
Tweets by hasznaltingatla
Flickr