Eladó Ház, Alsóörs

Ingatlan azonosító: HI-2419682

Veszprém megye - Alsóörs, Családi ház


139 700 000 Ft (367 632 €)

  • Hirdetés feladója: Ingatlaniroda
  • Pontos cím: Alsóörs
  • Típus: Eladó
  • Belső irodai azonosító: M304027-4947277
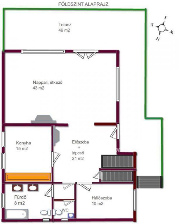
  • Alapterület: 186 m²
  • Telekterület: 875 m² ( 243 négyszögöl )
  • Építés éve: 1996
  • Egész szobák száma (12 m² felett): 5 db
  • Félszobák száma (6-12 m² között): 0 db
  • Fürdőszobák száma: 2 db
  • Ingatlan állapota: jó állapotú
  • Komfort: duplakomfortos
  • Fűtés: gáz (cirko)
  • Pince: van
  • Akadálymentesített: nincs
  • Napelem van?: nincs
  • Légkondicionáló: van

Leírás

*** Eladó családi ház Alsóörs kertvárosi részén *** Alsóörs egyik csendes, kertvárosi utcájában kínálunk eladásra egy jó állapotú, 2 szintes, 186 nm-es családi házat, amely 1996-ban épült és azóta is folyamatosan karbantartott. A lakótér 186 nm-es, 2 szintes és tartozik hozzá egy 22 nm-es pince, egy 18 nm-es, 1 állásos garázs, egy 15 nm-es erkély, valamint egy tágas 49 nm-es kertkapcsolatos terasz, ami a főbejárattól és a nappaliból is megközelíthető. Kialakítását tekintve az emeleten 3 hálószoba, 1 fürdőszoba, 1 gardrób és 1 hall található, a 2 nagyobb szobából juthatunk ki az erkélyre, illetve a hallból nyílik a padlásfeljáró. A földszinten 1 hálószoba, 1 konyha-étkező, 1 kamra, 1 fürdőszoba, 1 WC, 1 nagy nappali-étkező és egy előszoba található, az előszobából nyílik a pince lejáró, illetve innen jutunk a kényelmes fa lépcsőn az emeletre. A terasz L alakban helyezkedik el a ház kert felőli és bejárat felőli oldalán, az oldalsó részen árkádos kialakítású, a kert felőli oldalon kinyitható árnyékolóval szerelt. A garázs a ház bal oldalához került hozzáépítésre, kényelmes nagyságú, hátsó részében galériaszerű pakolórészt alakítottak ki. Az épület B-30-as téglából épült, a tető fedése Bramac cserép, a nyílászárók 2 rétegű műanyag és fém szerkezetűek, redőnnyel szereltek. A fűtést gázkazán biztosítja radiátoros hőleadással, az emeleten telepítésre került 3 db hűtő-fűtő klíma, a földszinten pedig 2 jól működő, gyönyörű cserépkályha is található. A földszinten fürdőkádas, az emeleten zuhanyzós fürdőszoba található, mindkettőben WC-vel, illetve a földszinten egy külön WC is kialakításra került. A melegvíz-ellátás a földszinten a gázkazán által biztosított, az emeleti fürdőszobában egy 80 literes villanybojler működik. Az ingatlant a tulajdonosok folyamatosan karbantartják, minden apró részletre figyelnek, ezért nagyon jó állapotban van. A nyugodt környezet és a Balaton közelsége miatt kiváló nyaralóként, ugyanakkor állandó lakhatásra is ideális választás. Ne hagyja ki ezt a kivételes lehetőséget Alsóörs egyik legkedveltebb részén! Amennyiben felkeltette érdeklődését ez az igazán remek ingatlan hívjon bizalommal és egyeztessünk időpontot a megtekintésére.

E-mail küldése a hirdetőnek

Hibás hirdetés bejelentése

Sikeres elküldtük a hiba bejelentést.

Hirdető adatai

Cseke Tímea
E-mail cím: timea.cseke@otpip.hu
Telefonszám: +36-70-459-0671
OTPip
Hirdetés feladója: Ingatlaniroda
Ingatlaniroda: OTPip
E-mail cím: veszprem@otpip.hu
Telefonszám: +36705027247

Képek



Térkép


Ajánlott ingatlanok

Családi ház

Eladó Ház, Balatonfüred

Keresés azonosító alapján: HI-2369089
  • Balatonfüred
  • Alapterület: 85 m²
  • Telekterület: 1 244 m²
  • Ár: 420 000 000 Ft (1 105 263 €)
  • Feltöltés dátuma: 2025.02.05.
  •  
Családi ház

Eladó Ház, Balatonalmádi

Keresés azonosító alapján: HI-2491165
  • Balatonalmádi
  • Alapterület: 195 m²
  • Telekterület: 1 089 m²
  • Ár: 273 000 000 Ft (718 421 €)
  • Feltöltés dátuma: 2025.10.20.
  •  
Családi ház

Eladó Ház, Királyszentistván

Keresés azonosító alapján: HI-2510090
  • Királyszentistván
  • Alapterület: 80 m²
  • Telekterület: 400 m²
  • Ár: 76 000 000 Ft (200 000 €)
  • Feltöltés dátuma: 2025.12.05.
  •  
Családi ház

Eladó Ház, Aszófő

Keresés azonosító alapján: HI-2407148
  • Aszófő
  • Alapterület: 100 m²
  • Telekterület: 400 m²
  • Ár: 139 000 000 Ft (365 789 €)
  • Feltöltés dátuma: 2025.04.28.
  • klímás
Facebook
Blogger
Twitter
Tweets by hasznaltingatla
Flickr