Eladó Ház, Budapest 22. ker.

Ingatlan azonosító: HI-2540999

Budapest - Budapest XXII., Ikerház


159 900 000 Ft (445 404 €)

  • Hirdetés feladója: Ingatlaniroda
  • Pontos cím: Budapest XXII.
  • Típus: Eladó
  • Belső irodai azonosító: M323021-5156686
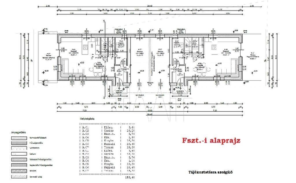
  • Alapterület: 119 m²
  • Telekterület: 385 m² ( 107 négyszögöl )
  • Építés éve: 2026
  • Egész szobák száma (12 m² felett): 5 db
  • Félszobák száma (6-12 m² között): 0 db
  • Fürdőszobák száma: 2 db
  • Ingatlan állapota: új építésű
  • Komfort: összkomfortos
  • Fűtés: egyéb
  • Pince: nincs
  • Akadálymentesített: nincs
  • Energiatanúsítvány: A+
  • Napelem van?: nincs
  • Légkondicionáló: van

Leírás

ÚJ ÉPÍTÉSŰ IKERHÁZ BUDAPEST XXII. KERÜLETÉBEN! KÖLTÖZHETŐ IDÉN OKTÓBERBEN! ÖNÁLLÓ ALBETÉT! Tőkeerős vállalkozó, aki már régóta a Megbízóm, a kerületben újabb ikerház építésébe kezdett, az alapok már így február közepén kész is vannak, átadás idén ősszel. A telek remek adottságainak köszönhetően széles az utcafront, így a telket pont el lehetett felezni az A. és B. épületekhez. Mindkét lakrészhez saját garázs és kert, valamint önálló fogyasztásmérők lesznek. Minden műszaki leírás és engedély nálam is megvan, meg lehet tekinteni. Beosztásából adódóan egy nagyobb családnak is kényelmes otthona lehet, mert a fszt-i amerikaikonyhás nappali mellé, az emeleten négy külön nyíló szoba lesz és egy gardrób. Mellékhelyiség mindkét szintre lett tervezve. A ház alapterületében van a garázs 1 autónak, innen belső ajtón át a házba lehet jutni. Tömegközlekedés: pár méteren belül 2 féle buszjárat áll rendelkezésre, a 213-as járattal közvetlenül a Móricz Zsigmond körtérre lehet bejutni kb. 20 perc alatt, a másik irányba Diósd és Érd is elérhető. A Campona bevásárló központ kocsival pár perc, busszal kb. 8-10 perc. A kerület családbarát, kellemes kertvárosias környezet. Hívjon bátran érdeklődni, az építkezés a kíséretemmel be is járható, megtekinthető. Fizetési feltételeket Ön határozza meg, és a kisebb változtatások, illetve egyedi igényekre jelenleg még van lehetőség, valamint mind a két épületrész még szabad! Az OTP Ingatlanpont hitelekkel, állami családtámogatásokkal és személyi bankár szolgáltatással segíti az otthonteremtési terveit. Hívjon fel bátran!

E-mail küldése a hirdetőnek

Hibás hirdetés bejelentése

Sikeres elküldtük a hiba bejelentést.

Hirdető adatai

Szabó Zoltánné
E-mail cím: szabo.zoltanne@otpip.hu
Telefonszám: +36704320290
OTPip
Hirdetés feladója: Ingatlaniroda
Ingatlaniroda: OTPip
E-mail cím: szepvolgyi@otpip.hu
Telefonszám: +3613260273

Képek



Térkép


Ajánlott ingatlanok

Ikerház

Eladó Ház, Budapest 22. ker.

Keresés azonosító alapján: HI-2515805
  • Budapest XXII.
  • Alapterület: 227 m²
  • Telekterület: 1 215 m²
  • Ár: 315 130 000 Ft (877 799 €)
  • Feltöltés dátuma: 2026.01.03.
  •  
Ikerház

Eladó Ház, Budapest 22. ker.

Keresés azonosító alapján: HI-2552239
  • Budapest XXII.
  • Alapterület: 195 m²
  • Telekterület: 500 m²
  • Ár: 119 000 000 Ft (331 476 €)
  • Feltöltés dátuma: 2026.03.19.
  •  
Ikerház

Eladó Ház, Budapest 22. ker.

Keresés azonosító alapján: HI-2515796
  • Budapest XXII.
  • Alapterület: 191 m²
  • Telekterület: 1 215 m²
  • Ár: 266 250 000 Ft (741 643 €)
  • Feltöltés dátuma: 2026.01.03.
  •  
Ikerház

Eladó Ház, Budapest 22. ker.

Keresés azonosító alapján: HI-2527209
  • Budapest XXII.
  • Alapterület: 360 m²
  • Telekterület: 893 m²
  • Ár: 265 000 000 Ft (738 162 €)
  • Feltöltés dátuma: 2026.01.29.
  •  
Facebook
Blogger
Twitter
Tweets by hasznaltingatla
Flickr