Eladó ház, Budapest 3. ker.

Ingatlan azonosító: HI-2526971

Budapest - Budapest III., Családi ház


549 000 000 Ft (1 444 737 €)

  • Hirdetés feladója: Ingatlaniroda
  • Pontos cím: Budapest III.
  • Típus: Eladó
  • Belső irodai azonosító: HZ012848-5133830
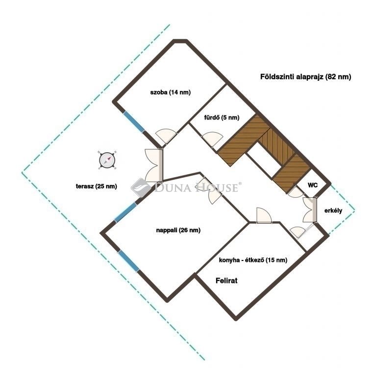
  • Alapterület: 360 m²
  • Telekterület: 1 005 m² ( 279 négyszögöl )
  • Építés éve: 2008
  • Egész szobák száma (12 m² felett): 5 db
  • Félszobák száma (6-12 m² között): 0 db
  • Fürdőszobák száma: 4 db
  • Ingatlan állapota: felújított
  • Komfort: duplakomfortos
  • Fűtés: gázkazán
  • Pince: nincs
  • Akadálymentesített: nincs
  • Energiatanúsítvány: A
  • Napelem van?: nincs
  • Légkondicionáló: nincs

Leírás

Testvérhegyen panorámás medencés családiház eladó! 13.kerületi Újépítésű ingatlan beszámítása lehetséges! Az impozáns 1000m2-es kertben elhelyezkedő, gondozott úszómedencével rendelkező luxusingatlan nettó 360m2-es. Az ingatlan tágas és világos, 5 hálószobát magában foglalva, mellyel minden családtag számára garantált a privát terület. A 80 négyzetméteres nappali és ebédlő központi helyet foglal el az otthonban, és az itt található ablakok egyenesen a természet szépségét mutatják be. A modern konyha kifinomult dizájnnal és magas minőségű berendezésekkel rendelkezik. A nappaliból nyíló 25 négyzetméteres panorámás terasz pedig egyedülálló kilátást kínál a környező zöld területekre. Ideális helyszín a reggeli kávézásra vagy egy kellemes esti vacsorára, miközben a naplemente lassan elbúcsúzik Az első emeleten két fürdőszoba és 3 szoba található, melyekhez egy hatalmas 33m2-es panorámás terasz is csatlakozik, lenyűgöző kilátással. Az épület alsó szintjén, a -1 szinten található a vendégszoba, mely a barátok vagy rokonok fogadására tökéletes, ahol a magánélet és a kényelem kiemelten fontos. Emellett itt helyezkedik el a gépészet és a wellness helyiség, ahol az egész napos felfrissülésről gondoskodik egy szauna tér, melegítő pad és egy merülő medence. Emellett egy dupla garázs, trezor szoba, fürdőszoba és mosókonyha is rendelkezésre áll, biztosítva a kényelmet és a biztonságot egyaránt. Gépészet: Rechau Immergas kondenzációs kazán, jaga radiátorok, központi légcsatornás klíma. Eladás és vétel teljes körű ügyintézése, ingyenes tanácsadás, értékbecslés, megbízható ügyvédi háttér biztosítása. Hitel és CSOK ügyintézés garantáltan a leggyorsabban, a legjobb feltételekkel. Személyre szabott ingyenes pénzügyi tanácsadás biztosításokkal és befektetésekkel kapcsolatban, KERESSEN BIZALOMMAL!

E-mail küldése a hirdetőnek

Hibás hirdetés bejelentése

Sikeres elküldtük a hiba bejelentést.

Hirdető adatai

Láng Péter
E-mail cím: peter.lang@dh.hu
Telefonszám: +36206111611
Duna House
Hirdetés feladója: Ingatlaniroda
Ingatlaniroda: Duna House
E-mail cím: azingatlanos@dh.hu
Telefonszám: +3626201551

Képek



Térkép


Ajánlott ingatlanok

Családi ház

Eladó ház, Budapest 16. ker.

Keresés azonosító alapján: HI-2526975
  • Budapest XVI.
  • Alapterület: 250 m²
  • Telekterület: 708 m²
  • Ár: 319 900 000 Ft (841 842 €)
  • Feltöltés dátuma: 2026.01.28.
  •  
Családi ház

Eladó ház, Nagykovácsi

Keresés azonosító alapján: HI-2528472
  • Nagykovácsi
  • Alapterület: 60 m²
  • Telekterület: 554 m²
  • Ár: 219 000 000 Ft (576 316 €)
  • Feltöltés dátuma: 2026.02.01.
  •  
Családi ház

Eladó ház, Budapest 11. ker.

Keresés azonosító alapján: HI-2526970
  • Budapest XI.
  • Alapterület: 200 m²
  • Telekterület: 625 m²
  • Ár: 279 990 000 Ft (736 816 €)
  • Feltöltés dátuma: 2026.01.28.
  •  
Családi ház

Eladó ház, Solymár

Keresés azonosító alapján: HI-2513814
  • Solymár
  • Alapterület: 290 m²
  • Telekterület: 800 m²
  • Ár: 249 000 000 Ft (655 263 €)
  • Feltöltés dátuma: 2025.12.18.
  •  
Facebook
Blogger
Twitter
Tweets by hasznaltingatla
Flickr