Eladó Ház, Budapest 3. ker.

Ingatlan azonosító: HI-2486325

Budapest - Budapest III., Családi ház


629 900 000 Ft (1 623 454 €)

  • Hirdetés feladója: Ingatlaniroda
  • Pontos cím: Budapest III. Királylaki út
  • Típus: Eladó
  • Belső irodai azonosító: M313982-5054541
  • Alapterület: 315 m²
  • Telekterület: 1 080 m² ( 300 négyszögöl )
  • Építés éve: 1990
  • Egész szobák száma (12 m² felett): 11 db
  • Félszobák száma (6-12 m² között): 0 db
  • Ingatlan állapota: új építésű
  • Komfort: duplakomfortos
  • Fűtés: gáz (cirko)
  • Pince: nincs
  • Akadálymentesített: nincs
  • Napelem van?: nincs
  • Légkondicionáló: van

Leírás

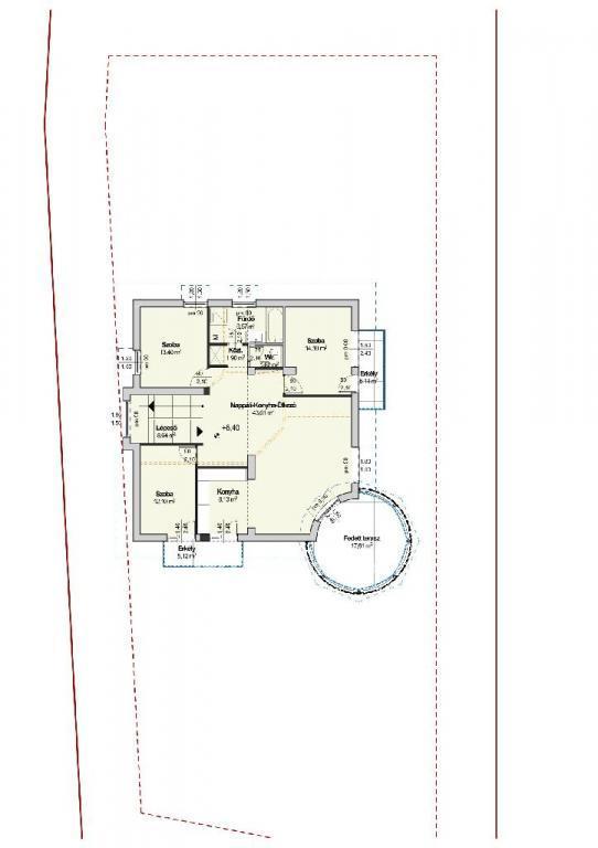
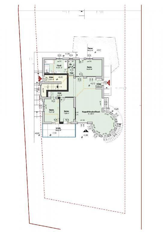
ELŐÉRTÉKESÍTÉSI AKCIÓ 2025 OKTÓBER VÉGÉIG! ÚJJÁÉPÍTETT (MINT AZ ÚJ) 3 LAKÁSOS ÉPÜLET, LAKÁS 2 MFT-OS M2 ÁRON KONYHABÚTORRAL? IGEN LEHETSÉGES, olvassa tovább?. III. kerületben, Táborhegy és Testvérhegy határán egy 3 lakásos ház hirdetését olvassa. 1.) lakás: 90 M2-ES NAPPALI + 2 HÁLÓSZOBÁS, 80 M2-ES saját kertkapcsolatos földszinti lakását ajánlom figyelmébe! Az 1990-ben épült épület, csak az alapszerkezetét meghagyva, teljes felújításon fog átesni, kiváló, Príma díjas építészmérnök átgondolt tervei alapján, ez egy olyan lakás lesz, ahol a szomszédok nem járnak át egymáson, tehát minden lakás, külön bejárati úttal fog rendelkezni, valamint minden lakás önálló, kizárólagos használatú kerttel lett tervezve. KÜLÖN HELYRAJZI SZÁMON értékesítjük az ingatlanokat (nem közös osztatlan), melyhez külön HRSZ-on lévő garázs is vásárolható igény esetén, vagy zárt gépkocsibeálló. Ebből 2 db lesz elérhető 18 m2 mérettel, automata garázskapuval,12 MFt-os áron, illetve 3db zárt udvari gépkocsibeálló 4 MFt-os áron. Nézzük a lakás elrendezését, egy 5,16 m2-es előszobából érkezünk a 35 m2-es amerikai-konyha-étkezős nappaliba, ahonnan egy 5,18 m2-es közlekedőn keresztül közelíthető meg a 2 nagy méretű hálószoba. (15 és 14.25 négyzetméretesek) Külön 2 db mellékhelyiség, és külön, majd 10 m2-es nagyméretű fürdőszoba teszi kényelmessé a reggeli készülést, mely zuhanyzóval és káddal is el lesz látva, valamint egy 5,33 m2-es háztartási helyiség praktikus megoldás a háztartási eszközök és a mosógép tárolására. Mind a konyha és a hálószobák közvetlen 25,45 m2-es teraszkapcsolattal rendelkeznek, ahonnan a zöld saját kert is megközelíthető. 2.) 110 M2-ES NAPPALI + 3 HÁLÓSZOBÁS, 2 erkélyes, 200 M2-ES saját kertkapcsolatos első emeleti. A lakás elrendezése: egy 1,83 m2-es előszobából érkezünk a 51,78 m2-es amerikai-konyha-étkezős nappaliba, ahonnan egy 3,75 m2-es közlekedőn keresztül közelíthető meg a 2 hálószoba. (11,41 és 11 négyzetméretesek), a harmadik hálószoba egy további 2,13 m2-es közlekedőből nyílik, amely 14,4 m2-es. 2 db mellékhelyiség és 10.5 m2-es nagyméretű fürdőszoba teszi kényelmessé a reggeli készülést, mely zuhanyzóval és káddal is el lesz látva. Mind a konyha, és a hátsó hálószoba (ez 14,5 m2-es erkéllyel) közvetlen kijárással a 200 m2-es kertre. Az utcafrontra néző hálószobák 14.82 m2-es erkélykapcsolatosak. 3.) 115 M2-ES NAPPALI + 3 HÁLÓSZOBÁS, 3 erkélyes, 170 M2-ES saját kert-el rendelkező de nem kertkapcsolatos! A lakás elrendezése: egy 8,64 m2-es saját lépcsőházból érkezünk a 51,74 m2-es amerikai-konyha-étkezős nappaliba, ahonnan közvetlenül közelíthető meg a 3 nagy méretű hálószoba. (12,10 valamint 13,4 és 14,19 négyzetméretesek). A 6.57 m2-es fürdő és a 1,82 mellékhelyiség külön lett elhelyezve, a fürdőszoba kényelmessé teszi a reggeli készülést, mert zuhanyzóval, és káddal is el lesz látva. A saját lépcsőház előtt helyezkedik el, a saját kizárólagos használatú 170 m2-es kert. ERKÉLYEK: Az utcafrontra néző hálószoba 5,12 m2-es erkélykapcsolatos, a nappaliból 17,61 m2-es fedett erkély nyílik, és oldalt a legnagyobb hálószobából szintén egy 5,17 m2-es erkély nyílik. KIALAKÍTÁSRA KERÜL EGY KÖRÜLBERLÜL 8X4 M-es MEDENCE, FINN SZAUNA-WPC NAPOZÓ RÉSZ (200M2 ÖSSZESEN) A TELEK HÁTSÓ RÉSZÉN KULCSRAKÉSZRE KIVITELEZVE. LEHETŐSÉG VAN AKÁR KÜLÖN MEVÁSÁROLNI, VAGY EGYÜTT A LAKÓKÖZÖSSÉGGEL 20 MFT-ÉRT KÖZÖS, VAGY KIZÁRÓLAGOS HASZNÁLATTAL. SZERZŐDNI 30% TELEKHÁNYAD VÁSÁRLÁSSAL ÉS 10% VÉTELÁRELŐLEGGEL LEHET, A TOVÁBBI FIZETÉS KÉSZÜLTSÉGI FOK ALAPJÁN ÜTEMEZÉSSEL.

E-mail küldése a hirdetőnek

Hibás hirdetés bejelentése

Sikeres elküldtük a hiba bejelentést.

Hirdető adatai

Szenk László
E-mail cím: laszlo.szenk@otpip.hu
Telefonszám: +36205024543
OTPip
Hirdetés feladója: Ingatlaniroda
Ingatlaniroda: OTPip
E-mail cím: pecs@otpip.hu
Telefonszám: +36-70-708-2428

Képek



Térkép


Ajánlott ingatlanok

Családi ház

Eladó Ház, Harkány

Keresés azonosító alapján: HI-2415978
  • Harkány Béke utca
  • Alapterület: 140 m²
  • Telekterület: 564 m²
  • Ár: 110 000 000 Ft (283 505 €)
  • Feltöltés dátuma: 2025.05.09.
  •  
Családi ház

Eladó Ház, Gerde

Keresés azonosító alapján: HI-2475525
  • Gerde Béke utca
  • Alapterület: 130 m²
  • Telekterület: 5 236 m²
  • Ár: 40 000 000 Ft (103 093 €)
  • Feltöltés dátuma: 2025.09.18.
  •  
Családi ház

Eladó Ház, Mohács

Keresés azonosító alapján: HI-2477881
  • Mohács Szabadság utca
  • Alapterület: 190 m²
  • Telekterület: 672 m²
  • Ár: 130 000 000 Ft (335 052 €)
  • Feltöltés dátuma: 2025.09.22.
  •  
Családi ház

Eladó Ház, Görcsönydoboka

Keresés azonosító alapján: HI-2441348
  • Görcsönydoboka Csele utca
  • Alapterület: 100 m²
  • Telekterület: 1 100 m²
  • Ár: 14 800 000 Ft (38 144 €)
  • Feltöltés dátuma: 2025.07.05.
  •  
Facebook
Blogger
Twitter
Tweets by hasznaltingatla
Flickr