Eladó Ház, Celldömölk

Ingatlan azonosító: HI-2546949

Vas megye - Celldömölk, Családi ház


30 000 000 Ft (83 565 €)

  • Hirdetés feladója: Ingatlaniroda
  • Pontos cím: Celldömölk
  • Típus: Eladó
  • Belső irodai azonosító: M323771-5166227
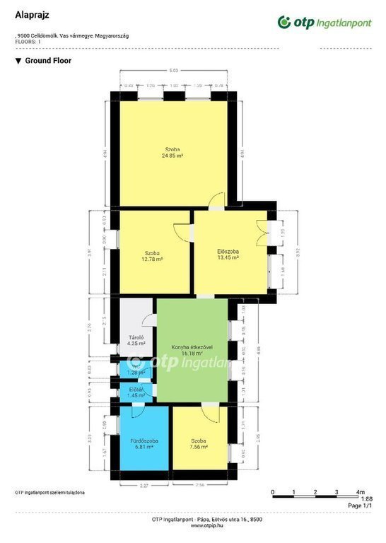
  • Alapterület: 88 m²
  • Telekterület: 782 m² ( 217 négyszögöl )
  • Építés éve: 1975
  • Egész szobák száma (12 m² felett): 2 db
  • Félszobák száma (6-12 m² között): 1 db
  • Ingatlan állapota: felújított
  • Komfort: összkomfortos
  • Fűtés: egyéb kazán
  • Pince: nincs
  • Akadálymentesített: nincs
  • Napelem van?: nincs
  • Légkondicionáló: nincs

Leírás

Remek lehetőség termálfürdővel rendelkező településen, közel az osztrák határhoz! Vas vármegyében, Celldömölkön kínálok megvételre nyugodt, csendes település részen egy 88,5 m2-es remek elrendezésű, egy szintes, igazán otthonos felújított családi házat, 782 m2 területű telken, panorámás kilátással a Ság hegyre. A külső terek rendezettek, az udvar füvesített, parkosított az ingatlant kerítés veszi körül. A ház kiváló statikai és szerkezeti állapotú, minden helyiségére jellemző, hogy világos, igazán otthonos. A város a Celldömölki járás székhelye, a megyeszékhely Szombathelytől 42 kilométerre keletre, a Marcal-medencében fekszik. 1978-tól várossá nyilvánított településen az ingatlantól nem messze található a Kemenesalja legnagyobb és legmodernebb termálfürdője, a Vulkán fürdő, a Celldömölki-tó, Ság-hegyi Tájvédelmi Körzet, a Kemenes Vulkánparkkal, Ság hegyi Múzeummal, Geológiai és madártani tanösvénnyel. A városban, de a környező településeken is termálfürdők, látványosságok sora található. Az 1975-ben épült tégla szerkezetű ingatlan 2 teljes értékű külön bejáratú szobából, 1 félszobából, konyhából és étkezőből, kamrából, fürdőből, WC-ből, előszobából áll. A ház további részében tároló helyiségek foglalnak helyet. Az udvari rész teljesen rendezett. Téli hideg napokon a ház melegéről vízteres kandalló gondoskodik radiátoros hőleadással. A meleg vizet villanybojler biztosítja. Az ingatlan folyamatos felújításon esett át: víz, villanyvezetékek, hideg, meleg burkolatok megújultak, kifogástalan állapotúak. A nyílászárók cseréje megtörtént műanyagra, redőnnyel felszereltek valamint műanyag ajtókra. A házat jelenlegi tulajdonosa a felújítások óta is folyamatosan karbantartotta, újítja. A ház elhelyezkedése szempontjából meglehetősen jó adottságokkal rendelkezik, tágas, világos terek és gondozható méretű udvar tartozik hozzá. Az ingatlan szerkezetileg nagyon jó állapotú. A közelben boltok, iskola, óvoda található, tömegközlekedés megfelelő. A közeli Sárvár, Pápa és a város vállalkozásai változatos munkahelyeket biztosítanak a munkavállalók számára. A várostól Mesteri termálfürdője 5 perc, Sárvártól alig 10 percre, Borgátától 15 percre található, vasút és buszközlekedése kiválló. Ajánlom mindazon érdeklődők több generációs családok, vállalkozók, befektetők figyelmébe, egy tágas, több igénynek is megfelelően kialakítható ingatlanra vágynak, városon nyugodt családias környezetben keresnek otthont. Az OTP Ingatlanpont teljes körű ügyintézéssel áll az eladók és a vevők rendelkezésére. A kínálatunkból választott ingatlan finanszírozásához kedvezményes hitelkonstrukciót kínálunk. Ez az ingatlan megfelel a fix 3%-os Otthon Start Hitelprogram feltételeinek! Az adásvételi szerződés megkötéséhez igény szerint megbízható ügyvédi közreműködést biztosítunk, és segítséget nyújtunk az adásvételhez kapcsolódó ügyek intézéséhez is. Amennyiben felkeltette érdeklődését az általam kínált ingatlan, keressen bizalommal. Az ingatlanról készült alaprajz, illetve fényképfelvételek az OTP Ingatlanpont szellemi tulajdonát képezik. Amennyiben felkeltette érdeklődését az általam kínált ingatlan, keressen bizalommal! Az energetikai tanúsítvány készítése folyamatban van, amint rendelkezésre áll, úgy azzal a hirdetés frissítésre kerül. 30000000 Ft Amennyiben az ingatlan felkeltette érdeklődését, esetleg bármivel kapcsolatban kérdése lenne, keressen Bizalommal! Verrasztó Edina: +36703156380 Referencia szám: M323771-HI

E-mail küldése a hirdetőnek

Hibás hirdetés bejelentése

Sikeres elküldtük a hiba bejelentést.

Hirdető adatai

Verrasztó Edina Irén
E-mail cím: edina.iren.verraszto@otpip.hu
Telefonszám: +36703156380
OTPip
Hirdetés feladója: Ingatlaniroda
Ingatlaniroda: OTPip
E-mail cím: papa@otpip.hu
Telefonszám: +36707081049

Képek



Térkép


Ajánlott ingatlanok

Családi ház

Eladó Ház, Győr

Keresés azonosító alapján: HI-2549887
  • Győr
  • Alapterület: 229 m²
  • Telekterület: 1 029 m²
  • Ár: 299 000 000 Ft (832 869 €)
  • Feltöltés dátuma: 2026.03.13.
  •  
Családi ház

Eladó Ház, Pápa

Keresés azonosító alapján: HI-2518891
  • Pápa
  • Alapterület: 185 m²
  • Telekterület: 363 m²
  • Ár: 117 000 000 Ft (325 905 €)
  • Feltöltés dátuma: 2026.01.07.
  •  
Családi ház

Eladó Ház, Celldömölk

Keresés azonosító alapján: HI-2566669
  • Celldömölk
  • Alapterület: 228 m²
  • Telekterület: 728 m²
  • Ár: 72 900 000 Ft (203 064 €)
  • Feltöltés dátuma: 2026.05.01.
  •  
Családi ház

Eladó Ház, Szergény

Keresés azonosító alapján: HI-2513079
  • Szergény
  • Alapterület: 82 m²
  • Telekterület: 2 568 m²
  • Ár: 10 790 000 Ft (30 056 €)
  • Feltöltés dátuma: 2025.12.16.
  •  
Facebook
Blogger
Twitter
Tweets by hasznaltingatla
Flickr