Eladó Ház, Csomád

Ingatlan azonosító: HI-2509844

Pest megye - Csomád, Családi ház


155 000 000 Ft (407 895 €)

  • Hirdetés feladója: Ingatlaniroda
  • Pontos cím: Csomád
  • Típus: Eladó
  • Belső irodai azonosító: M314767-5100341
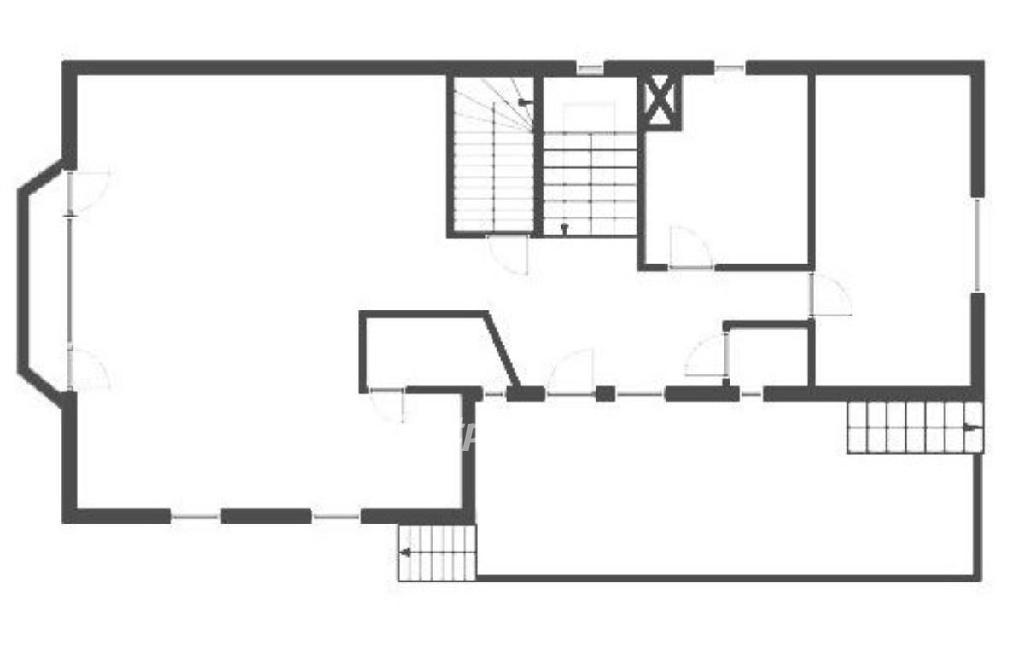
  • Alapterület: 162 m²
  • Telekterület: 1 791 m² ( 498 négyszögöl )
  • Építés éve: 2012
  • Egész szobák száma (12 m² felett): 4 db
  • Félszobák száma (6-12 m² között): 0 db
  • Fürdőszobák száma: 3 db
  • Ingatlan állapota: jó állapotú
  • Komfort: duplakomfortos
  • Fűtés: gáz (cirko)
  • Pince: nincs
  • Akadálymentesített: nincs
  • Napelem van?: nincs
  • Légkondicionáló: van

Leírás

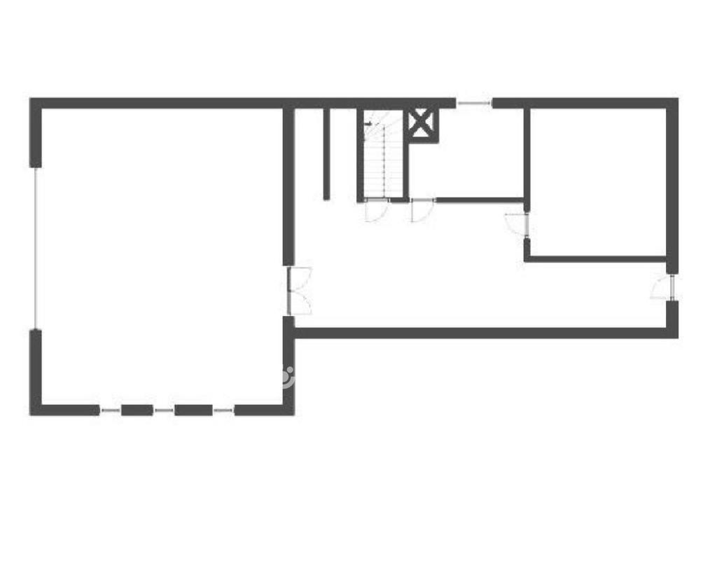
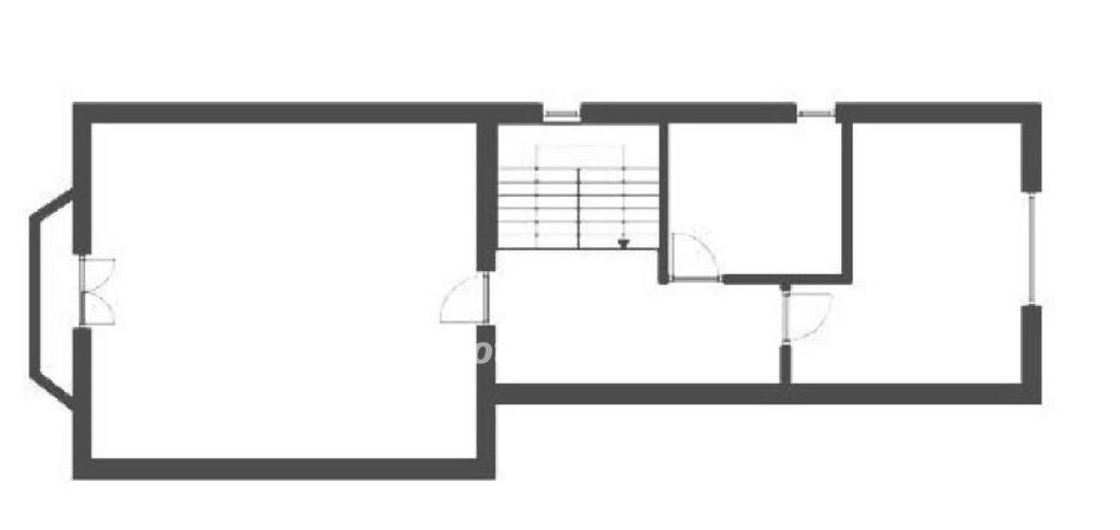
15 PERCRE BUDAPESTŐL ELADÓ SZÉP ÁLLAPOTÚ, AZONNAL KÖLTÖZHETŐ CSALÁDIHÁZ CSOMÁDON 3 SZINT, AKÁR TÖBB GENERÁCIÓ SZÁMÁRA IS, CÉGEKNEK IS KIVÁLÓ AJÁNLAT (IPARŰZÉSI ADÓMENTES TELEPÜLÉS), RENGETEG RAKTÁROZÁSI /TÁROLÁSI LEHETŐSÉGGEL! 3%-os OTTHON START LAKÁSHITELRE ALKALMAS AZ INGATLAN! Budapesttől mindössze 20 km-re, Csomád központi, mégis csendes részén eladó egy 256 nm-es, 3 szintes családi ház 1791 nm-es rendezett telken. Remek elosztása miatt, több generáció együttélésre is alkalmas, a garázsszintből opcionálisan kialakíthatunk akár még egy lakrészt is. A település iparűzési adómentes, így vállalkozások számára is kiváló lehetőség, akár irodai, akár raktározási célokra. A ház jelenleg is céges használatban van, több tárolóval, jól elkülöníthető terekkel. Ingatlan leírása: A földszint összesen 89 nm, ahol kialakításra került egy tágas nappali, amerikai konyha kamrával, hálószoba, fürdőszoba (hidromasszázskáddal és épített zuhannyal), külön WC, előszoba és egy 33,5 nm fedett terasz. Az emelet összesen 73 nm, ahol találhatunk egy közlekedőt, 2 hálószobát és fürdőszobát WC-vel, a nagyobbik szoba igény szerint kettéosztható. Garázsszinten továbbá kialakítottak 2 autó beállására alkalmas garázst, amely jelenleg raktárként üzemel, zuhanyzót és WC-t, kazánházat vegyestüzelésű és új gázkazánnal, további tároló helyiségeket, ennek a szintnek van egy külön bejárata, tehát akár szeparáltan is használható. További jellemzők: Kombinált fűtés: inverteres klíma, gázkazán és alternatívaként még egy vegyestüzelésű kazán is rendelkezésre áll. (radiátoros és padlófűtés). Műanyag nyílászárók, 3 rétegű üvegezéssel, részlegesen elektromos redőnyök is beépítésre is kerültek. 3 fázisú elektromos rendszer lett kiépítve. Teljes közműellátás van(víz, gáz, villany, csatorna átemelővel). Beépített víztisztító rendszer a konyhában. Az utóbbi időben számos felújításon esett át a ház, többek között: - 2024-ben: teljes külső-belső festés, villamoshálózat felújítása, előkerti kerítés megújítása, VBF dokumentáció készül. - 2023-ban: új gázkazán beépítése. Ez az ingatlan kiváló választás többgenerációs családoknak a jól elkülöníthető szintek, nagy terek és nyugodt környezet miatt. - Vállalkozásoknak: iparűzési adómentesség, sok tároló és az elkülöníthető szintek és a 2 külön bejárat miatt. - Befektetőknek: kiváló állapotú, tehermentes, azonnal hasznosítható ingatlan! Bővebbi információért várom hívását, akár hétvégén is! M314767 Referencia szám: M314767-HI

E-mail küldése a hirdetőnek

Hibás hirdetés bejelentése

Sikeres elküldtük a hiba bejelentést.

Hirdető adatai

Tamásné Mocsári Ildikó
E-mail cím: tamasne.mocsari.ildiko@otpip.hu
Telefonszám: +36-70-206-2979
OTPip
Hirdetés feladója: Ingatlaniroda
Ingatlaniroda: OTPip
E-mail cím: zuglo@otpip.hu
Telefonszám: +36-30-961-7263

Képek



Térkép


Ajánlott ingatlanok

Családi ház

Eladó Ház, Isaszeg

Keresés azonosító alapján: HI-2494790
  • Isaszeg
  • Alapterület: 87 m²
  • Telekterület: 622 m²
  • Ár: 65 900 000 Ft (173 421 €)
  • Feltöltés dátuma: 2025.10.29.
  •  
Családi ház

Eladó Ház, Budapest 12. ker.

Keresés azonosító alapján: HI-2507184
  • Budapest XII.
  • Alapterület: 650 m²
  • Telekterület: 880 m²
  • Ár: 549 900 000 Ft (1 447 105 €)
  • Feltöltés dátuma: 2025.11.28.
  • klímás
Családi ház

Eladó Ház, Isaszeg

Keresés azonosító alapján: HI-2493328
  • Isaszeg
  • Alapterület: 85 m²
  • Telekterület: 1 083 m²
  • Ár: 68 000 000 Ft (178 947 €)
  • Feltöltés dátuma: 2025.10.23.
  • klímás
Családi ház

Eladó Ház, Kerepes

Keresés azonosító alapján: HI-2406449
  • Kerepes
  • Alapterület: 162 m²
  • Telekterület: 305 m²
  • Ár: 86 900 000 Ft (228 684 €)
  • Feltöltés dátuma: 2025.04.25.
  •  
Facebook
Blogger
Twitter
Tweets by hasznaltingatla
Flickr