Eladó Ház, Dunaharaszti

Ingatlan azonosító: HI-2542879

Pest megye - Dunaharaszti, Családi ház


185 000 000 Ft (515 320 €)

  • Hirdetés feladója: Ingatlaniroda
  • Pontos cím: Dunaharaszti
  • Típus: Eladó
  • Belső irodai azonosító: M319139-5126589
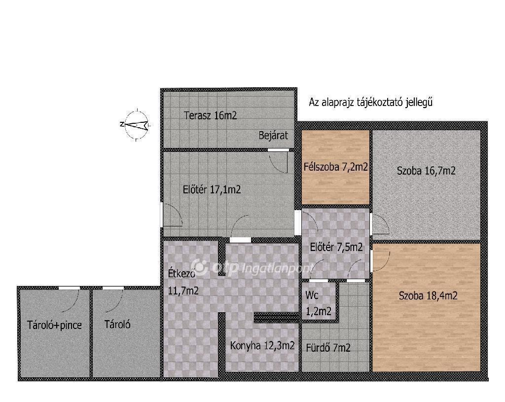
  • Alapterület: 129 m²
  • Telekterület: 304 m² ( 85 négyszögöl )
  • Építés éve: 1970
  • Egész szobák száma (12 m² felett): 4 db
  • Félszobák száma (6-12 m² között): 0 db
  • Ingatlan állapota: felújított
  • Komfort: duplakomfortos
  • Fűtés: gáz (cirko)
  • Pince: nincs
  • Akadálymentesített: nincs
  • Napelem van?: nincs
  • Légkondicionáló: van

Leírás

****KÖZVETLEN VÍZPARTI PRÉMIUM CSALÁDI HÁZ ELADÓ DUNAHARASZTIBAN SAJÁT STÉGGEL **** Eladó Dunaharasztiban, közvetlen Duna-parti elhelyezkedéssel, egy kétszintes, 129 nm-es, 3 hálószobás családi ház 304 nm-es telken. Az ingatlan tehermentes, 1/1-es tulajdonostól, azonnal birtokba vehető. Főbb jellemzők: Közvetlen vízparti elhelyezkedés Hivatalosan engedélyezett, önálló stég 3 hálószoba, tágas nappali-étkező, több beépített szekrény és gardrób Irodának használt 17 nm-s tároló 2 autó számára alkalmas beálló + Hörmann garázskapu az utcára HÉV-megálló 2 perc sétára Épület és korszerűsítések: Ytong és tégla falazat 2006-ban bővítés és külső szigetelés Padlófűtés az előszobában, a konyhában és az alsó fürdőszobában 2021-ben teljes modernizálás: 5 db Gree klíma Új nyílászárók Külső irodahelyiség kialakítása Teljes elektromos hálózatfelújítás Új burkolatok, gipszkarton mennyezetek Az eredmény egy világos, nyitott, modern belső tér Xiaomi okosotthon rendszer: Távolról vezérelhető világítás, fűtés és hűtés Szobánként szabályozható okos, motoros fűtőszelepek Rendkívül alacsony rezsiköltség Fűtés: Kombi gázkazán oldalfali kivezetéssel Klímás fűtési lehetőség Kéményátalakítás nélkül cserélhető kazán Külső szigetelés: 5 cm EPS hőszigetelés Az ablakok végső színezése az új tulajdonos igénye szerint alakítható Bútorozottság: Az ingatlan a képeken látható teljes bútorzattal eladó, beleértve: Beépített előszobaszekrények Gardrób Teljes konyhaberendezés Mosógép és szárítógép Igényes, modern otthon családoknak és azoknak, akik hosszú távon értékálló ingatlant keresnek. Az ingatlanhoz teljes körű ügyintézést biztosít az OTP Csoport szakértői csapata, akik minden jogi és pénzügyi kérdésben támogatást nyújtanak, beleértve a kedvezményes hitel- és lízing konstrukciókat, valamint a CSOK-ot. Digitális rendszerünknek köszönhetően akár személyes találkozó nélkül, online is könnyedén lebonyolítható a vásárlás. A kínálatunkból választott ingatlan finanszírozásához kedvezményes hitel- és lízingkonstrukciókat kínálunk. Az adásvételi szerződés megkötéséhez igény szerint megbízható ügyvédi közreműködést biztosítunk, és segítséget nyújtunk az adásvételhez kapcsolódó ügyek intézéséhez. Amennyiben felkeltettem érdeklődését, keressen bizalommal, akár hétvégén is. Referenciaszám:M319139 Az energetikai tanúsítvány készítése folyamatban van, amint rendelkezésre áll, úgy azzal a hirdetés frissítésre kerül.

E-mail küldése a hirdetőnek

Hibás hirdetés bejelentése

Sikeres elküldtük a hiba bejelentést.

Hirdető adatai

Káll László
E-mail cím: laszlo.kall@otpip.hu
Telefonszám: +36204619777
OTPip
Hirdetés feladója: Ingatlaniroda
Ingatlaniroda: OTPip
E-mail cím: dunaharaszti@otpip.hu
Telefonszám: +36308507315

Képek



Térkép


Ajánlott ingatlanok

Családi ház

Eladó Ház, Budapest 21. ker.

Keresés azonosító alapján: HI-2542987
  • Budapest XXI.
  • Alapterület: 543 m²
  • Telekterület: 543 m²
  • Ár: 165 000 000 Ft (459 610 €)
  • Feltöltés dátuma: 2026.03.02.
  • klímás
Családi ház

Eladó Ház, Budakalász

Keresés azonosító alapján: HI-2551349
  • Budakalász
  • Alapterület: 500 m²
  • Telekterület: 1 037 m²
  • Ár: 280 000 000 Ft (779 944 €)
  • Feltöltés dátuma: 2026.03.17.
  •  
Családi ház

Eladó Ház, Gyál

Keresés azonosító alapján: HI-2542932
  • Gyál
  • Alapterület: 139 m²
  • Telekterület: 720 m²
  • Ár: 133 000 000 Ft (370 474 €)
  • Feltöltés dátuma: 2026.03.02.
  • klímás
Családi ház

Eladó Ház, Dömsöd

Keresés azonosító alapján: HI-2572493
  • Dömsöd
  • Alapterület: 117 m²
  • Telekterület: 961 m²
  • Ár: 49 400 000 Ft (137 604 €)
  • Feltöltés dátuma: 2026.05.17.
  •  
Facebook
Blogger
Twitter
Tweets by hasznaltingatla
Flickr