Eladó Ház, Érd

Ingatlan azonosító: HI-2490073

Pest megye - Érd, Családi ház


125 000 000 Ft (322 165 €)

  • Hirdetés feladója: Ingatlaniroda
  • Pontos cím: Érd Kubikos utca
  • Típus: Eladó
  • Belső irodai azonosító: M314540-5063657
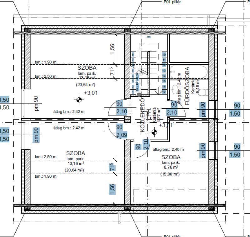
  • Alapterület: 140 m²
  • Telekterület: 419 m² ( 116 négyszögöl )
  • Építés éve: 2025
  • Egész szobák száma (12 m² felett): 4 db
  • Félszobák száma (6-12 m² között): 0 db
  • Ingatlan állapota: új építésű
  • Komfort: összkomfortos
  • Fűtés: egyéb
  • Pince: nincs
  • Akadálymentesített: nincs
  • Napelem van?: nincs
  • Légkondicionáló: nincs

Leírás

ÚJ ÉPÍTÉSŰ CSALÁDI HÁZ ÉRD FENYVES-PARKVÁROSBAN Modern otthon, magas műszaki tartalommal, A+ energiaosztállyal! Eladó Érd egyik legkedveltebb, csendes és zöldövezeti részén, Fenyves Parkvárosban egy nettó 140 nm-es, 2 szintes, új építésű, modern családi ház. A tágas, 41 nm-es amerikai konyhás nappali mellé 3 kényelmes hálószoba és dupla komfortos kialakítás biztosítja a család kényelmét. Magas műszaki tartalom A+ energiaosztály 15 cm homlokzati hőszigetelés 10 cm aljzatszigetelés 3 rétegű, 7 légkamrás nyílászárók Korszerű hőszivattyús fűtésrendszer Padlófűtés a teljes házban Cseréptető Alacsony fenntartási költségek, környezettudatos működés Elhelyezkedés: Nyugodt, madárcsicsergős, családias környék, mégis közel az M7-es autópályához, iskolákhoz, bevásárlási lehetőségekhez. Tökéletes választás mindazoknak, akik modern, energiatakarékos és hosszú távra tervezett otthont keresnek Érden! Megbízható kivitelező. A házat több sikeres referencia-munkával rendelkező kivitelező építi. Céges építkezés, amely államilag támogatott hitelkonstrukciókra is alkalmas. Az OTP Bankcsoport teljes körű ügyintézéssel áll az eladók és a vevők rendelkezésére! A kínálatunkból választott ingatlan finanszírozásához kedvezményes hitel konstrukciókat kínálunk. Az adásvételi szerződés megkötéséhez igény szerint megbízható ügyvédi közreműködést biztosítunk, és segítséget nyújtunk az adásvételhez kapcsolódó ügyek intézésében. További információért vagy megtekintéssel kapcsolatban hívjon a hét bármely napján.

E-mail küldése a hirdetőnek

Hibás hirdetés bejelentése

Sikeres elküldtük a hiba bejelentést.

Hirdető adatai

Szalontai Zsuzsanna
E-mail cím: zsuzsanna.szalontai@otpip.hu
Telefonszám: +36-70-355-0393
OTPip
Hirdetés feladója: Ingatlaniroda
Ingatlaniroda: OTPip
E-mail cím: szepvolgyi@otpip.hu
Telefonszám: +36-1-326-0273

Képek



Térkép


Ajánlott ingatlanok

Családi ház

Eladó Ház, Budapest 16. ker.

Keresés azonosító alapján: HI-2432780
  • Budapest XVI. Jászhalom utca
  • Alapterület: 101 m²
  • Telekterület: 243 m²
  • Ár: 81 500 000 Ft (210 052 €)
  • Feltöltés dátuma: 2025.06.18.
  •  
Családi ház

Eladó Ház, Budapest 2. ker.

Keresés azonosító alapján: HI-2363274
  • Budapest II.
  • Alapterület: 1 051 m²
  • Telekterület: 1 804 m²
  • Ár: 1 560 240 000 Ft (4 021 237 €)
  • Feltöltés dátuma: 2025.01.24.
  • klímás
Családi ház

Eladó Ház, Dunakeszi

Keresés azonosító alapján: HI-2438151
  • Dunakeszi
  • Alapterület: 133 m²
  • Telekterület: 627 m²
  • Ár: 172 500 000 Ft (444 588 €)
  • Feltöltés dátuma: 2025.07.02.
  •  
Családi ház

Eladó Ház, Gödöllő

Keresés azonosító alapján: HI-2425142
  • Gödöllő
  • Alapterület: 178 m²
  • Telekterület: 1 624 m²
  • Ár: 129 900 000 Ft (334 794 €)
  • Feltöltés dátuma: 2025.05.30.
  • klímás
Facebook
Blogger
Twitter
Tweets by hasznaltingatla
Flickr