Eladó ház Érd, Parkváros

Ingatlan azonosító: HI-2522120

Pest megye - Érd, Ikerház


238 900 000 Ft (620 519 €)

  • Hirdetés feladója: Ingatlaniroda
  • Pontos cím: Érd
  • Típus: Eladó
  • Belső irodai azonosító: U0049162-5122357
  • Alapterület: 198 m²
  • Telekterület: 300 m² ( 83 négyszögöl )
  • Építés éve: 2025
  • Egész szobák száma (12 m² felett): 4 db
  • Félszobák száma (6-12 m² között): 0 db
  • Fürdőszobák száma: 2 db
  • Ingatlan állapota: új építésű
  • Komfort: luxus
  • Fűtés: egyéb
  • Pince: nincs
  • Akadálymentesített: nincs
  • Napelem van?: nincs
  • Légkondicionáló: nincs

Leírás

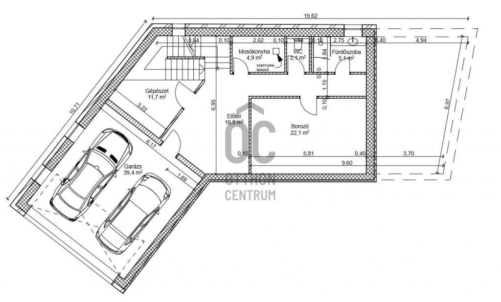
Érd-Parkvárosban, új építésű, panorámás, luxus otthon a természet ölében, intim környezetben! Érd-Parkváros csendes utcájában új építésű, nettó 187 m2-es, amerikai konyhás nappalival, 3 hálószobával, 2 fürdőszobával, kiszolgáló helyiségekkel, garázzsal, nagy terasszal ikerház eladó! Az épület formavilága rendkívül impozáns. Egyedi módon, szinteltolással kapcsolódik egymáshoz a két ház. Az ingatlant átgondolt, praktikus alaprajz, magas minőségű kivitelezés, modern, minden igényt kielégítő felszereltség jellemzi. Elhelyezkedése rendkívül csendes, zöld. Egy zsák utca végén, természetvédelmi terület szélén van, ami intimmé teszi. A hatalmas nyílászáróknak köszönhetően a ház világos, napos, panorámás a környező erdős hegyekre. A 61 m2-es terasz és a hozzákapcsolódó 78 m2-es zöldtető tökéletes helyet biztosít a kellemes pihenésre, kikapcsolódásra. A 2 épületnek csak a garázs szinten van közös fala. A házak 30 cm vastag Porotherm falazóelemekből épültek, 20 cm Dryvit rendszerű hőszigeteléssel. A fűtést Daikin hőszivattyús rendszer biztosítja, mennyezeti hűtés-fűtéssel és padlófűtéssel. A nyílászárók antracit színűek, fa, 3 rétegű, bukó-nyíló ablakok és nagy méretű toló teraszajtó, rejtett tokozással, elektromos redőnnyel, illetve zsalúziával. A burkolatok, szaniterek és belső ajtók kiemelkedő minőségben, az átlagnál magasabb áron választhatók. Az egyéb extra felszereltséget is tartalmazó részletes műszaki tartalmat komoly érdeklődés esetén rendelkezésére bocsájtjuk. A beruházó cég megbízható, és számos referencia munkával rendelkezik. Az utca rendezett, új építésű házakkal. Pár perc alatt elérhető minden szolgáltatás, iskola, óvoda, tömegközlekedés, bevásárlási lehetőség. A házak jelenleg már magas készültségi szinten vannak. Várható átadás: 2026. II. negyedév További információkkal kapcsolatban kérem hívjon bizalommal!

E-mail küldése a hirdetőnek

Hibás hirdetés bejelentése

Sikeres elküldtük a hiba bejelentést.

Hirdető adatai

Lukácsi Mária
E-mail cím: lukacsi.maria@oc.hu
Telefonszám: +36 70 461 9686
Otthon Centrum
Hirdetés feladója: Ingatlaniroda
Ingatlaniroda: Otthon Centrum
E-mail cím: krisztina@oc.hu
Telefonszám: +36 1 225 8510

Képek



Térkép


Ajánlott ingatlanok

Ikerház

Eladó ház Solymár

Keresés azonosító alapján: HI-2520358
  • Solymár
  • Alapterület: 152 m²
  • Telekterület: 450 m²
  • Ár: 223 000 000 Ft (579 221 €)
  • Feltöltés dátuma: 2026.01.13.
  •  
Ikerház

Eladó ház Érd, Parkváros

Keresés azonosító alapján: HI-2522121
  • Érd
  • Alapterület: 187 m²
  • Telekterület: 300 m²
  • Ár: 226 000 000 Ft (587 013 €)
  • Feltöltés dátuma: 2026.01.14.
  •  
Családi ház

Eladó ház Budapest 2. ker., Kurucles

Keresés azonosító alapján: HI-2520352
  • Budapest II.
  • Alapterület: 300 m²
  • Telekterület: 860 m²
  • Ár: 445 000 000 Ft (1 155 844 €)
  • Feltöltés dátuma: 2026.01.13.
  •  
Új építésű lakás

Eladó lakás Budapest 8. ker., Magdolna negyed

Keresés azonosító alapján: HI-2520364
  • Budapest VIII.
  • Alapterület: 44 m²
  • Ár: 75 990 000 Ft (197 377 €)
  • Feltöltés dátuma: 2026.01.13.
  •  
Facebook
Blogger
Twitter
Tweets by hasznaltingatla
Flickr