Eladó ház, Fót

Ingatlan azonosító: HI-2570091

Pest megye - Fót, Családi ház


120 000 000 Ft (334 262 €)

  • Hirdetés feladója: Ingatlaniroda
  • Pontos cím: Fót
  • Típus: Eladó
  • Belső irodai azonosító: HZ051680-5223914
  • Alapterület: 240 m²
  • Telekterület: 894 m² ( 249 négyszögöl )
  • Építés éve: 1965
  • Egész szobák száma (12 m² felett): 7 db
  • Félszobák száma (6-12 m² között): 0 db
  • Fürdőszobák száma: 3 db
  • Ingatlan állapota: jó állapotú
  • Fűtés: egyéb kazán
  • Pince: nincs
  • Akadálymentesített: nincs
  • Napelem van?: nincs
  • Légkondicionáló: nincs

Leírás

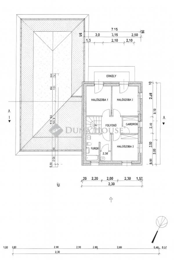
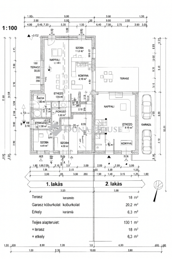
Akár három generáció együtt, mégis külön - családi ház vállalkozási lehetőséggel Fóton! Fót csendes, jól megközelíthető részén kínálunk megvételre egy több ütemben bővített családi házat. Az eredeti épületrész az 1960-as években épült (egy fala kő, többi tégla), később téglából bővítették, majd 2002-ben ytongból épült rá az emelet, 2007-ben pedig külső szigetelést kapott. A házban jelenleg három különálló lakrész került kialakításra, így ideális választás több generáció együttélésére vagy akár befektetési célra is. A melegvízről villanybojler gondoskodik, míg az otthon melegét vegyestüzelésű kazán biztosítja radiátoros hőleadással ÉS: > A földszinten egy több mint 90 m²-es lakrész található, ahol nappali, konyha, két tágas hálószoba, fürdőszoba, főzőfülke és előszoba kapott helyet. A téli estétken a lakrész hangulatát egy cserépkályha biztosítja. > Szintén a földszinten helyezkedik el egy külön bejáratú, körülbelül 20 m²-es, szobakonyhafürdőszoba elosztású lakrész, amelynek fűtése kályhával megoldott. > Az emeleten egy szintén kicsivel több mint 90 m²-es lakrész került kialakításra, nappalival, konyhával, két hálószobával, fürdőszobával és egy hangulatos terasszal. Ebben a lakrészben hűtő-fűtő klíma került beszerelésre. Az emeleten további, körülbelül 30 m²-es padlástér található, amely jelenleg tárolóként funkcionál, de igény szerint beépíthető, ezzel tovább növelve a lakóteret. Ezen felül egy további, tágas padlástér is rendelkezésre áll tárolási célokra. A telken található egy műhely (ipari árammal, vízzel, csatornával ellátva), amelyhez érvényes hatósági bizonyítvány tartozik vállalkozási tevékenység folytatására, így a ház kiváló lehetőséget biztosít otthoni munkavégzésre vagy vállalkozás működtetésére is. A közműveknek köszönhetően akár további önálló lakrész is kialakítható benne. Ha már idáig elolvasta, bizonyára Ön is látja, hogy ez a ház több mint egy egyszerű ingatlan. Jöjjön el, nézze meg személyesen és mesélje el, Ön hogyan alakítaná tovább ezt az otthont! További információért keressen bizalommal a hét bármely napján! Az energetikai tanúsítvány készítése folyamatban van, amint rendelkezésre áll, úgy azzal a hirdetés frissítésre kerül. Keressen bizalommal az ünnepek alatt is! Érd: Dzimba Rita, tel: +36/20 915 4054, e-mail: dzimba.rita@dh.hu Referencia szám: HZ051680

E-mail küldése a hirdetőnek

Hibás hirdetés bejelentése

Sikeres elküldtük a hiba bejelentést.

Hirdető adatai

Dzimba Rita
E-mail cím: dzimba.rita@dh.hu
Telefonszám: +36209154054
Duna House
Hirdetés feladója: Ingatlaniroda
Ingatlaniroda: Duna House
E-mail cím: godollo@dh.hu
Telefonszám: +3628614646

Képek



Térkép


Ajánlott ingatlanok

Családi ház

Eladó ház, Gyál

Keresés azonosító alapján: HI-2570093
  • Gyál
  • Alapterület: 60 m²
  • Telekterület: 606 m²
  • Ár: 59 900 000 Ft (166 852 €)
  • Feltöltés dátuma: 2026.05.13.
  •  
Családi ház

Eladó ház, Kóka

Keresés azonosító alapján: HI-2570750
  • Kóka
  • Alapterület: 146 m²
  • Telekterület: 1 079 m²
  • Ár: 29 000 000 Ft (80 780 €)
  • Feltöltés dátuma: 2026.05.14.
  •  
Családi ház

Eladó ház, Jászárokszállás

Keresés azonosító alapján: HI-2570745
  • Jászárokszállás
  • Alapterület: 88 m²
  • Telekterület: 464 m²
  • Ár: 20 990 000 Ft (58 468 €)
  • Feltöltés dátuma: 2026.05.14.
  •  
Családi ház

Eladó ház, Jászfényszaru

Keresés azonosító alapján: HI-2570082
  • Jászfényszaru
  • Alapterület: 110 m²
  • Telekterület: 1 405 m²
  • Ár: 78 000 000 Ft (217 270 €)
  • Feltöltés dátuma: 2026.05.13.
  •  
Facebook
Blogger
Twitter
Tweets by hasznaltingatla
Flickr