Eladó ház, Fót

Ingatlan azonosító: HI-2490915

Pest megye - Fót, Családi ház


262 000 000 Ft (673 522 €)

  • Hirdetés feladója: Ingatlaniroda
  • Pontos cím: Fót
  • Típus: Eladó
  • Belső irodai azonosító: HZ028948-5065777
  • Alapterület: 260 m²
  • Telekterület: 769 m² ( 214 négyszögöl )
  • Egész szobák száma (12 m² felett): 6 db
  • Félszobák száma (6-12 m² között): 0 db
  • Fürdőszobák száma: 4 db
  • Ingatlan állapota: újszerű
  • Fűtés: egyéb
  • Pince: nincs
  • Akadálymentesített: nincs
  • Napelem van?: nincs
  • Légkondicionáló: nincs

Leírás

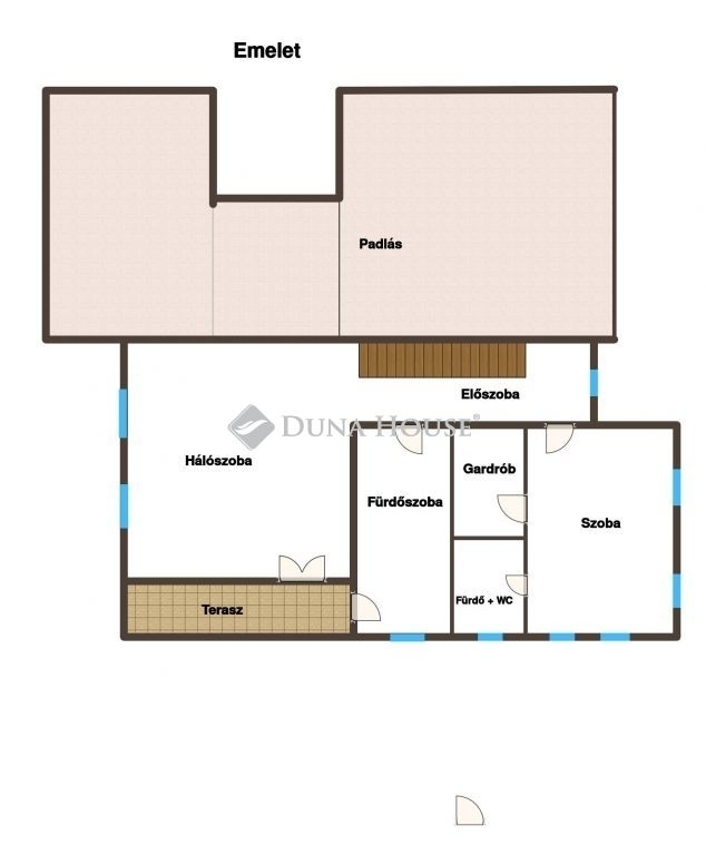
Exkluzív téglaépítésű családi otthon FótonEzt az egyedi, 2022-ben épült, téglaépítésű, kertkapcsolatos családi otthont, azoknak ajánljuk, akik a kiemelkedő minőséget és a természet közelségét keresik. Budapest szívéhez közel, mégis távol a város zajától, Fóton található ez a különleges, napfényes 260 m2-es családi ház, ami egy több, mint 760 m2-es telken áll 262 millió forintért lehet az Öné. Az otthon a modern építészeti megoldásokat és a kényelmet ötvözi, és rendelkezik a legújabb technológiákkal, így az épületben hőszivattyús fűtési rendszer gondoskodik a kellemes hőmérsékletről minden évszakban. Az ingatlan kialakítása biztosítja, hogy minden helyiség könnyen és kényelmesen megközelíthető és használható legyen.A házat jó megközelíthetőség jellemzi, mind Fóton belül, mind a Budapest közelségének tekintetében. Így az itt élő a városi élet számos előnyét is élvezheti, miközben kertvárosi környezetben él.Földszinten található helyiségek:Előszoba - 12 m2Nappali 43 m2Szoba 18 m2Szoba 22 m2Konyha + étkező - 15 m2Kamra 3 m2Tároló - 3 m2Fürdőszoba, WC-vel 6 m2Gardróbszoba - 4 m2Mosókonyha (gépészet) - 4 m2 A házhoz kapcsolódik még egy hatalmas fedett terasz, ahová még esős időben is kiülhetünk, gyönyörű, gyepesített kert, medence, fedett sütögető sarok, nagy kerti tároló ház, valamint egy kétbeállásos garázs is.Emeleten található helyiségek: Közlekedő - 9 m2 Hálószoba - 27 m2 Szoba 18 m2 Fürdőszoba - 15 m2 Zuhanyzó - 4 m2 Gardróbszoba - 4 m2 A hálószobához egy 14 m2 es terasz kapcsolódik panoráma kilátással. A ház elhelyezkedése ideális, csendes és barátságos környezetben található. Az úszómedencés kert, valamint az emeleti szint teraszáról nyíló kilátás lehetőséget nyújt a pihentető kikapcsolódásra és a természetközeli élet élvezetére. A ház praktikus kialakítása ideális otthoni iroda kialakítására, így az otthoni munkavégzés számára is ideális. Hívjon bizalommal, hétvégén is - +3620 4066872 Referencia szám: HZ028948

E-mail küldése a hirdetőnek

Hibás hirdetés bejelentése

Sikeres elküldtük a hiba bejelentést.

Hirdető adatai

Szabó-Sári Boglárka
E-mail cím: sz.sari.boglarka@dh.hu
Telefonszám: +36204066872
Duna House
Hirdetés feladója: Ingatlaniroda
Ingatlaniroda: Duna House
E-mail cím: fot@dh.hu
Telefonszám: +36705774328

Képek



Térkép


Ajánlott ingatlanok

Családi ház

Eladó ház, Veresegyház

Keresés azonosító alapján: HI-2479192
  • Veresegyház
  • Alapterület: 250 m²
  • Telekterület: 788 m²
  • Ár: 149 000 000 Ft (383 033 €)
  • Feltöltés dátuma: 2025.09.24.
  •  
Családi ház

Eladó ház, Siófok

Keresés azonosító alapján: HI-2478598
  • Siófok
  • Alapterület: 115 m²
  • Telekterület: 781 m²
  • Ár: 230 000 000 Ft (591 260 €)
  • Feltöltés dátuma: 2025.09.24.
  •  
Családi ház

Eladó ház, Vecsés

Keresés azonosító alapján: HI-2478508
  • Vecsés
  • Alapterület: 76 m²
  • Telekterület: 535 m²
  • Ár: 82 000 000 Ft (210 797 €)
  • Feltöltés dátuma: 2025.09.24.
  •  
Családi ház

Eladó ház, Budapest 2. ker.

Keresés azonosító alapján: HI-2479446
  • Budapest II.
  • Alapterület: 280 m²
  • Telekterület: 976 m²
  • Ár: 409 059 000 Ft (1 051 566 €)
  • Feltöltés dátuma: 2025.09.24.
  •  
Facebook
Blogger
Twitter
Tweets by hasznaltingatla
Flickr