Eladó ház, Gomba

Ingatlan azonosító: HI-2474630

Pest megye - Gomba, Családi ház


99 000 000 Ft (255 155 €)

  • Hirdetés feladója: Ingatlaniroda
  • Pontos cím: Gomba
  • Típus: Eladó
  • Belső irodai azonosító: HZ038089-5035752
  • Alapterület: 106 m²
  • Telekterület: 832 m² ( 231 négyszögöl )
  • Építés éve: 2025
  • Egész szobák száma (12 m² felett): 5 db
  • Félszobák száma (6-12 m² között): 0 db
  • Fürdőszobák száma: 1 db
  • Ingatlan állapota: új építésű
  • Fűtés: egyéb
  • Pince: nincs
  • Akadálymentesített: nincs
  • Napelem van?: nincs
  • Légkondicionáló: nincs

Leírás

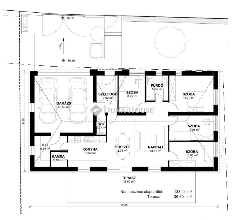
GOMBA - ÖNÁLLÓ CSALÁDI HÁZ ÚJÉPÍTÉSŰ 4 SZOBA + AMERIKAI KONYHÁS NAPPALI HŐSZIVATTYÚS FŰTÉS Gomba településen, eladó újépítésű önálló családi ház, 4 szoba + nappalis, 832 nm - es telekkel, hőszivattyús fűtéssel, 26 nm-es terasszal! 3 gyerekes csok pluszra alkalmas! Közművek be vannak vezetve, rendelkezik víz, villany és szennyvízcsatornával. Az M4-es autóút pár perc alatt elérhető a háztól! Az ingatlan nagyon kedvező rezsivel fog rendelkezni a megfelelő hőszigetelésnek és a hőszivattyús fűtésnek köszönhetően. Műszaki adatok röviden: Tégla építés 10 cm-es homlokzati szigeteléssel, födém 30 cm-es hőszigeteléssel, 5 légkamrás műanyag nyílászárók, szúnyoghálóval és redőnyökkel felszerelve, kívül - belül műanyag párkányok, betoncserép, H tarifás villanyóra, 3X20 Amper, elektromos kapu, fischer 3,5 kw-os hűtő-fűtő klíma, 8 kw-os fischer hőszivattyú, választható hideg- és meleg burkolatok 8000 ft/nm áron, belső ajtók 100 000 ft / db, választható szaniterek, Geberit WC-k, elektromos kapu, nappaliban hűtő-fűtő klíma, padlófűtés mindenhol, a fürdőszobában törölközőszárítós radiátor, gépi vakolás, 60 nm viacolorral burkolt autóbeálló és járdák, elektromos redőny a teraszon, BB energetikai besorolás, 26 nm-es nappali kapcsolatos terasz. Belső elrendezését az alábbiakban sorolom fel, négyzetméterek megjelölésével: fedett belépő 3.36 nm előszoba: 5.44 nm konyha + étkező 16.35 nm nappali 19.08 nm szoba 10.64 nm szoba 10.80 nm szoba 10.26 nm szoba 10.80 nm kamra 3.24 nm közlekedő 4.29 nm fürdőszoba + wc 6.13 nm háztartási helyiség 3.78 nm WC 1,44 nm gardrób 4.05 nm + nappali kapcsolatos terasz 26.7 nm-es Referenciamunkát tudunk mutatni. Az építő cég anyagilag biztos talpakon áll és szakmailag megbízható, elégedett ügyfelekkel rendelkezik! A hirdetésben szereplő képek referencia fotók! Várható befejezés: szerződéskötéstől számítva 4-5 hónap! Hívj, és nézzük meg együtt!! Érd: Kovács Ildikó, tel: +36/20 317 5063, e-mail: ildiko.kovacs1@dh.hu A megvásárláshoz hitelre van szüksége? Segítünk! Ügyfeleinket - együttműködő partnerünk - a Hitelcentrum Kft segíti a hitelügyintézés teljeskörű lebonyolításában. 12 bankkal állnak kapcsolatban, mely rugalmassá, kényelmessé, és gyorsabbá teszi hitelének ügyintézését, és biztosítja, hogy megismerhesse az Ön számára legkedvezőbb ajánlatot! A szolgáltatás Vevőink számára ingyenes! Ne tétovázzon, hívjon és nézzük meg együtt az ingatlant! https://szabo-timea-orsolya.credipass.hu/ Referencia szám: HZ038089

E-mail küldése a hirdetőnek

Hibás hirdetés bejelentése

Sikeres elküldtük a hiba bejelentést.

Hirdető adatai

Kovács Ildikó_
E-mail cím: ildiko.kovacs1@dh.hu
Telefonszám: +36203175063
Duna House
Hirdetés feladója: Ingatlaniroda
Ingatlaniroda: Duna House
E-mail cím: gyomro@dh.hu
Telefonszám: +3629263520

Képek



Térkép


Ajánlott ingatlanok

Családi ház

Eladó Ház, Gyömrő

Keresés azonosító alapján: HI-2349554
  • Gyömrő
  • Alapterület: 760 m²
  • Telekterület: 2 000 m²
  • Ár: 740 000 000 Ft (1 907 216 €)
  • Feltöltés dátuma: 2025.01.02.
  •  
Családi ház

Eladó ház, Monor

Keresés azonosító alapján: HI-2349551
  • Monor
  • Alapterület: 85 m²
  • Telekterület: 436 m²
  • Ár: 54 000 000 Ft (139 175 €)
  • Feltöltés dátuma: 2025.01.02.
  •  
Családi ház

Eladó ház, Albertirsa

Keresés azonosító alapján: HI-2418386
  • Albertirsa
  • Alapterület: 145 m²
  • Telekterület: 1 692 m²
  • Ár: 130 000 000 Ft (335 052 €)
  • Feltöltés dátuma: 2025.05.15.
  •  
Családi ház

Eladó ház, Sülysáp

Keresés azonosító alapján: HI-2474623
  • Alapterület: 107 m²
  • Telekterület: 1 455 m²
  • Ár: 79 900 000 Ft (205 928 €)
  • Feltöltés dátuma: 2025.09.16.
  •  
Facebook
Blogger
Twitter
Tweets by hasznaltingatla
Flickr