Eladó Ház, Hajdúböszörmény

Ingatlan azonosító: HI-2487636

Hajdú-Bihar megye - Hajdúböszörmény, Családi ház


56 000 000 Ft (142 857 €)

  • Hirdetés feladója: Ingatlaniroda
  • Pontos cím: Hajdúböszörmény
  • Típus: Eladó
  • Belső irodai azonosító: M313111-5056137
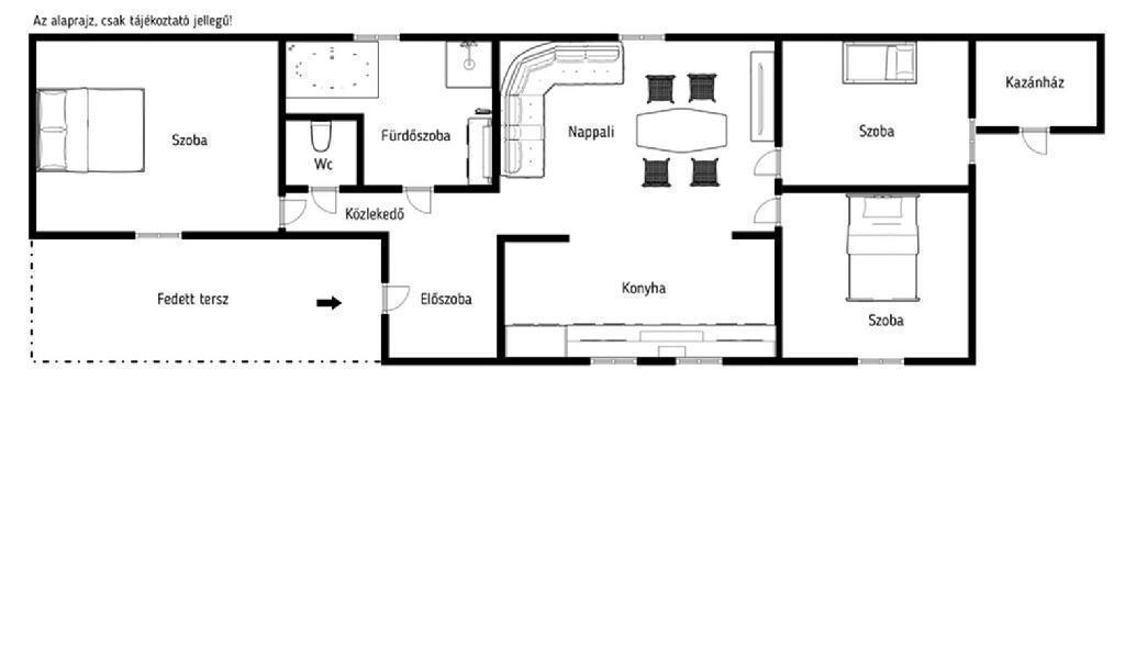
  • Alapterület: 83 m²
  • Telekterület: 445 m² ( 124 négyszögöl )
  • Építés éve: 1970
  • Egész szobák száma (12 m² felett): 3 db
  • Félszobák száma (6-12 m² között): 0 db
  • Ingatlan állapota: jó állapotú
  • Komfort: összkomfortos
  • Fűtés: egyéb
  • Pince: nincs
  • Akadálymentesített: nincs
  • Napelem van?: nincs
  • Légkondicionáló: nincs

Leírás

Hajdúböszörményben, a Báthory Gábor körút egyik csendes, családosok által kedvelt zugában eladó egy teljes körűen felújított családi ház, amely ideális választás lehet mindazok számára, akik nyugalmat és biztonságot keresnek, mégis könnyen elérhető közelségben a város kényelmével. * Telek: 455 m2 téglalap alakú, rendezett környezetben * Közművek: villany, víz, csatorna bekötve (gáz nincs) * Lakóépület: 83 m2 hasznos alapterület * Falazat: vegyes szerkezet (1970-es évek téga, 2000-es évek vályog bővítése), beton alap, fafödém, cserépfedés * Felújítás: 2024-ben teljes körű belső felújítás * új elektromos hálózat és vízvezetékek * modern járólapok a vizes helyiségekben * laminált parketta a szobákban * új beltéri ajtók * műanyag nyílászárók * inverteres Klíma * Fűtés: vegyes tüzelésű kazán, radiátoros hőleadással, a kazán 2024-ben került beépítésre * Melgviz ellátás , új ARISTON villanybojlerről van megoldva * Helyiségek: * 3 külön bejáratú szoba (13 m2, 13 m2, 18 m2) * nappali?konyha egy légtérben * közlekedő és előszoba * külön fürdőszoba és WC * új lemez kerítés * található még a telken egy kisebb autó tárolására alkalmas garázs * Extrák: a beépített konyhabútor a vételár részét képezi * Állapot: per- és tehermentes, rövid időn belül birtokba vehető A ház belülről teljesen elkészült, így új tulajdonosa azonnal beköltözhet, és élvezheti az otthon nyújtotta kényelmet. A csendes környék, a praktikus elrendezés és a gondos felújítás egyaránt biztosítja, hogy ez az ingatlan hosszú távon is kiváló választás legyen családok számára. További kérdéseire készséggel válaszolok, akár hétvégén is. Kedvezményes kamatozású lakásvásárlási hitelek, valamint Babaváró és CSOK ügyintézése az OTP hátterével irodánkban. Ref.szám: M313111 Referencia szám: M313111

E-mail küldése a hirdetőnek

Hibás hirdetés bejelentése

Sikeres elküldtük a hiba bejelentést.

Hirdető adatai

Oláhné Németi Gréta
E-mail cím: greta.olahne.nemeti@otpip.hu
Telefonszám: +36-20-213-3243
OTPip
Hirdetés feladója: Ingatlaniroda
Ingatlaniroda: OTPip
E-mail cím: debrecenkurtos@otpip.hu
Telefonszám: +36-20-528-8700

Képek



Térkép


Ajánlott ingatlanok

Családi ház

Eladó Ház, Debrecen

Keresés azonosító alapján: HI-2469043
  • Debrecen
  • Alapterület: 95 m²
  • Telekterület: 1 143 m²
  • Ár: 64 900 000 Ft (165 561 €)
  • Feltöltés dátuma: 2025.09.02.
  •  
Családi ház

Eladó Ház, Debrecen

Keresés azonosító alapján: HI-2412106
  • Debrecen
  • Alapterület: 120 m²
  • Telekterület: 404 m²
  • Ár: 119 500 000 Ft (304 847 €)
  • Feltöltés dátuma: 2025.05.02.
  •  
Családi ház

Eladó Ház, Debrecen

Keresés azonosító alapján: HI-2419427
  • Debrecen
  • Alapterület: 56 m²
  • Telekterület: 822 m²
  • Ár: 15 990 000 Ft (40 791 €)
  • Feltöltés dátuma: 2025.05.17.
  •  
Családi ház

Eladó Ház, Debrecen

Keresés azonosító alapján: HI-2449022
  • Debrecen
  • Alapterület: 84 m²
  • Telekterület: 938 m²
  • Ár: 39 900 000 Ft (101 786 €)
  • Feltöltés dátuma: 2025.07.25.
  •  
Facebook
Blogger
Twitter
Tweets by hasznaltingatla
Flickr