Eladó Ház, Kiskunlacháza

Ingatlan azonosító: HI-2499010

Pest megye - Kiskunlacháza, Családi ház


75 000 000 Ft (194 301 €)

  • Hirdetés feladója: Ingatlaniroda
  • Pontos cím: Kiskunlacháza
  • Típus: Eladó
  • Belső irodai azonosító: M316673-5079139
  • Alapterület: 130 m²
  • Telekterület: 993 m² ( 276 négyszögöl )
  • Építés éve: 1970
  • Egész szobák száma (12 m² felett): 4 db
  • Félszobák száma (6-12 m² között): 0 db
  • Fürdőszobák száma: 1 db
  • Ingatlan állapota: közepes állapotú
  • Komfort: összkomfortos
  • Fűtés: gáz (cirko)
  • Pince: van
  • Akadálymentesített: nincs
  • Napelem van?: nincs
  • Légkondicionáló: van

Leírás

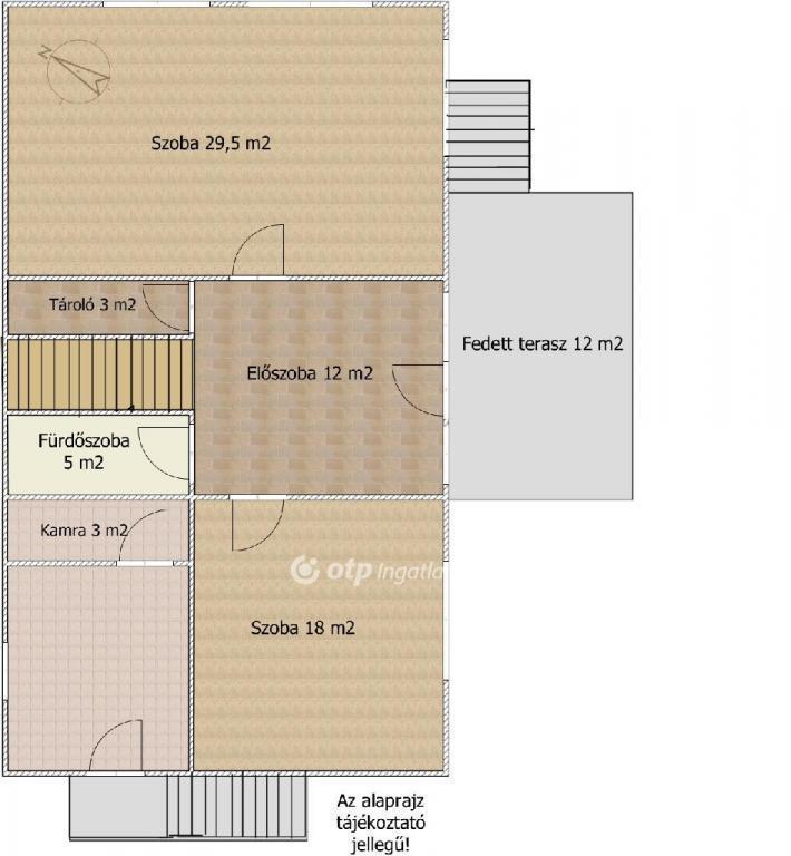
Figyelem!!! Kiskunlacházán 625.000,-Ft-s négyzetméter áron eladó egy családi ház.!!! Pest megyében, Kiskunlacháza centrumában eladó egy 1000m2-s telken lévő , 130 m2-s 3 szintes , 4 szobás, összkomfortos családi ház. Az ingatlan földszinti részén található 2 szoba, konyha, fürdőszoba, konyha, tároló és egy nagy előszoba. Innen jutunk ki a 12 m2-s fedett teraszra . Az emeleten kapott helyet kettő szoba valamint egy nagy előtér is. A pincében ( 84 m2 ) lett kiépítve a gépészet a gáz-cirkóval valamint a garázs rész is. Az ingatlan szerkezete nagyon jó állapotban van de belső terek kicsit retró kinézetűek. A szép nagy telken több gyümölcsfa és több külső tároló is található. Ezen a területen is több autó parkolására is van lehetőség. A környék infrastruktúrája kiváló! Minden ami fontos pár perc alatt elérhető bele értve a tömegközlekedést is. Az OTP Ingatlanpont teljes körű ügyintézéssel áll az eladók és a vevők rendelkezésére! A kínálatunkból választott ingatlan finanszírozásához kedvezményes hitel- konstrukciókat kínálunk. Az adásvételi szerződés megkötéséhez igény szerint megbízható ügyvédi közreműködést biztosítunk, és segítséget nyújtunk az adásvételhez kapcsolódó ügyek intézéséhez. Kérdés , mutatás esetén hívjon bizalommal! Ref. szám:M316673 Referencia szám: M316673

E-mail küldése a hirdetőnek

Hibás hirdetés bejelentése

Sikeres elküldtük a hiba bejelentést.

Hirdető adatai

Dsugán Béla
E-mail cím: dsugan.bela@otpip.hu
Telefonszám: +36204610818
OTPip
Hirdetés feladója: Ingatlaniroda
Ingatlaniroda: OTPip
E-mail cím: dunaharaszti@otpip.hu
Telefonszám: +36308507315

Képek



Térkép


Ajánlott ingatlanok

Családi ház

Eladó Ház, Budapest 18. ker.

Keresés azonosító alapján: HI-2411796
  • Budapest XVIII.
  • Alapterület: 165 m²
  • Telekterület: 346 m²
  • Ár: 145 000 000 Ft (375 648 €)
  • Feltöltés dátuma: 2025.05.02.
  •  
Családi ház

Eladó Ház, Sóskút

Keresés azonosító alapján: HI-2490010
  • Sóskút
  • Alapterület: 93 m²
  • Telekterület: 688 m²
  • Ár: 64 900 000 Ft (168 135 €)
  • Feltöltés dátuma: 2025.10.16.
  •  
Családi ház

Eladó Ház, Szigetszentmiklós

Keresés azonosító alapján: HI-2466951
  • Szigetszentmiklós
  • Alapterület: 82 m²
  • Telekterület: 797 m²
  • Ár: 79 900 000 Ft (206 995 €)
  • Feltöltés dátuma: 2025.08.28.
  •  
Családi ház

Eladó Ház, Kiskunlacháza

Keresés azonosító alapján: HI-2435039
  • Kiskunlacháza
  • Alapterület: 130 m²
  • Telekterület: 842 m²
  • Ár: 79 900 000 Ft (206 995 €)
  • Feltöltés dátuma: 2025.06.25.
  •  
Facebook
Blogger
Twitter
Tweets by hasznaltingatla
Flickr