Eladó Ház, Nyíregyháza

Ingatlan azonosító: HI-2492964

Szabolcs-Szatmár-Bereg megye - Nyíregyháza, Családi ház


99 500 000 Ft (257 106 €)

  • Hirdetés feladója: Ingatlaniroda
  • Pontos cím: Nyíregyháza
  • Típus: Eladó
  • Belső irodai azonosító: M313095-5067810
  • Alapterület: 300 m²
  • Telekterület: 1 000 m² ( 278 négyszögöl )
  • Építés éve: 1980
  • Egész szobák száma (12 m² felett): 6 db
  • Félszobák száma (6-12 m² között): 0 db
  • Ingatlan állapota: jó állapotú
  • Komfort: összkomfortos
  • Fűtés: gáz (cirko)
  • Pince: nincs
  • Akadálymentesített: nincs
  • Napelem van?: nincs
  • Légkondicionáló: van

Leírás

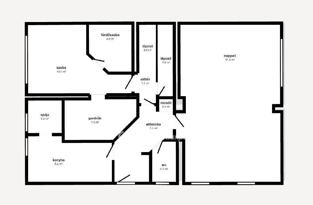
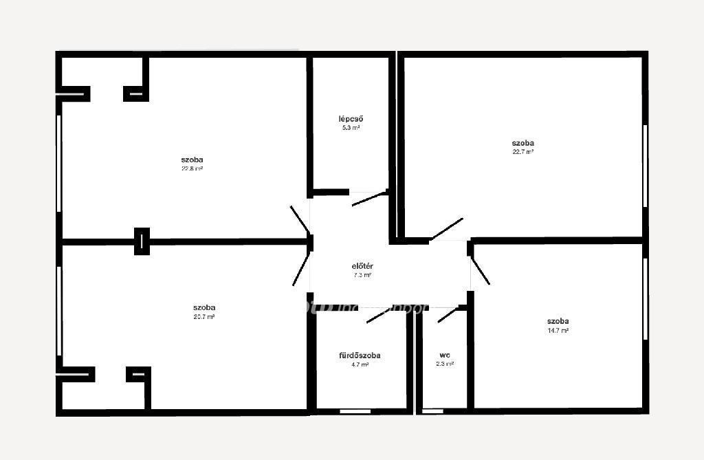
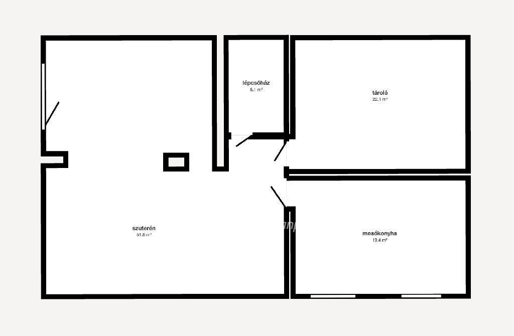
Eladó egy tágas, gyönyörű kétgenerációs családi ház Nyíregyháza kedvelt, környékén. A kiváló állapotú ingatlan egy hatalmas, 1000 négyzetméteres telken fekszik, és összesen hat szoba található benne. A ház hivatalos alapterülete 300 négyzetméter, amely tágas életteret biztosít. Az alsó szinten egy nagy nappali, egy másik szoba, valamint egy kádas, dupla mosdós fürdőszoba és egy különálló WC kapott helyet. A szobák laminált padlóval és parkettával burkoltak. A kényelmes lépcsőház vezet fel az emeletre , ahol szintén szobák és egy zuhanyzós fürdőszoba került kialakításra. Ingaltan pince szinttel is rendelkezik melyben van egy mosó szoba egy külön gardrób került kialakításra és nagy közösségi tér is van Az ingatlanhoz tartozik egy nagyméretű, négyállásos garázs is, mely tárolásra vagy vállalkozásra is kiváló. A ház azonnal költözhető állapotban van. OTP Banki hátterünknek köszönhetően finanszírozási igényekben (pl. Otthon Start Hitelprogram, Babaváró, Falusi CSOK, CSOK Plusz, Lakáshitel, Személyi kölcsön stb.), illetve biztosítások tekintetében is díjmentesen, soron kívüli ügyintézéssel segítem ügyfeleim! Referenciaszám:M313095

E-mail küldése a hirdetőnek

Hibás hirdetés bejelentése

Sikeres elküldtük a hiba bejelentést.

Hirdető adatai

Tóth Zoltán
E-mail cím: zoltan.toth2@otpip.hu
Telefonszám: +36203903546
OTPip
Hirdetés feladója: Ingatlaniroda
Ingatlaniroda: OTPip
E-mail cím: nyiregyhaza.hunyadi@otpip.hu
Telefonszám: +36303397954

Képek



Térkép


Ajánlott ingatlanok

Családi ház

Eladó Ház, Nyíregyháza

Keresés azonosító alapján: HI-2471103
  • Nyíregyháza Korányi Frigyes utca
  • Alapterület: 170 m²
  • Telekterület: 974 m²
  • Ár: 122 000 000 Ft (315 245 €)
  • Feltöltés dátuma: 2025.09.05.
  • klímás
Családi ház

Eladó Ház, Hajdúnánás

Keresés azonosító alapján: HI-2471091
  • Hajdúnánás
  • Alapterület: 140 m²
  • Telekterület: 461 m²
  • Ár: 69 500 000 Ft (179 587 €)
  • Feltöltés dátuma: 2025.09.05.
  •  
Családi ház

Eladó Ház, Hajdúböszörmény

Keresés azonosító alapján: HI-2417908
  • Hajdúböszörmény Jókai Mór utca
  • Alapterület: 100 m²
  • Telekterület: 970 m²
  • Ár: 44 000 000 Ft (113 695 €)
  • Feltöltés dátuma: 2025.05.14.
  •  
Családi ház

Eladó Ház, Tiszalök

Keresés azonosító alapján: HI-2484567
  • Tiszalök
  • Alapterület: 163 m²
  • Telekterület: 1 356 m²
  • Ár: 15 000 000 Ft (38 760 €)
  • Feltöltés dátuma: 2025.10.02.
  •  
Facebook
Blogger
Twitter
Tweets by hasznaltingatla
Flickr