Eladó Ház, Pusztaszabolcs

Ingatlan azonosító: HI-2534183

Fejér megye - Pusztaszabolcs, Családi ház


61 900 000 Ft (163 757 €)

  • Hirdetés feladója: Ingatlaniroda
  • Pontos cím: Pusztaszabolcs
  • Típus: Eladó
  • Belső irodai azonosító: M322019-5142161
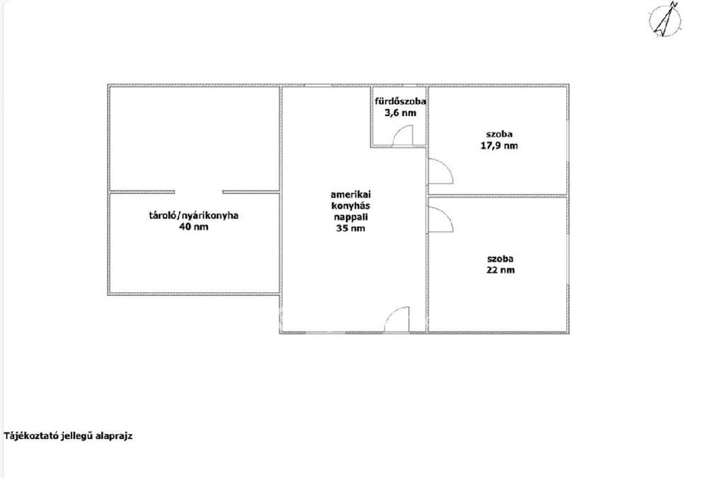
  • Alapterület: 113 m²
  • Telekterület: 550 m² ( 153 négyszögöl )
  • Építés éve: 1980
  • Egész szobák száma (12 m² felett): 3 db
  • Félszobák száma (6-12 m² között): 0 db
  • Ingatlan állapota: jó állapotú
  • Komfort: összkomfortos
  • Fűtés: gáz (cirko)
  • Pince: nincs
  • Akadálymentesített: nincs
  • Napelem van?: nincs
  • Légkondicionáló: van

Leírás

Fejér megye, Pusztaszabolcs 113 nm-es családi ház eladó. A felújított, tégla falazatú lakóingatlan a település központjához közel egy 550 nm-es telken helyezkedik el. A tehermentes családi házban amerikai konyhás nappali, két tágas hálószoba és fürdőszoba található, valamint az ingatlanhoz tartozik egy hozzáépített 40 nm-es tároló(fele beszámítva a hasznos alapterületbe), mely több szoba kialakítására alkalmas, alatta pedig egy 30 nm-es pince található. A belső felújítás során cserélték a víz-és villanyvezetékeket, az összes nyílászárót műanyagra, az összes burkolatot, teljes aljzatcsere és aljzatszigetelés, mennyezetszigetelés, új gépesített konyhabútor. A meghirdetett ár tartalmazza a külső szigetelést is. A fűtésről új kombi gázkazán és új hűtő fűtő klíma gondoskodik. Séta távolságra a vasútállomás, boltok, gyógyszertár, orvosi rendelő, óvoda, iskola, játszótér, polgármesteri hivatal. Teljes körű ügyintézésben segítjük ügyfeleinket díjtalanul: CSOK igénylése, kedvezményes hitel mobil bankári szolgáltatással, adásvétel teljes lebonyolításával. 61900000 Ft Érd.: Lepsényi Kornél +3670/8840188 Referencia szám: M322019

E-mail küldése a hirdetőnek

Hibás hirdetés bejelentése

Sikeres elküldtük a hiba bejelentést.

Hirdető adatai

Lepsényi Kornél
E-mail cím: lepsenyi.kornel@otpip.hu
Telefonszám: +36-70-884-0188
OTPip
Hirdetés feladója: Ingatlaniroda
Ingatlaniroda: OTPip
E-mail cím: velence@otpip.hu
Telefonszám: +36-70-457-6920

Képek



Térkép


Ajánlott ingatlanok

Családi ház

Eladó Ház, Sárszentmihály

Keresés azonosító alapján: HI-2529886
  • Sárszentmihály
  • Alapterület: 183 m²
  • Telekterület: 2 158 m²
  • Ár: 165 000 000 Ft (436 508 €)
  • Feltöltés dátuma: 2026.02.03.
  • klímás
Családi ház

Eladó Ház, Martonvásár.

Keresés azonosító alapján: HI-2529812
  • Martonvásár
  • Alapterület: 140 m²
  • Telekterület: 2 349 m²
  • Ár: 75 000 000 Ft (198 413 €)
  • Feltöltés dátuma: 2026.02.03.
  •  
Családi ház

Eladó Ház, Dunaújváros

Keresés azonosító alapján: HI-2529878
  • Dunaújváros
  • Alapterület: 140 m²
  • Telekterület: 353 m²
  • Ár: 88 900 000 Ft (235 185 €)
  • Feltöltés dátuma: 2026.02.03.
  •  
Családi ház

Eladó Ház, Sukoró

Keresés azonosító alapján: HI-2529966
  • Sukoró
  • Alapterület: 182 m²
  • Telekterület: 1 220 m²
  • Ár: 149 900 000 Ft (396 561 €)
  • Feltöltés dátuma: 2026.02.03.
  •  
Facebook
Blogger
Twitter
Tweets by hasznaltingatla
Flickr