Eladó Ház, Siófok

Ingatlan azonosító: HI-2433821

Somogy megye - Siófok, Családi ház


135 000 000 Ft (349 741 €)

  • Hirdetés feladója: Ingatlaniroda
  • Pontos cím: Siófok
  • Típus: Eladó
  • Belső irodai azonosító: M306387-4970667
  • Alapterület: 140 m²
  • Telekterület: 476 m² ( 132 négyszögöl )
  • Építés éve: 1970
  • Egész szobák száma (12 m² felett): 5 db
  • Félszobák száma (6-12 m² között): 0 db
  • Ingatlan állapota: új építésű
  • Komfort: komfortos
  • Fűtés: elektromos
  • Pince: nincs
  • Akadálymentesített: nincs
  • Napelem van?: nincs
  • Légkondicionáló: nincs

Leírás

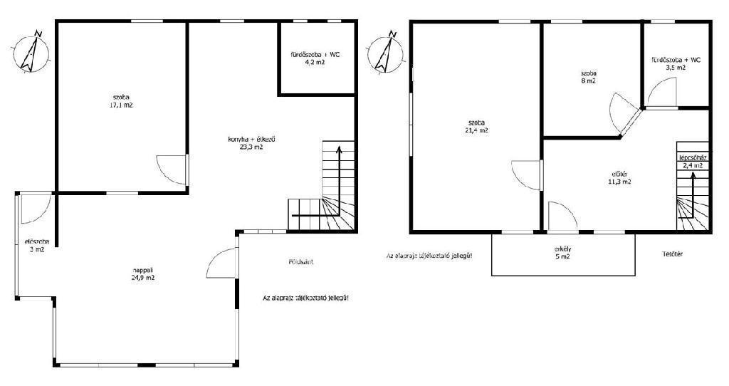
Siófok üdülőövezetében kiváló elhelyezkedésű 140 m2-es családi ház eladó. Az ingatlan osztatlan közös telken található, teljesen lekerítve, használati megosztással és kizárólagos 476 m2-es kerthasználattal. Az ingatlan eredetileg a 70-es években téglából épült, melyet 2021-ben tulajdonosa újragondolt, bővített, felújított, újjáépített és szépített. Így az ingatlan két külön bejáratú lakásból áll. Egy teljesen elkészült, lakható és jelenleg is lakott. A földszinti lakás 2 kényelmes hálószobával, amerikai konyhás nappalival, kamrával, külön vendég wc-vel és épített zuhanyzós fürdőszobával. Az emeleti lakás külső lépcsőn keresztül közelíthető meg, mely jelenleg az új tulajdonos befejezését várja, könnyűszerkezetes szerkezetkész állapotában, ami így még igény szerint bárhogyan formálható! Az eredeti tervezés szerint az emelet is 3 szobát, egy amerikai konyhás nappalit, fürdőt és külön wc-t kaphatna. Mindkét lakás külön mérőórával rendelkezik. A kert gyönyörűen füvesített, rendezett és karbantartott, nyári forró napokon természetes árnyékot adó fa alatt hűsölhetünk, amig a kiépített grillezőn sül a finomabbnál finomabb étel. Az ingatlan értékét elhelyezkedése tovább növeli, 300 m-en belül, mindösszesen 5 perc sétatávolságra bevásárlási lehetőség, gyógyszertár,szabadstrand, iskola. Kiváló választás családbővítés, összeköltözés, nyaralás vagy nyaraltatás szempontjából, minden korosztály megtalálhatja számításait! Az ingatlan egyben, és külön külön is megvásárolható lakásonként. Az alsó lakás M306390 referencia számon, a felső lakás M306389 referencia számon található meg. Irodánk az ingatlanközvetítés mellett pénzügyi finanszírozás és biztosítási igényekben is rendelkezésre áll. További információkért kérem keressen telefonon a hét minden napján! M306387 135000000 Ft Referencia szám: M306387

E-mail küldése a hirdetőnek

Hibás hirdetés bejelentése

Sikeres elküldtük a hiba bejelentést.

Hirdető adatai

Vincze László György
E-mail cím: vincze.laszlo.gyorgy@otpip.hu
Telefonszám: +36-20-938-4141
OTPip
Hirdetés feladója: Ingatlaniroda
Ingatlaniroda: OTPip
E-mail cím: pecs@otpip.hu
Telefonszám: +36-70-708-2428

Képek



Térkép


Ajánlott ingatlanok

Családi ház

Eladó Ház, Harkány

Keresés azonosító alapján: HI-2390340
  • Harkány
  • Alapterület: 180 m²
  • Telekterület: 2 500 m²
  • Ár: 119 000 000 Ft (308 290 €)
  • Feltöltés dátuma: 2025.03.18.
  •  
Családi ház

Eladó Ház, Liptód

Keresés azonosító alapján: HI-2416995
  • Liptód
  • Alapterület: 98 m²
  • Telekterület: 1 720 m²
  • Ár: 15 900 000 Ft (41 192 €)
  • Feltöltés dátuma: 2025.05.12.
  •  
Családi ház

Eladó Ház, Siófok

Keresés azonosító alapján: HI-2503913
  • Siófok
  • Alapterület: 117 m²
  • Telekterület: 583 m²
  • Ár: 147 000 000 Ft (380 829 €)
  • Feltöltés dátuma: 2025.11.21.
  •  
Családi ház

Eladó Ház, Balatonboglár

Keresés azonosító alapján: HI-2502812
  • Balatonboglár
  • Alapterület: 310 m²
  • Telekterület: 1 377 m²
  • Ár: 150 000 000 Ft (388 601 €)
  • Feltöltés dátuma: 2025.11.18.
  •  
Facebook
Blogger
Twitter
Tweets by hasznaltingatla
Flickr