Eladó Ház, Siófok

Ingatlan azonosító: HI-2470422

Somogy megye - Siófok, Ikerház


85 000 000 Ft (223 097 €)

  • Hirdetés feladója: Ingatlaniroda
  • Pontos cím: Siófok
  • Típus: Eladó
  • Belső irodai azonosító: M311603-5026941
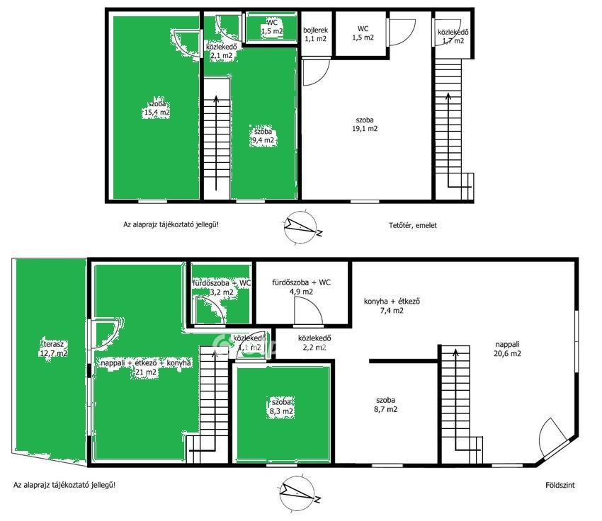
  • Alapterület: 68 m²
  • Telekterület: 375 m² ( 104 négyszögöl )
  • Építés éve: 1969
  • Egész szobák száma (12 m² felett): 3 db
  • Félszobák száma (6-12 m² között): 1 db
  • Ingatlan állapota: felújított
  • Komfort: komfortos
  • Fűtés: elektromos
  • Pince: nincs
  • Akadálymentesített: nincs
  • Napelem van?: nincs
  • Légkondicionáló: nincs

Leírás

Balaton Déli part, Siófok, 68 m2 ikerházrész eladó. A kivett hétvégi házként nyilvántartott, önálló helyrajzi számú ingatlanban két apartman került kialakításra. A 4 éve teljeskörűen felújított, 62 m2-es, utcafronti lakóteret növeli egy hangulatos, 13 m2-es terasz, a jól megtervezett udvaron pedig füves, virágos kert, 50 m2-es térkövezett terület, valamint garázs és egyéb melléképület is helyet kapott, így minden biztosított a mindennapi élet teendőihez vagy a pihentető, feltöltő nyaraláshoz. Az ingatlan fűtéséről és hűtéséről távolról irányítható klímák gondoskodnak, továbbá minden szobában megoldott az elektromos fűtőpanel működtetése, a telekre bevezetett gáz pedig a hagyományos fűtési rendszer kialakítását is lehetővé teszi. A két szintes apartmanok igény szerint összenyithatók, így akár egy nagy család részére is ideális lehetőség. Az ingatlan elhelyezkedésének és kialakításának köszönhetően alkalmas akár többgenerációs családoknak is állandó lakhatásra vagy nyaralásra, de befektetésként, részben vagy egészben kiadásra is kiváló, ritka lehetőség. Óvoda, iskola, tömegközlekedés, bevásárlási lehetőség, egészségügyi intézmény, a Belváros, a Kikötő könnyen elérhető, a Szabadstrand pedig csak pár perc séta. Bővebb információért keressen telefonon! Referencia szám: M311603

E-mail küldése a hirdetőnek

Hibás hirdetés bejelentése

Sikeres elküldtük a hiba bejelentést.

Hirdető adatai

Zsitnyányi Ágnes
E-mail cím: agnes.zsitnyanyi@otpip.hu
Telefonszám: +36-70-316-3864
OTPip
Hirdetés feladója: Ingatlaniroda
Ingatlaniroda: OTPip
E-mail cím: siofok.sio@otpip.hu
Telefonszám: +36703163864

Képek



Térkép


Ajánlott ingatlanok

Ikerház

Eladó Ház, Siófok

Keresés azonosító alapján: HI-2474201
  • Siófok
  • Alapterület: 148 m²
  • Telekterület: 300 m²
  • Ár: 145 900 000 Ft (382 940 €)
  • Feltöltés dátuma: 2025.09.15.
  •  
Ikerház

Eladó Ház, Siófok

Keresés azonosító alapján: HI-2525290
  • Siófok
  • Alapterület: 121 m²
  • Telekterület: 380 m²
  • Ár: 207 000 000 Ft (543 307 €)
  • Feltöltés dátuma: 2026.01.23.
  •  
Ikerház

Eladó Ház, Budapest 22. ker.

Keresés azonosító alapján: HI-2519616
  • Budapest XXII.
  • Alapterület: 360 m²
  • Telekterület: 893 m²
  • Ár: 265 000 000 Ft (695 538 €)
  • Feltöltés dátuma: 2026.01.09.
  •  
Ikerház

Eladó Ház, Siófok

Keresés azonosító alapján: HI-2470930
  • Siófok
  • Alapterület: 67 m²
  • Telekterület: 375 m²
  • Ár: 85 000 000 Ft (223 097 €)
  • Feltöltés dátuma: 2025.09.05.
  •  
Facebook
Blogger
Twitter
Tweets by hasznaltingatla
Flickr