Eladó Ház, Szentes

Ingatlan azonosító: HI-2528467

Csongrád megye - Szentes, Családi ház


30 900 000 Ft (86 798 €)

  • Hirdetés feladója: Ingatlaniroda
  • Pontos cím: Szentes
  • Típus: Eladó
  • Belső irodai azonosító: M320027-5137024
  • Alapterület: 123 m²
  • Telekterület: 701 m² ( 195 négyszögöl )
  • Építés éve: 1960
  • Egész szobák száma (12 m² felett): 4 db
  • Félszobák száma (6-12 m² között): 1 db
  • Ingatlan állapota: felújítandó
  • Komfort: komfort nélküli
  • Fűtés: gáz (cirko)
  • Pince: nincs
  • Akadálymentesített: nincs
  • Napelem van?: nincs
  • Légkondicionáló: nincs

Leírás

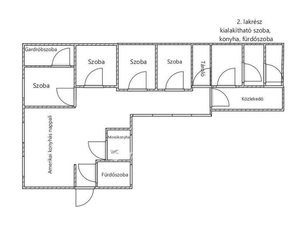
*** Csak az OTP Ingatlanpont kínálatában eladó Szentesen, közel a városközponthoz egy 701 nm-es telken elfekvő 150 nm-es, amerikai konyhás + 4 szobás családi ház, ahol a felújítási munkálatok egy része megtörtént, befejezése az új tulajdonosra vár. Milyen jó, hogy ÖN a saját ízlésére formálhatja! Hatalmas terek, kényelmes méretű helyiségek várják! Új, hőszigetelt műanyag nyílászárók vannak beépítve. A gázkazánnal történő fűtési rendszer kiépítése is megtörtént. A házhoz épített 25 nm-es külön bejáratú lakrészben egy szoba, konyha és fürdőszoba alakítható ki. FONTOS! Készültségi állapotát tekintve hitelfelvételre nem alkalmas, csak készpénzes vásárlóknak ajánljuk! Amennyiben mégis hitelt szeretne a vevő, úgy csakis extra ingatlanfedezet bevonásával oldható meg! Amennyiben az OTP Ingatlanpont kínálatából választ, számíthat szakmai támogatásunkra a teljes vételi folyamat során az adásvételi szerződés megkötésétől a hitel-ügyintézésen át az ingatlan átadásáig. Ajánlom minden kedves ügyfelem részére az OTP Bank által közvetített Babaváró, CSOK PLUSZ, Otthon Start Hitelprogram vagy egyéb kölcsönök intézését. Az OTP Ingatlanpont kedvezményes pénzügyi konstrukciókkal áll ügyfelei rendelkezésére, és VIP-szolgáltatást nyújt az OTP-hiteltermékek, ügyintézésben. Kedvező hitelajánlatokkal (BABAVÁRÓ hitel, piaci hitel, és szabadfelhasználású hitel) várjuk jelentkezését. Számos konstrukció közül választhatnak. Irodáink Szentes, Petőfi u. 12. a buszmegálló felől és Csongrád, Fő u. 54. szám alatt várja a személyes érdeklődőket. ***VÁLASSZUK KI EGYÜTT AZ ÖNNEK LEGMEGFELELŐBB AJÁNLATOT! BANKI SORBAN ÁLLÁS NÉLKÜL! *** Az energetikai tanúsítvány készítése folyamatban van, amint rendelkezésre áll, úgy azzal a hirdetés frissítésre kerül. Referencia szám: M320027-HI

E-mail küldése a hirdetőnek

Hibás hirdetés bejelentése

Sikeres elküldtük a hiba bejelentést.

Hirdető adatai

Vincze Zoltán
E-mail cím: Vincze.Zoltan@otpip.hu
Telefonszám: +36707081452
OTPip
Hirdetés feladója: Ingatlaniroda
Ingatlaniroda: OTPip
E-mail cím: csongrad@otpip.hu
Telefonszám: +36704550993

Képek



Térkép


Ajánlott ingatlanok

Családi ház

Eladó Ház, Orosháza

Keresés azonosító alapján: HI-2551306
  • Orosháza
  • Alapterület: 70 m²
  • Telekterület: 1 419 m²
  • Ár: 12 000 000 Ft (33 708 €)
  • Feltöltés dátuma: 2026.03.17.
  •  
Családi ház

Eladó Ház, Kiskunmajsa

Keresés azonosító alapján: HI-2545380
  • Kiskunmajsa
  • Alapterület: 87 m²
  • Telekterület: 630 m²
  • Ár: 27 900 000 Ft (78 371 €)
  • Feltöltés dátuma: 2026.03.03.
  •  
Családi ház

Eladó Ház, Szentes

Keresés azonosító alapján: HI-2484390
  • Szentes
  • Alapterület: 83 m²
  • Telekterület: 604 m²
  • Ár: 32 900 000 Ft (92 416 €)
  • Feltöltés dátuma: 2025.10.02.
  •  
Családi ház

Eladó Ház, Szentes

Keresés azonosító alapján: HI-2467539
  • Szentes
  • Alapterület: 85 m²
  • Telekterület: 769 m²
  • Ár: 60 000 000 Ft (168 539 €)
  • Feltöltés dátuma: 2025.08.30.
  •  
Facebook
Blogger
Twitter
Tweets by hasznaltingatla
Flickr