Eladó Ház, Szűr

Ingatlan azonosító: HI-2507732

Baranya megye - Szűr, Családi ház


12 000 000 Ft (33 058 €)

  • Hirdetés feladója: Ingatlaniroda
  • Pontos cím: Szűr
  • Típus: Eladó
  • Belső irodai azonosító: M317454-5097576
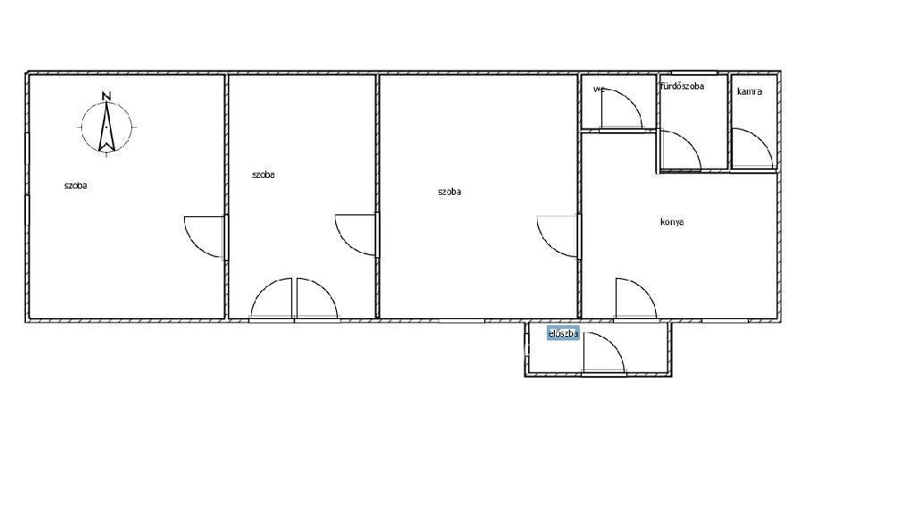
  • Alapterület: 68 m²
  • Telekterület: 353 m² ( 98 négyszögöl )
  • Építés éve: 1970
  • Egész szobák száma (12 m² felett): 3 db
  • Félszobák száma (6-12 m² között): 0 db
  • Ingatlan állapota: közepes állapotú
  • Komfort: komfortos
  • Fűtés: gáz (konvektor)
  • Pince: nincs
  • Akadálymentesített: nincs
  • Napelem van?: nincs
  • Légkondicionáló: nincs

Leírás

Eladó családi ház Szűrön! Baranya megye egyik bájos, dombos falujában, Szűrön kínálok eladásra egy 68 nm-es, háromszobás családi házat, amely 353 nm-es telken fekszik. Ez az ingatlan remek lehetőség mindazoknak, akik a nyugodt vidéki életre vágynak, de nem szeretnének lemondani a jó infrastruktúráról sem. Főbb jellemzők. Vegyes falazatú, cserépfedésű, gázkonvektor és kályha fűtéssel rendelkezik. Elrendezése, három tágas egymásból nyíló szoba, konyha, fürdőszoba és külön wc. A telekhez garázs és külön tároló is tartozik. Az új műanyag ablakok már meg vannak vásárolva, ami benne van a vételárban. Igy a felújítás költsége ezzel csökken. A 353 nm-es telek elegendő helyet biztosít kertnek, pihenő saroknak, játszótérnek, akárcsak hobbiudvarnak. Környezet és infrastruktúrája, Szűr Baranya megyében, a Geresdi-dombság lankáin fekszik, gyönyörű vidéki környezetben. Az M60-as autópálya könnyen elérhető Véméndnél vagy Mohácsnál, így Pécs és más nagyvárosok is jól megközelíthetők. A faluban buszközlekedés rendszeresen működik. Szűr könnyen elérhető Mohácsról és Pécsváradról is. Szűr községében működik falugondnoki rendszer, amely segíti a helyi közösséget. Iskola és óvoda Himesházán található, gyerekjárattal szervezetten. Elérhető minden közmű a csatornázás is megoldott, és van szélessávú internet, így a modern igények sem maradnak kielégítetlenek. Az ingatlan ideális választás lehet családoknak, idősebbeknek vagy azoknak, akik vidéki, kényelmes életre vágynak. A telek viszonylag visszafogott mérete miatt a gondozása nem jelent jelentős terhet. . A ház falusi CSOK-ra alkalmas. További kérdéseivel és személyes megtekintésért keressen bizalommal! M317454 12000000 Ft Referencia szám: M317454

E-mail küldése a hirdetőnek

Hibás hirdetés bejelentése

Sikeres elküldtük a hiba bejelentést.

Hirdető adatai

Vincze László György
E-mail cím: vincze.laszlo.gyorgy@otpip.hu
Telefonszám: +36209384141
OTPip
Hirdetés feladója: Ingatlaniroda
Ingatlaniroda: OTPip
E-mail cím: pecs@otpip.hu
Telefonszám: +36-70-708-2428

Képek



Térkép


Ajánlott ingatlanok

Családi ház

Eladó Ház, Balatonboglár

Keresés azonosító alapján: HI-2528382
  • Balatonboglár
  • Alapterület: 400 m²
  • Telekterület: 2 015 m²
  • Ár: 399 000 000 Ft (1 099 174 €)
  • Feltöltés dátuma: 2026.02.01.
  •  
Családi ház

Eladó Ház, Pécs

Keresés azonosító alapján: HI-2465849
  • Pécs
  • Alapterület: 29 m²
  • Telekterület: 200 m²
  • Ár: 25 000 000 Ft (68 871 €)
  • Feltöltés dátuma: 2025.08.26.
  • klímás
Családi ház

Eladó Ház, Balatonberény

Keresés azonosító alapján: HI-2488642
  • Balatonberény
  • Alapterület: 400 m²
  • Telekterület: 920 m²
  • Ár: 279 000 000 Ft (768 595 €)
  • Feltöltés dátuma: 2025.10.11.
  •  
Családi ház

Eladó Ház, Pécs

Keresés azonosító alapján: HI-2436686
  • Pécs
  • Alapterület: 143 m²
  • Telekterület: 1 304 m²
  • Ár: 84 900 000 Ft (233 884 €)
  • Feltöltés dátuma: 2025.06.30.
  •  
Facebook
Blogger
Twitter
Tweets by hasznaltingatla
Flickr