Eladó Ház, Tiszakóród

Ingatlan azonosító: HI-2556076

Szabolcs-Szatmár-Bereg megye - Tiszakóród, Családi ház


26 700 000 Ft (69 713 €)

  • Hirdetés feladója: Ingatlaniroda
  • Pontos cím: Tiszakóród
  • Típus: Eladó
  • Belső irodai azonosító: M324179-5187738
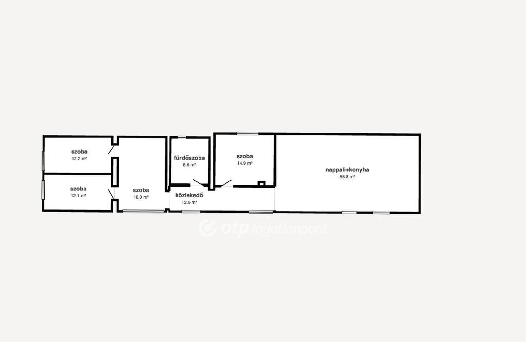
  • Alapterület: 185 m²
  • Telekterület: 1 981 m² ( 551 négyszögöl )
  • Építés éve: 1990
  • Egész szobák száma (12 m² felett): 5 db
  • Félszobák száma (6-12 m² között): 0 db
  • Ingatlan állapota: felújított
  • Komfort: duplakomfortos
  • Fűtés: gáz (cirko)
  • Pince: nincs
  • Akadálymentesített: nincs
  • Napelem van?: nincs
  • Légkondicionáló: nincs

Leírás

OTTHON, AHOL A JELEN BIZTONSÁGA ÉS A JÖVŐ ÉRTÉKE TALÁLKOZIK TISZAKÓRÓD LEGJOBB UTCÁJÁBAN ELADÁSRA kínáljuk TISZAKÓRÓD KEDVELT utcájában , a város zajától megbújó közel 190 nm-es, ötszobás, szeretettel és igényességgel teljes körűen felújított családi ház, amely közel 2000 nm-es, gondosan ápolt telken kínál nyugalmat és teret az élethez. A kapun keresztül kényelmesen jutunk be a rendezett, barátságos udvarra, míg a külön kialakított kisajtó biztonságos bejárást biztosít a család és a vendégek számára egyaránt. Már az érkezéskor magával ragad az a harmónia és gondosság, amely az egész ingatlant áthatja. Az udvar nem csupán egy külső tér , valódi élettér. A kora tavasztól késő őszig használható a grillsütő és a körülötte kialakított meghitt atmoszféra pedig tökéletes helyszínt biztosít családi és baráti összejövetelekhez. Itt a hosszú nyári esték, a beszélgetések és a közös élmények valódi emlékekké válnak. Az udvaron található garázs szekcionált garázskapuval gondoskodik a kényelmes és praktikus parkolásról. Az ablakok redőnnyel felszereltek, így a biztonság és az intimitás minden napszakban adott. A ház már kívülről is ígéretet hordoz. A külső és belső nyílászárók gondos kiválasztása harmóniát teremt fény és tér között, miközben időtálló eleganciával ölelik körbe az otthont. Belépve egy meleg, modern belső világ fogad, ahol az átgondolt, igényes elrendezés és a letisztult részletek csendben mesélnek a minőségről. Az otthon lelke a csodálatos, 55 nm-es nappali: egy tér, ahol a reggelek lassan indulnak, az esték összebújással telnek, és ahol a család mindennapjai természetesen válnak kényelmessé és bensőségessé. Az öt szoba csendes menedéket kínál az elvonulásra helyet az álmodozásnak, a pihenésnek, a gyereknevetésnek vagy egy nyugodt munkasarkon eltöltött délutánnak. A tágas, igényesen kialakított 2 fürdőszoba a mindennapok kis luxusa, amely egy nagyobb család számára is nyugalmat és kényelmet ad. Az ingatlanban található beépített konyhabútor a vételár részét képezi, így az otthon nemcsak esztétikus és jól átgondolt, hanem azonnal költözhető is. Az otthon melegéről egy kondenzációs gázkazán , gyönyörű cserépkályha és a meghitt percekben egy kandalló gondoskodik . A nyári melegben a család komfortérzetéről klíma gondoskodik, hogy a legforróbb napokon is hűs, kellemes otthoni környezet várja Önöket. A szobákat laminált padló, míg a többi helyiségeket padlócsempe borítja.A hatalmas beépített terasz a hosszú beszélgetések, naplementék és csendes pillanatok tökéletes színtere. A gyönyörűen gondozott udvar és kert zöld ölelésében minden nap egy kicsit lassabban telik ,itt van idő megállni, fellélegezni, együtt lenni. A melléképületben kialakított garázs gondoskodik arról, hogy az autó is biztonságban, védelem alatt pihenjen , itt minden értéknek megvan a maga helye. Ez nem csupán egy ház. Ez egy hely, ahol emlékek születnek. És az ilyen igényes otthonokra ritkán kell sokáig várni , hamar gazdára találnak. Ez az ingatlan nem csupán egy ház. Ez egy életstílus, ahol az elegancia, a nyugalom és az értékteremtés találkozik. Amikor erről az utcáról belépünk, az első pillanatban érezzük: megérkeztünk. Ez a ház több mint egy ingatlan,egy hely, ahol a család minden tagja megtalálja a saját terét, ahol a mindennapok nyugalomban telnek, és ahol igazán jó hazatérni. Ha olyan otthont keres, amely egyszerre kínál kényelmet, biztonságot és élményeket, akkor itt megtalálta. Várom megtisztelő megkeresését. Kinek ajánlom? AZOKNAK, AKIK nem elégszenek meg az átlagossal, otthont és befektetést egyszerre keresnek, értéket szeretnének teremteni, nem csak birtokolni. Ez az ingatlan azoknak szól, akik nem kötnek kompromisszumot, és tudják: egy ilyen igényes, teljesen felújított otthonra nagyon hamar lecsapnak. Ne maradjon le róla ! Itt nem csak házat vásárol, hanem életminőséget. Az udvar és a kert egy pihenésre kialakított kis oázis: zölddel körülölelt, csendes tér, ahol megáll az idő, ahol feltöltődhet, elengedheti a rohanást, és egyszerűen csak jól érezheti magát. Miért érdemes éppen Tiszakóród települést választani otthonául? Vannak helyek, ahol az ember nemcsak lakik, hanem igazán él. Ilyen hely Tiszakóród is. Egy csendes, békés település, ahol a természet közelsége és az emberek barátságossága mindennap érezhető. A madárcsicsergéses reggelek és a tiszta levegő olyan életérzést adnak, amelyet a rohanó városi világban egyre kevesebben tapasztalhatnak meg. Itt a gyermekek még biztonságos környezetben nőhetnek fel, az emberek ismerik és segítik egymást, és a mindennapokban is ott van az a nyugodt falusi hangulat, amely sokak számára az igazi otthont jelenti. Miközben a természet és a csend öleli körül a települést, a közeli Fehérgyarmat könnyen elérhető, így a városi lehetőségek sincsenek messze. Ha olyan helyet keres, ahol nemcsak házat, hanem igazi otthont találhat családja számára, akkor Tiszakóród talán éppen Önre vár. Találja meg benne a saját nyugalmát, az új otthonát. Engedje, hogy ez a ház az Ön történetének része legyen. Amennyiben hitelre van szüksége, ingyenes előbírálatot készítek, soron kívül, rugalmas időbeosztással, az Ön időbeosztásához igazodva! Ne hagyja ki ezt a remek lehetőséget keressen bizalommal további információért vagy időpont egyeztetésért! OTP Banki hátterünknek köszönhetően finanszírozási igényekben (pl. Otthon Start Hitelprogram, Babaváró, Lakáshitel, Személyi kölcsön stb.), díjmentesen, soron kívüli ügyintézéssel segítem ügyfeleim! https://my.matterport.com/show/?m=hweufhhnu2zgrm21zseswwrya&views=0&mls=1 Referenciaszám: M324179

E-mail küldése a hirdetőnek

Hibás hirdetés bejelentése

Sikeres elküldtük a hiba bejelentést.

Hirdető adatai

Balázscsikné Hanzel Renáta
E-mail cím: renata.balazscsikne.hanzel@otpip.hu
Telefonszám: +36301673181
OTPip
Hirdetés feladója: Ingatlaniroda
Ingatlaniroda: OTPip
E-mail cím: nyiregyhaza.bocskai@otpip.hu
Telefonszám: +36706060062

Képek



Térkép


Ajánlott ingatlanok

Családi ház

Eladó Ház, Hajdúhadház

Keresés azonosító alapján: HI-2534901
  • Hajdúhadház
  • Alapterület: 187 m²
  • Telekterület: 874 m²
  • Ár: 36 000 000 Ft (93 995 €)
  • Feltöltés dátuma: 2026.02.11.
  •  
Családi ház

Eladó Ház, Nyíregyháza

Keresés azonosító alapján: HI-2548286
  • Nyíregyháza
  • Alapterület: 124 m²
  • Telekterület: 728 m²
  • Ár: 108 000 000 Ft (281 984 €)
  • Feltöltés dátuma: 2026.03.10.
  •  
Családi ház

Eladó Ház, Rakamaz

Keresés azonosító alapján: HI-2512890
  • Rakamaz
  • Alapterület: 100 m²
  • Telekterület: 1 636 m²
  • Ár: 35 000 000 Ft (91 384 €)
  • Feltöltés dátuma: 2025.12.16.
  • klímás
Családi ház

Eladó Ház, Szabolcsbáka

Keresés azonosító alapján: HI-2514905
  • Szabolcsbáka
  • Alapterület: 100 m²
  • Telekterület: 1 895 m²
  • Ár: 22 900 000 Ft (59 791 €)
  • Feltöltés dátuma: 2025.12.27.
  •  
Facebook
Blogger
Twitter
Tweets by hasznaltingatla
Flickr