Eladó ipari csarnok kiváló adottságokkal!

Ingatlan azonosító: HI-2455930

Bács-Kiskun megye - Harta, Műhely


120 000 000 Ft (311 688 €)

  • Hirdetés feladója: Ingatlaniroda
  • Pontos cím: Harta
  • Típus: Eladó
  • Belső irodai azonosító: 3619245-4934240
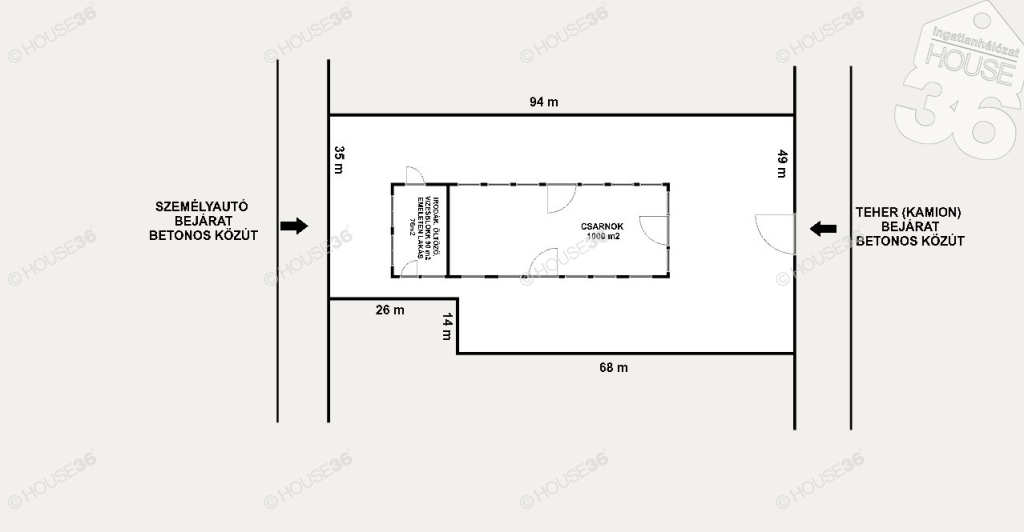
  • Alapterület: 940 m²
  • Fűtés: egyéb
  • Napelem van?: nincs

Leírás

Eladó ipari csarnok a Duna kanyarulatában kiváló adottságokkal. Megvételre kínálunk egy 1000 m2 -es ipari csarnokot amely 4388 m2 -es telken helyezkedik el. Az ingatlan kiváló lehetőségeket biztosít ipari, gyártó, és logisztikai tevékenységekre, hiszen utánfutók, hajóalkatrészek gyártására használták. Ez az ingatlan tökéletes választás vállalkozások számára ,akik egy jól megközelíthető, nagy területtel rendelkező, azonnal használható ipari csarnokot keresnek. A csarnok főbb jellemzői: - három ipari kapu a könnyű be és kirakodásért - iroda, öltöző, tusoló és étkező tér a dolgozók kényelméért - tetőtéri rész ( 76 m2) amely lakás vagy további iroda kialakítására alkalmas, dunaparti panorámával - erős ipari infrastruktúra : 3 x 100 Amper áram, saját trafó - masszív szerkezet, zsalukő betonnal kiöntve,5 cm szigetelés - trapézlemez tető - ventillátoros légbefúvós kályha Ne hagyja ki ezt a remek lehetőséget! Hívjon most, és tekintse meg személyesen! Az iroda legfrissebb, aktuális kínálatát a HOUSE36 saját weboldalán találja!

E-mail küldése a hirdetőnek

Hibás hirdetés bejelentése

Sikeres elküldtük a hiba bejelentést.

Hirdető adatai

Kecskés Imola
E-mail cím: imola.kecskes@h36.hu
Telefonszám: +36704099549
Hirdetés feladója: Ingatlaniroda

Képek



Térkép


Ajánlott ingatlanok

Műhely
  • Szentkirály
  • Alapterület: 120 m²
  • Ár: 190 000 000 Ft (493 506 €)
  • Feltöltés dátuma: 2025.08.23.
  •  
Családi ház

Szuper panorámás hétvégi ház Leányfalun eladó!

Keresés azonosító alapján: HI-2486226
  • Leányfalu
  • Alapterület: 46 m²
  • Telekterület: 521 m²
  • Ár: 45 000 000 Ft (116 883 €)
  • Feltöltés dátuma: 2025.10.04.
  •  
Családi ház
  • Kiskunfélegyháza
  • Alapterület: 120 m²
  • Telekterület: 536 m²
  • Ár: 44 500 000 Ft (115 584 €)
  • Feltöltés dátuma: 2025.08.02.
  •  
Üdülőövezeti

Szentendrén, Pismány-hegyen örökpanorámás telek Eladó!

Keresés azonosító alapján: HI-2509265
  • Szentendre Pálma utca
  • Telekterület: 902 m²
  • Ár: 68 000 000 Ft (176 623 €)
  • Feltöltés dátuma: 2025.12.03.
  •  
Facebook
Blogger
Twitter
Tweets by hasznaltingatla
Flickr