Eladó Ipari terület, Tóalmás

Ingatlan azonosító: HI-2541468

Pest megye - Tóalmás, Fejlesztési terület


33 900 000 Ft (88 512 €)

  • Hirdetés feladója: Ingatlaniroda
  • Pontos cím: Tóalmás
  • Típus: Eladó
  • Belső irodai azonosító: M321698-5157793
  • Telekterület: 2 638 m² ( 733 négyszögöl )
  • Építés éve: 1970

Leírás

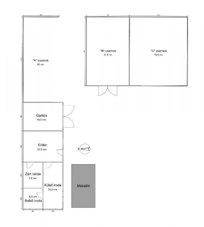
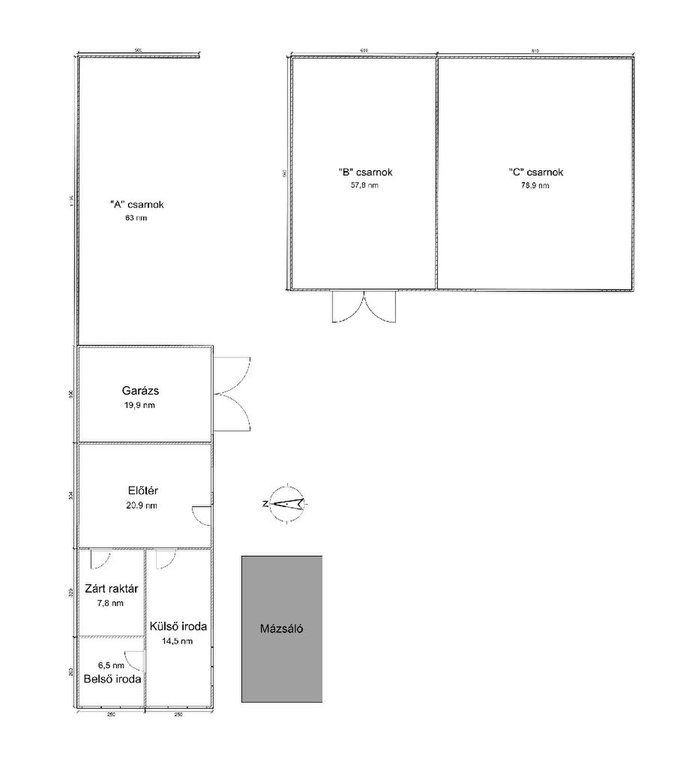
IPARI TELEPHELY ELADÓ TÓALMÁSON - AZONNAL HASZNOSÍTHATÓ, TOVÁBBFEJLESZTHETŐ INGATLAN Tóalmás külterületén, jó megközelíthetőség mellett kínálok megvételre egy 2638 m2 alapterületű Gksz-1 besorolású ipari telket, rajta összesen 290,2 m2 felépítménnyel. Az ingatlan kialakítása és meglévő infrastruktúrája lehetővé teszi az azonnali ipari, kereskedelmi vagy logisztikai célú használatot, illetve további fejlesztést. Meglévő felépítmények és műszaki adottságok: -kb. 50 m2 iroda- és raktárépület (vályog szerkezet, jó állapot, kályhafűtés) -20 m2 zárt garázs -három csarnokszerű tároló/raktárépület: 63 m2 / 57,8 m2 / 78,9 m2 -működő mázsáló és rakodórámpa -2 db üzemanyagtartály az utcafronti részen Az ingatlan jelenleg TÜZÉP telepként üzemel, jogi megnevezése: kivett TÜZÉP telep, ugyanakkor kialakítása alapján bármilyen telephelynek, vagy más ipari funkcióra alkalmas. Övezeti besorolás: Gksz-1 - kereskedelmi, szolgáltató gazdasági terület Az ingatlan bővíthető, átalakítható, többféle gazdasági tevékenységhez illeszthető. Infrastruktúra: - Víz és 3 fázisú villamos energia bekötve - Gáz és csatorna a telekhatáron - A hasznosított terület körbekerített - Az épületek zárhatók, rendezett állapotúak Elhelyezkedés, elérhetőség: -Gödöllő, Sülysáp, Hatvan, Jászfényszaru és Jászberény rövid időn belül elérhető -A telephely logisztikai szempontból kedvező elhelyezkedésű a közép-magyarországi régióban -Főútvonal mellett fekszik Hasznosítási lehetőségek: -raktárbázis vagy elosztópont -kisebb ipari vagy szerelőüzem -kereskedelmi telephely -logisztikai funkció -TÜZÉP vagy építőanyag-kereskedelem -üzemanyag-ellátással kombinált ipari tevékenység Rugalmasan megtekinthető, minden komoly érdeklődőt várok. Az adásvétel során az OTP Csoport szolgáltatásaival veszem le a terhet Önről, legyen szó akár finanszírozásról, akár szakértő jogi tanácsadásról. Hívjon most!

E-mail küldése a hirdetőnek

Hibás hirdetés bejelentése

Sikeres elküldtük a hiba bejelentést.

Hirdető adatai

Hohol Róbert
E-mail cím: robert.hohol@otpip.hu
Telefonszám: +36-70-572-0299
OTPip
Hirdetés feladója: Ingatlaniroda
Ingatlaniroda: OTPip
E-mail cím: jaszbereny.gyongyosiut@otpip.hu
Telefonszám: +36-30-559-8164

Képek



Térkép


Ajánlott ingatlanok

Családi ház

Eladó Ház, Jászfényszaru

Keresés azonosító alapján: HI-2508641
  • Jászfényszaru
  • Alapterület: 120 m²
  • Telekterület: 280 m²
  • Ár: 49 500 000 Ft (129 243 €)
  • Feltöltés dátuma: 2025.12.02.
  •  
Házrész

Eladó Ház, Budapest 22. ker.

Keresés azonosító alapján: HI-2510683
  • Budapest XXII.
  • Alapterület: 56 m²
  • Telekterület: 440 m²
  • Ár: 64 900 000 Ft (169 452 €)
  • Feltöltés dátuma: 2025.12.08.
  •  
Új építésű lakás

Eladó Lakás, Budapest 13. ker.

Keresés azonosító alapján: HI-2554030
  • Budapest XIII.
  • Alapterület: 77 m²
  • Ár: 114 063 000 Ft (297 815 €)
  • Feltöltés dátuma: 2026.03.24.
  •  
Új építésű lakás

Eladó Lakás, Budapest 13. ker.

Keresés azonosító alapján: HI-2514571
  • Budapest XIII.
  • Alapterület: 62 m²
  • Ár: 92 490 000 Ft (241 488 €)
  • Feltöltés dátuma: 2025.12.23.
  •  
Facebook
Blogger
Twitter
Tweets by hasznaltingatla
Flickr