Eladó iroda Budapest 20. ker., Pesterzsébet városközpont

Ingatlan azonosító: HI-2540895

Budapest - Budapest XX., Irodaházban A, A+ kat.


369 000 000 Ft (1 008 197 €)

  • Hirdetés feladója: Ingatlaniroda
  • Pontos cím: Budapest XX.
  • Típus: Eladó
  • Belső irodai azonosító: BI000577-5156776
  • Alapterület: 1 230 m²
  • Építés éve: 1975
  • Félszobák száma (6-12 m² között): 0 db
  • Emelet: 3. emelet
  • Lift: nincs
  • Akadálymentesített: nincs
  • Energiatanúsítvány: D
  • Napelem van?: nincs
  • Légkondicionáló: nincs

Leírás

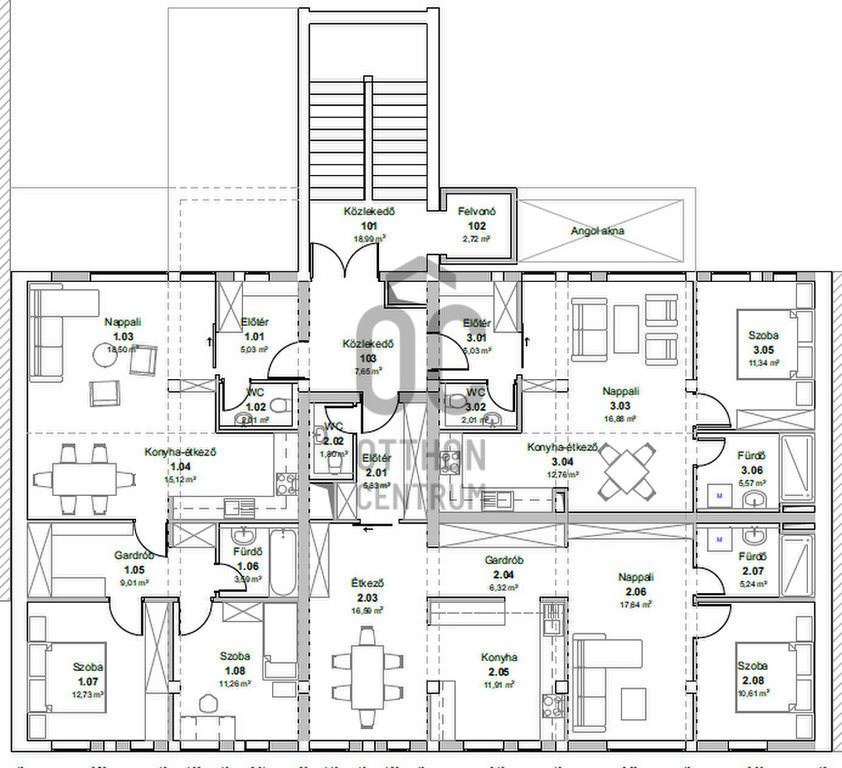
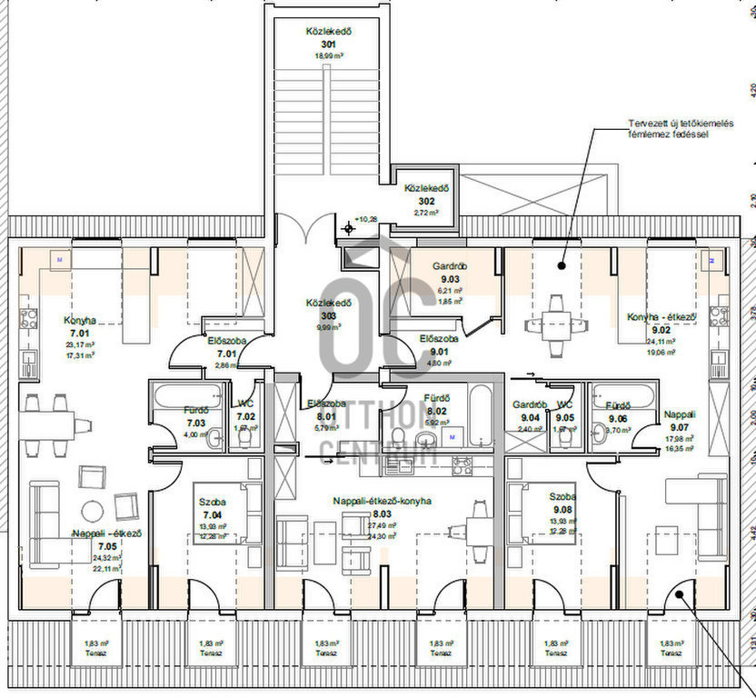
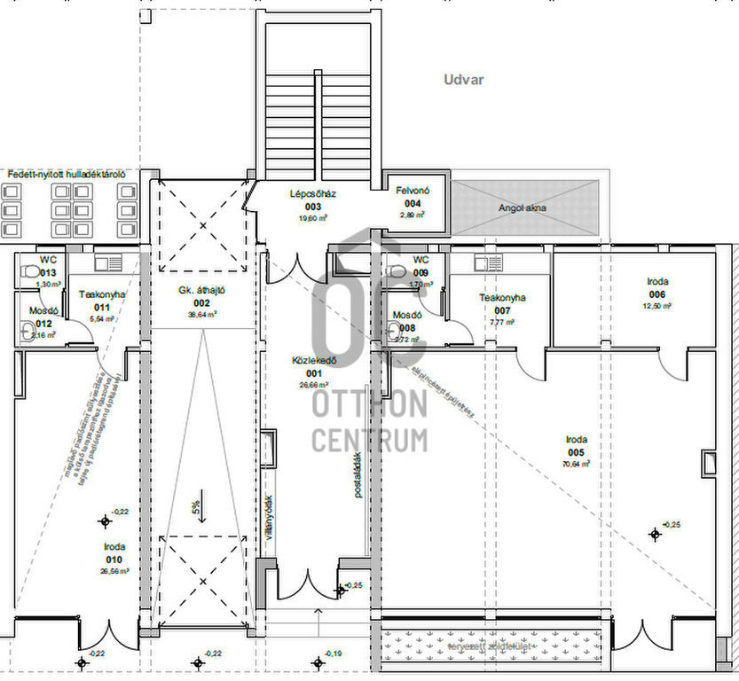
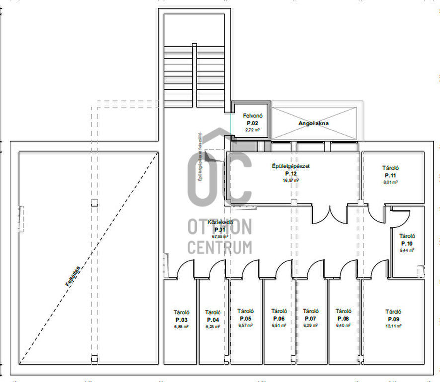
XX. kerület központjában, forgalmas utcáról nyíló, Önálló Épület Eladó. Telek mérete: 1179nm Épület: pince szint, földszint + 2 emelet + tetőtér Pince hasznos mérete: 152nm Földszint hasznos mérete: 218nm I. és II. emelet hasznos mérete: 235nm Tetőtér hasznos mérete: 187nm Lépcsőház mérete ezekben nincs benne Hátsó melléképület mérete: 198nm Hasznosítható: 10 lakásos Társasház kocsi beállókkal, Intézmény épület, Szálloda, Iroda, Oktatási Intézmény, Iskola, Óvoda Hasznosítási javaslat: Társasház, garázzsal, tárolókkal - Építési osztály 9-11 lakásra ad engedélyt Műszaki jellemzők: száraz masszív pince, megerősített alapozás, tégla falak: épület váza rendben van, tégláig kell csak visszabontani Ipari árammal is el van látva Tulajdoni lap szerinti besorolás: Kivett Tanműhely, Udvar Cég a tulajdonos, az ár nettó ár, fordított áfás Villany, víz, gáz, csatorna kiépítve Építési övezet: Vt-H/Ln3 Üres, már nem működik benne semmi, felújítandó az állapot Lokáció tökéletes, közelben Iskola, Óvoda, Bevásárlási lehetőségek, tömegközlekedés szempontjából is ideális, számtalan busz és villamos megálló van a közelben, megközelíthető bármelyik kerület

E-mail küldése a hirdetőnek

Hibás hirdetés bejelentése

Sikeres elküldtük a hiba bejelentést.

Hirdető adatai

Váradi Márton
E-mail cím: varadi.marton@oc.hu
Telefonszám: +36 70 465 7036
Otthon Centrum
Hirdetés feladója: Ingatlaniroda
Ingatlaniroda: Otthon Centrum
E-mail cím: 20.kerulet@oc.hu
Telefonszám: +36 1 283 4535

Képek



Térkép


Ajánlott ingatlanok

Családi ház

Eladó ház Budapest 20. ker., Pesterzsébet

Keresés azonosító alapján: HI-2529017
  • Budapest XX.
  • Alapterület: 59 m²
  • Telekterület: 230 m²
  • Ár: 65 000 000 Ft (177 596 €)
  • Feltöltés dátuma: 2026.02.02.
  •  
Ikerház

Eladó ház Budapest 21. ker., Királyerdő

Keresés azonosító alapján: HI-2528993
  • Budapest XXI.
  • Alapterület: 68 m²
  • Telekterület: 580 m²
  • Ár: 77 900 000 Ft (212 842 €)
  • Feltöltés dátuma: 2026.02.02.
  •  
Tégla lakás

Eladó lakás Budapest 5. ker., Belváros

Keresés azonosító alapján: HI-2561960
  • Budapest V.
  • Alapterület: 40 m²
  • Ár: 89 000 000 Ft (243 169 €)
  • Feltöltés dátuma: 2026.04.16.
  •  
Ikerház

Eladó ház Budapest 20. ker., Pacsirtatelep

Keresés azonosító alapján: HI-2560158
  • Budapest XX.
  • Alapterület: 170 m²
  • Telekterület: 318 m²
  • Ár: 119 000 000 Ft (325 137 €)
  • Feltöltés dátuma: 2026.04.11.
  •  
Facebook
Blogger
Twitter
Tweets by hasznaltingatla
Flickr