Eladó lakás, Bicske

Ingatlan azonosító: HI-2513058

Fejér megye - Bicske, Új építésű lakás


99 900 000 Ft (255 499 €)

  • Hirdetés feladója: Ingatlaniroda
  • Pontos cím: Bicske
  • Típus: Eladó
  • Belső irodai azonosító: LK030208-5108566
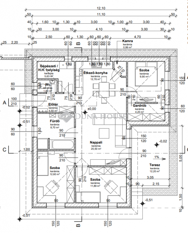
  • Alapterület: 92 m²
  • Építés éve: 2026
  • Egész szobák száma (12 m² felett): 3 db
  • Félszobák száma (6-12 m² között): 0 db
  • Fürdőszobák száma: 1 db
  • Emelet: földszint
  • Ingatlan állapota: új építésű
  • Komfort: összkomfortos
  • Fűtés: egyéb
  • Lift: nincs
  • Akadálymentesített: nincs
  • Energiatanúsítvány: A+
  • Napelem van?: nincs
  • Erkély: van
  • Légkondicionáló: nincs
  • Tájolás: dél-kelet
  • A lakás falazata: Tégla

Leírás

Eladó egy gyönyörű, A+ energetikai besorolású családi otthon Bicske kertvárosi részén, közel a boltokhoz. Ez a napfényes ingatlan egy 500 m²-es telken helyezkedik el, és egy modern, Ytong téglából épült, padlófűtéssel, 10 cm-es szigeteléssel, háromrétegű nyílászárókkal felszerelt házat kínál leendő tulajdonosának. A ház hőszivattyús fűtési rendszerrel van ellátva, amely egész évben biztosítja az optimális hőmérsékletet és jelentős mértékben csökkenti a rezsiköltségeket. Ez az ingatlan tökéletes választás azok számára, akik egy csendes, zöldövezeti környezetben szeretnének élni, de mégis fontos számukra, hogy könnyen és gyorsan elérhető legyenek a helyi szolgáltatások. Ne hagyja ki ezt a kiváló lehetőséget, hívjon most, hogy megbeszélhessünk egy megtekintési időpontot és saját szemével is meggyőződhessen erről a különleges ingatlanról! A kényelmet tovább növeli egy praktikus, két autó számára kialakított garázs, valamint egy tágas, 13 m²-es terasz, ahol a család és a barátok kellemes órákat tölthetnek együtt a szabadban. A kivételes minőségű építőanyagok és a modern műszaki megoldások biztosítják az új tulajdonos számára nem csupán egy csodálatos otthont, de egy rendkívül energiahatékony és fenntartható lakóteret is.

E-mail küldése a hirdetőnek

Hibás hirdetés bejelentése

Sikeres elküldtük a hiba bejelentést.

Hirdető adatai


Schmetz József
E-mail cím: schmetz.jozsef@dh.hu
Telefonszám: +36703116455
Duna House
Hirdetés feladója: Ingatlaniroda
Ingatlaniroda: Duna House
E-mail cím: halasztelek@dh.hu
Telefonszám: +3624790134

Képek



Térkép


Ajánlott ingatlanok

Új építésű lakás

Eladó lakás, Bicske

Keresés azonosító alapján: HI-2513061
  • Bicske
  • Alapterület: 135 m²
  • Ár: 99 900 000 Ft (255 499 €)
  • Feltöltés dátuma: 2025.12.16.
  •  
Családi ház

Eladó ház, Érd

Keresés azonosító alapján: HI-2483751
  • Érd
  • Alapterület: 74 m²
  • Telekterület: 1 151 m²
  • Ár: 71 000 000 Ft (181 586 €)
  • Feltöltés dátuma: 2025.10.01.
  •  
Családi ház

Eladó ház, Budapest 21. ker.

Keresés azonosító alapján: HI-2482257
  • Budapest XXI.
  • Alapterület: 250 m²
  • Telekterület: 671 m²
  • Ár: 134 990 000 Ft (345 243 €)
  • Feltöltés dátuma: 2025.09.30.
  •  
Tégla lakás

Eladó lakás, Budapest 20. ker.

Keresés azonosító alapján: HI-2498102
  • Budapest XX.
  • Alapterület: 46 m²
  • Ár: 39 999 999 Ft (102 302 €)
  • Feltöltés dátuma: 2025.11.04.
  •  
Facebook
Blogger
Twitter
Tweets by hasznaltingatla
Flickr