Eladó lakás, Bicske

Ingatlan azonosító: HI-2513061

Fejér megye - Bicske, Új építésű lakás


99 900 000 Ft (255 499 €)

  • Hirdetés feladója: Ingatlaniroda
  • Pontos cím: Bicske
  • Típus: Eladó
  • Belső irodai azonosító: LK078448-5108572
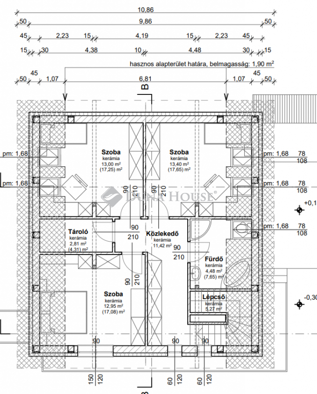
  • Alapterület: 135 m²
  • Építés éve: 2026
  • Egész szobák száma (12 m² felett): 5 db
  • Félszobák száma (6-12 m² között): 0 db
  • Fürdőszobák száma: 2 db
  • Emelet: földszint
  • Ingatlan állapota: új építésű
  • Komfort: összkomfortos
  • Fűtés: egyéb
  • Lift: nincs
  • Akadálymentesített: nincs
  • Energiatanúsítvány: A+
  • Napelem van?: nincs
  • Erkély: van
  • Légkondicionáló: nincs
  • Tájolás: dél-kelet
  • A lakás falazata: Tégla

Leírás

Eladó egy lenyűgöző, kivételesen energiatakarékos A+ energetikai besorolású családi ház Bicske kertvárosi részén, mely közel esik a boltokhoz, így a mindennapok kényelme garantált. Ez a napfényes otthon egy modern hőszivattyús fűtésrendszerrel, padlófűtéssel rendelkezik, amely kifinomult komfortérzetet biztosít az otthon minden szegletében.Ne hagyja ki ezt a ritka lehetőséget, hogy a Bicskei kertváros részén lévő, minden modern kényelemmel felszerelt otthon tulajdonosa legyen. Vegye fel a kapcsolatot, hogy személyesen is megismerkedhessen ezzel a különleges ingatlannal. 500 nm telek jár az ingatlanhoz, kertkapcsolattal.Az otthon nemcsak praktikus, hanem elegáns is. A tér tágas elrendezése és a 16 négyzetméteres terasz kiváló lehetőséget kínál a pihenésre és a családi, baráti összejövetelekre egyaránt. Az ingatlan sokoldalúsága teszi azt igazán vonzóvá, hiszen alkalmas mind azok számára, akik a városi élet nyüzsgéséhez közel, de mégis nyugodt, zöldövezeti környezetben szeretnének élni.A ház 30-as téglából épült, 15 centiméteres szigeteléssel és 3 rétegű nyílászárókkal van felszerelve, ami hozzájárul a hőmérséklet optimális szabályozásához a hideg hónapokban is. A klímaberendezések minden helységben jelen vannak, és megkönnyítik a nyári hónapokat, így egész évben kellemes a lakókörnyezet.

E-mail küldése a hirdetőnek

Hibás hirdetés bejelentése

Sikeres elküldtük a hiba bejelentést.

Hirdető adatai


Schmetz József
E-mail cím: schmetz.jozsef@dh.hu
Telefonszám: +36703116455
Duna House
Hirdetés feladója: Ingatlaniroda
Ingatlaniroda: Duna House
E-mail cím: halasztelek@dh.hu
Telefonszám: +3624790134

Képek



Térkép


Ajánlott ingatlanok

Új építésű lakás

Eladó lakás, Bicske

Keresés azonosító alapján: HI-2513058
  • Bicske
  • Alapterület: 92 m²
  • Ár: 99 900 000 Ft (255 499 €)
  • Feltöltés dátuma: 2025.12.16.
  •  
Könnyűszerkezetes ház

Eladó ház, Halásztelek

Keresés azonosító alapján: HI-2461910
  • Halásztelek
  • Alapterület: 57 m²
  • Telekterület: 218 m²
  • Ár: 42 500 000 Ft (108 696 €)
  • Feltöltés dátuma: 2025.08.13.
  •  
Hétvégi házas

Eladó ház, Szigetszentmiklós

Keresés azonosító alapján: HI-2461867
  • Szigetszentmiklós
  • Alapterület: 62 m²
  • Telekterület: 678 m²
  • Ár: 31 500 000 Ft (80 563 €)
  • Feltöltés dátuma: 2025.08.13.
  •  
Ikerház

Eladó ház, Halásztelek

Keresés azonosító alapján: HI-2498099
  • Halásztelek
  • Alapterület: 120 m²
  • Telekterület: 595 m²
  • Ár: 110 000 000 Ft (281 330 €)
  • Feltöltés dátuma: 2025.11.04.
  •  
Facebook
Blogger
Twitter
Tweets by hasznaltingatla
Flickr