Eladó lakás, Budapest 2. ker.

Ingatlan azonosító: HI-2472000

Budapest - Budapest II., Tégla lakás


240 000 000 Ft (613 811 €)

  • Hirdetés feladója: Ingatlaniroda
  • Pontos cím: Budapest II.
  • Típus: Eladó
  • Belső irodai azonosító: LK056238-5030092
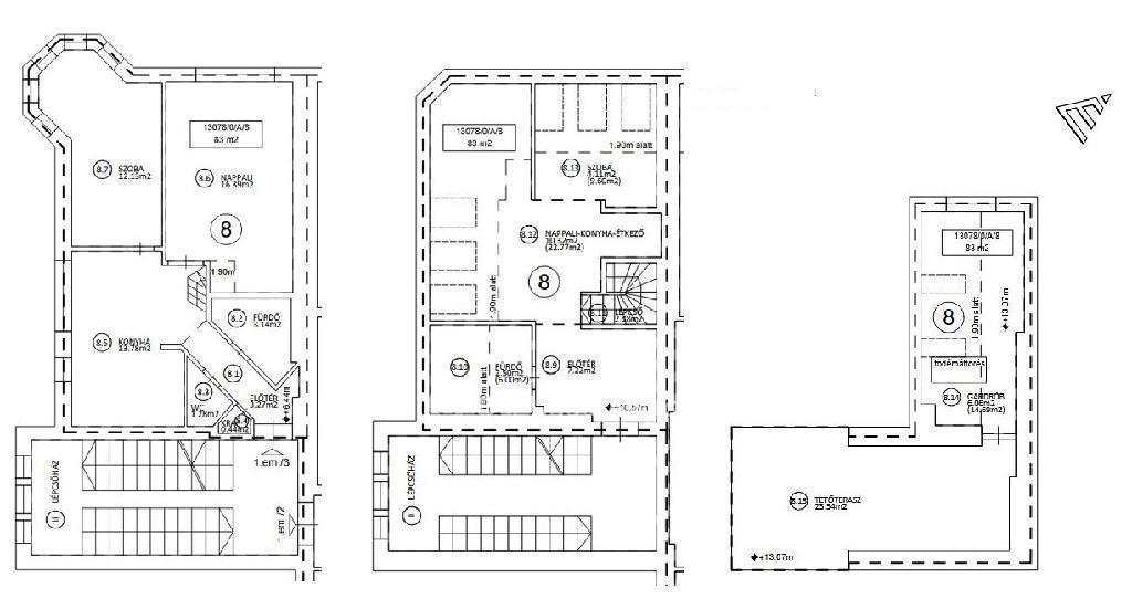
  • Alapterület: 97 m²
  • Építés éve: 2020
  • Egész szobák száma (12 m² felett): 2 db
  • Félszobák száma (6-12 m² között): 1 db
  • Fürdőszobák száma: 2 db
  • Emelet: földszint
  • Ingatlan állapota: újszerű
  • Fűtés: egyéb
  • Lift: van
  • Akadálymentesített: nincs
  • Napelem van?: nincs
  • Erkély: van
  • Légkondicionáló: nincs
  • Tájolás: kelet
  • A lakás falazata: Tégla

Leírás

Eladó egy különleges ingatlan a festői szépségű II. kerületben, a békés és csendes Fillér utcában. Az ingatlan egy 2020-ban épült, modern és elegáns, háromszintes épületben található. A lakás varázslatos kertre néző kilátással bír, mely minden évszakban lenyűgöző látványt nyújt.Az ingatlan korszerű mennyezeti hűtés-fűtés rendszerrel van ellátva, ami garantálja az otthon kellemes hőmérsékletét az év minden napján. A belső tér nappali plusz két hálószobából és egy gardróbszobából áll, így bőven van hely a család minden tagjának. Az otthon élményét fokozza a 20 négyzetméteres terasz, valamint a 100 négyzetméteres saját használatú kert, ami tökéletes helyszín a pihenésre és a baráti összejöveteleknek.Az ingatlanhoz tartozik egy mélygarázs és egy tároló is, melyek extra kényelmet nyújtanak a lakóknak. A praktikusság és a luxus így tökéletes harmóniában van ebben az ingatlanban.Ha ilyen kivételes otthonra vágyik, ne hagyja figyelmen kívül Budapest II. kerületét. Ez a környék nem csak azért kiváló, mert központi helyet foglal el, hanem a csendes, zöldövezeti jellege miatt is. A közeli Margitsziget pedig valódi menedéket nyújt a város zajától, ahol a természet közelsége és a friss levegő garantált. Egy ilyen lakás nem csak otthon, hanem befektetés is egyben Budapest egyik legkeresettebb részén. Irányár: 240000000 Ft Érdeklődni: Gujdár Zsuzsa 30/425-0224 gujdar.zsuzsa@dh.hu Referencia szám: LK056238

E-mail küldése a hirdetőnek

Hibás hirdetés bejelentése

Sikeres elküldtük a hiba bejelentést.

Hirdető adatai

Gujdár Zsuzsa
E-mail cím: gujdar.zsuzsa@dh.hu
Telefonszám: +36304250224
Duna House
Hirdetés feladója: Ingatlaniroda
Ingatlaniroda: Duna House
E-mail cím: csillaghegy@dh.hu
Telefonszám: +3614370244

Képek



Térkép


Ajánlott ingatlanok

Tégla lakás

Eladó lakás, Budapest 3. ker.

Keresés azonosító alapján: HI-2332704
  • Budapest III.
  • Alapterület: 152 m²
  • Ár: 139 900 000 Ft (357 801 €)
  • Feltöltés dátuma: 2024.11.18.
  •  
Tégla lakás

Eladó lakás, Budapest 12. ker.

Keresés azonosító alapján: HI-2470228
  • Budapest XII.
  • Alapterület: 80 m²
  • Ár: 149 990 000 Ft (383 606 €)
  • Feltöltés dátuma: 2025.09.03.
  •  
Tégla lakás

Eladó lakás, Budapest 13. ker.

Keresés azonosító alapján: HI-2470206
  • Budapest XIII.
  • Alapterület: 117 m²
  • Ár: 179 900 000 Ft (460 102 €)
  • Feltöltés dátuma: 2025.09.03.
  •  
Tégla lakás

Eladó lakás, Budapest 3. ker.

Keresés azonosító alapján: HI-2327090
  • Budapest III.
  • Alapterület: 127 m²
  • Ár: 205 000 000 Ft (524 297 €)
  • Feltöltés dátuma: 2024.11.06.
  •  
Facebook
Blogger
Twitter
Tweets by hasznaltingatla
Flickr