Eladó Lakás, Budapest 7. ker.

Ingatlan azonosító: HI-2547666

Budapest - Budapest VII., Tégla lakás


67 900 000 Ft (185 519 €)

  • Hirdetés feladója: Ingatlaniroda
  • Pontos cím: Budapest VII.
  • Típus: Eladó
  • Belső irodai azonosító: M323028-5168239
  • Alapterület: 41 m²
  • Egész szobák száma (12 m² felett): 1 db
  • Félszobák száma (6-12 m² között): 0 db
  • Ingatlan állapota: felújított
  • Komfort: összkomfortos
  • Fűtés: gáz (cirko)
  • Lift: van
  • Akadálymentesített: nincs
  • Napelem van?: nincs
  • Erkély: nincs
  • Légkondicionáló: nincs
  • Kilátás: utcai
  • Tájolás: dél-kelet
  • A lakás falazata: Tégla
  • Közös költség mértéke: 13000

Leírás

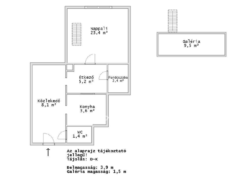
Galériás, prémium bútorozott lakás eladó a Dohány utcában ENGLISH DESCRIPTION BELOW!!! Budapest VII. kerületében, a Dohány utcában eladó egy 41 nm-es (valóságban 44 nm), galériás, világos lakás, közel 4 méteres belmagassággal. A nagypolgári hangulatú ingatlan asztalos által készített prémium bútorokkal berendezett, amelyek a vételár részét képezik. A lakás gondosan karbantartott, egy tisztasági festés után azonnal költözhető. Főbb jellemzők: -41 nm (valóságban 44 nm), galériás kialakítás, közel 4 m belmagasság -Prémium, egyedi bútorok, külön WC és fürdő, DK-i tájolás, világos terek -Azonnal költözhető A galéria kényelmes hálórészként vagy dolgozósarokként használható, így a nappali teljes értékű élettér marad. A környék infrastruktúrája kiváló: Astoria és Blaha Lujza tér (M2 metró), villamosok, buszok, valamint számos étterem, kávézó és üzlet pár perc sétára található. Ideális választás saját otthonnak vagy befektetésnek a belváros egyik legkeresettebb részén. További információért keressen bizalommal! ⸻ Gallery Apartment with Premium Furniture for Sale in Dohány Street In Budapest VII district, on Dohány Street, a 41 sqm (44 sqm in reality) bright apartment with gallery and nearly 4-meter ceiling height is for sale. The apartment is furnished with custom-made premium furniture, included in the purchase price. The property is well maintained and move-in ready after a simple repaint. Key features: - 41 sqm (44 sqm in reality), gallery level, nearly 4 m ceiling height - Custom premium furniture, separate bathroom and WC - Bright southeast orientation, move-in ready The gallery is perfect for a bedroom or workspace, leaving the living room as a full living area. Excellent location: Astoria and Blaha Lujza tér (M2 metro), trams, buses, restaurants, cafés and shops are all within a few minutes’ walk. Ideal choice for homebuyers or investors in the heart of Budapest. Contact for more details! Referencia szám: M323028-HI

E-mail küldése a hirdetőnek

Hibás hirdetés bejelentése

Sikeres elküldtük a hiba bejelentést.

Hirdető adatai

Gregoryan Artur
E-mail cím: artur.gregoryan@otpip.hu
Telefonszám: +36706300162
OTPip
Hirdetés feladója: Ingatlaniroda
Ingatlaniroda: OTPip
E-mail cím: pannonia@otpip.hu
Telefonszám: +36707082439

Képek



Térkép


Ajánlott ingatlanok

Tégla lakás

Eladó Lakás, Budapest 8. ker.

Keresés azonosító alapján: HI-2552955
  • Budapest VIII.
  • Alapterület: 86 m²
  • Ár: 124 000 000 Ft (338 798 €)
  • Feltöltés dátuma: 2026.03.21.
  •  
Tégla lakás

Eladó Lakás, Budapest 7. ker.

Keresés azonosító alapján: HI-2472323
  • Budapest VII.
  • Alapterület: 103 m²
  • Ár: 94 500 000 Ft (258 197 €)
  • Feltöltés dátuma: 2025.09.10.
  •  
Tégla lakás

Eladó Lakás, Budapest 10. ker.

Keresés azonosító alapján: HI-2539198
  • Budapest X.
  • Alapterület: 54 m²
  • Ár: 55 000 000 Ft (150 273 €)
  • Feltöltés dátuma: 2026.02.19.
  •  
Tégla lakás

Eladó Lakás, Budapest 8. ker.

Keresés azonosító alapján: HI-2552954
  • Budapest VIII.
  • Alapterület: 113 m²
  • Ár: 99 000 000 Ft (270 492 €)
  • Feltöltés dátuma: 2026.03.21.
  •  
Facebook
Blogger
Twitter
Tweets by hasznaltingatla
Flickr