Eladó Lakás, Budapest 7. ker.

Ingatlan azonosító: HI-2474883

Budapest - Budapest VII., Tégla lakás


103 500 000 Ft (264 706 €)

  • Hirdetés feladója: Ingatlaniroda
  • Pontos cím: Budapest VII. Király utca
  • Típus: Eladó
  • Belső irodai azonosító: M312019-5037839
  • Alapterület: 87 m²
  • Építés éve: 1930
  • Egész szobák száma (12 m² felett): 3 db
  • Félszobák száma (6-12 m² között): 0 db
  • Emelet: 2. emelet
  • Ingatlan állapota: felújított
  • Komfort: komfortos
  • Fűtés: gáz (cirko)
  • Lift: nincs
  • Akadálymentesített: nincs
  • Napelem van?: nincs
  • Erkély: nincs
  • Légkondicionáló: van
  • Kilátás: utcai
  • A lakás falazata: Tégla
  • Közös költség mértéke: 17000

Leírás

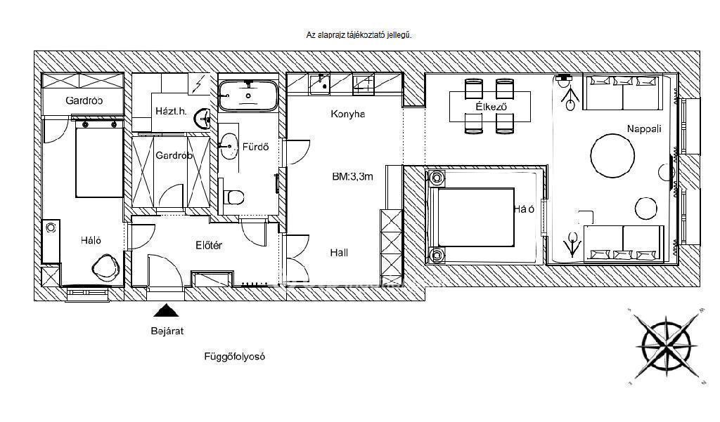
RAGYOGÓ LOKÁCIÓ! ÓRIÁSI LEHETŐSÉG! A nyüzsgő belváros közepén, a Király utcában eladó egy kétszintes, polgári ház második emeletén lévő rendkívül világos, igényes kialakítáősú, ötletesen elosztott, 87 négyzetméteres lakás. Pár percre vagyunk az Oktogontól, az Andrássy úttól. A lakás, jelenlegi felújításának végéhez közeledik, már csak az egyik hálószoba padlóburkolatának kiválasztása szükséges, illetve a konyha berendezése várat magára, amik már a leendeő tulajdonos ízlését tudják tükrözni. ( A vételár a jelenlegi állapotra vonatkozik.) A lakás elosztása: a tágas előszobába lépve jobbra található egy dupla ajtó, ami a hall, nappali, konyha, étkező részbe vezet, ennek nagy ablakai az utcára néznek, ebből a nappaliból lett leválasztva egy hálószoba. Az előszobában balra indulva van egy belső udvarra néző, nagyon csendes és világos háló, külön kis gardróbszobával. Ugyancsak az előszobából nyílik a bejárattal szemben egy gardróbszoba, ebből egy háztartási helyiség ahol a kondenzációs kazán kapott helyet, valamint van itt kialakított vizes blokk is egy mosdóval. Itt van a mosógép kiállás is. A tágas, kádas fürdőszoba az előszobából és a hallból is megközelíthető. A lakáshoz tartozik egy 20 nm-es pince is! Elrendezéséből adódóan könnyen akár két különálló lakrészre is alakítható, így egy kb. 30nm és egy 50 nm lakótér lehet belőle közös előtérrel. Ezt a fajta átalakítást megkönnyíti, hogy már most két külön villanyóra és vízóra van a lakásban!! Az álmennyezetnek köszönhetően a már meglévő klíma mellé egy másik beltéri egységet is könnyen fel lehet tenni. Be van kötve az éjszakai áramhoz szükséges villanyóra is . A meglévő nagy alapterület lehetővé teszi az új tulajdonos számára az elmélkedést egy pazar kialakítású otthon, vagy egy kiváló üzleti lehetőség kialakítására. A társasház rendelkezik Airbnb engedéllyel. A lokáció miatt igencsak kiváló a hely közlekedése. 1-es metró, 4-, 6-os villamos , troli a közelben. A Városliget kb.10 perc sétára található, a Jókai tér, a Liszt Ferenc tér karnyújtásnyira. A Hunyadi téri fedett vásárcsarnok, piac, patika, háziorvos, szakorvosi rendelők, Penny, játszótér, park mind 100-150 méteres körzetben találhatóak. Éttermek, gyorséttermek, nemzetközi konyhák, bárok sokasága van elérhető távolságban. Amit még mi tudunk: Az OTP Ingatlanpont, mint egyetlen közvetlen banki hátterű ingatlanközvetítő társaság teljes körű ügyintézéssel áll eladóik és vevőik rendelkezésére! Piaci és kedvezményes hitel- valamint lízingkonstrukciókat kínálunk mint Otthon Start, lakásvásárlási hitel, szabad felhasználású hitel, babaváró hitel, CSOK Plusz-intézés, Otthonfelújítási Támogatás, egyéb felújítási hitelek. Az adásvételi szerződés megkötéséhez igény szerint megbízható ügyvédi közreműködést is biztosítunk. S ami még hátra van: Megnézni, beleszeretni, megvásárolni!!! Its great!

E-mail küldése a hirdetőnek

Hibás hirdetés bejelentése

Sikeres elküldtük a hiba bejelentést.

Hirdető adatai

Kalmár Károly József
E-mail cím: karoly.jozsef.kalmar@otpip.hu
Telefonszám: +36-70-635-7445
OTPip
Hirdetés feladója: Ingatlaniroda
Ingatlaniroda: OTPip
E-mail cím: szepvolgyi@otpip.hu
Telefonszám: +36-1-326-0273

Képek



Térkép


Ajánlott ingatlanok

Tégla lakás

Eladó Lakás, Budapest 8. ker.

Keresés azonosító alapján: HI-2459737
  • Budapest VIII. Gutenberg tér
  • Alapterület: 113 m²
  • Ár: 145 000 000 Ft (370 844 €)
  • Feltöltés dátuma: 2025.08.09.
  •  
Tégla lakás

Eladó Lakás, Budapest 6. ker.

Keresés azonosító alapján: HI-2451848
  • Budapest VI. Teréz körút
  • Alapterület: 60 m²
  • Ár: 79 900 000 Ft (204 348 €)
  • Feltöltés dátuma: 2025.08.01.
  •  
Tégla lakás

Eladó Lakás, Budapest 7. ker.

Keresés azonosító alapján: HI-2375409
  • Budapest VII. Izabella utca
  • Alapterület: 41 m²
  • Ár: 68 500 000 Ft (175 192 €)
  • Feltöltés dátuma: 2025.02.18.
  • klímás
Tégla lakás

Eladó Lakás, Budapest 5. ker.

Keresés azonosító alapján: HI-2328289
  • Budapest V. Sas utca
  • Alapterület: 106 m²
  • Ár: 160 000 000 Ft (409 207 €)
  • Feltöltés dátuma: 2024.11.08.
  •  
Facebook
Blogger
Twitter
Tweets by hasznaltingatla
Flickr