Eladó Üzem, Kecskemét

Ingatlan azonosító: HI-2544472

Bács-Kiskun megye - Kecskemét, Műhely


629 000 000 Ft (1 718 579 €)

  • Hirdetés feladója: Ingatlaniroda
  • Pontos cím: Kecskemét
  • Típus: Eladó
  • Belső irodai azonosító: M319196-5113225
  • Alapterület: 13 305 m²
  • Építés éve: 2025
  • Fűtés: egyéb
  • Napelem van?: nincs

Leírás

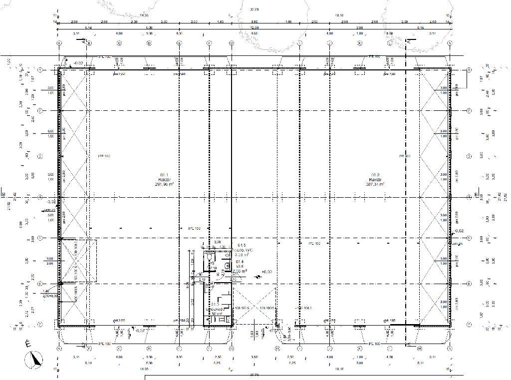
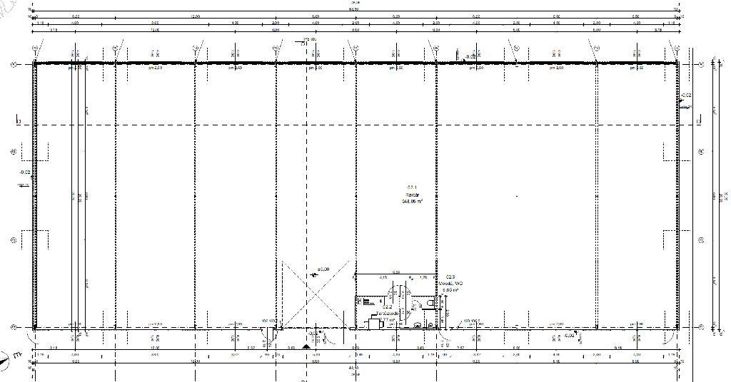
Tisztelt Érdeklődő! Kecskeméten, főút melletti ipari övezetben kínálunk eladásra egy 1656 nm-es, két új csarnokból álló ipari ingatlan 13 305 nm-es telken. A beépíthetőség 40%, így még nagyjából 3660 nm csarnok építhető. Főbb adatok: Két csarnok: 694 nm + 962 nm(építés: 2024-2025). Acélvázas szerkezet, 10 cm fal- és 12 cm tetőszendvicspanel. Belmagasság: 6-7,5 m. Hőszivattyú és padlófűtés a nagyobb csarnokban. 60 kW-os napelemrendszer. Áram: 3×32 A bekötve, saját trafóval 3×1000 A-ig bővíthető. Irodai és szociális blokk. 2 fúrt kút, öntözőrendszer, riasztó. Tervezett 2870 nm térburkolat (alapanyag megvan). Zárt, bekerített telek 3 bejárattal. Kiváló elhelyezkedés, ideális raktározásra, logisztikára vagy gyártásra. Referencia szám: M319196

E-mail küldése a hirdetőnek

Hibás hirdetés bejelentése

Sikeres elküldtük a hiba bejelentést.

Hirdető adatai

Sárközi Zsolt
E-mail cím: zsolt.sarkozi@otpip.hu
Telefonszám: +36-70-735-9544
OTPip
Hirdetés feladója: Ingatlaniroda
Ingatlaniroda: OTPip
E-mail cím: falk@otpip.hu
Telefonszám: +36-70-626-5258

Képek



Térkép


Ajánlott ingatlanok

Új építésű lakás

Eladó Lakás, Budapest 23. ker.

Keresés azonosító alapján: HI-2549369
  • Budapest XXIII.
  • Alapterület: 39 m²
  • Ár: 58 817 000 Ft (160 702 €)
  • Feltöltés dátuma: 2026.03.12.
  • klímás
Új építésű lakás

Eladó Lakás, Budapest 13. ker.

Keresés azonosító alapján: HI-2544443
  • Budapest XIII.
  • Alapterület: 54 m²
  • Ár: 88 120 000 Ft (240 765 €)
  • Feltöltés dátuma: 2026.03.02.
  •  
Új építésű lakás

Eladó Lakás, Budapest 23. ker.

Keresés azonosító alapján: HI-2549368
  • Budapest XXIII.
  • Alapterület: 51 m²
  • Ár: 76 370 000 Ft (208 661 €)
  • Feltöltés dátuma: 2026.03.12.
  • klímás
Tégla lakás

Eladó Lakás, Budapest 13. ker.

Keresés azonosító alapján: HI-2559276
  • Budapest XIII.
  • Alapterület: 69 m²
  • Ár: 115 000 000 Ft (314 208 €)
  • Feltöltés dátuma: 2026.04.09.
  •  
Facebook
Blogger
Twitter
Tweets by hasznaltingatla
Flickr