KARBANTARTOTT CSALÁDI HÁZ JÁNOSSOMORJÁN – PINCÉVEL, GARÁZZSAL, JÓ ELRENDEZÉSSEL!

Ingatlan azonosító: HI-2546617

Győr-Moson-Sopron megye - , Családi ház


50 000 000 Ft (130 208 €)

  • Hirdetés feladója: Ingatlaniroda
  • Pontos cím:
  • Típus: Eladó
  • Belső irodai azonosító: M323565-5164342
  • Alapterület: 100 m²
  • Telekterület: 557 m² ( 155 négyszögöl )
  • Építés éve: 1975
  • Egész szobák száma (12 m² felett): 3 db
  • Félszobák száma (6-12 m² között): 0 db
  • Ingatlan állapota: közepes állapotú
  • Komfort: összkomfortos
  • Fűtés: gáz (cirko)
  • Pince: nincs
  • Akadálymentesített: nincs
  • Energiatanúsítvány: E
  • Napelem van?: nincs
  • Légkondicionáló: nincs

Leírás

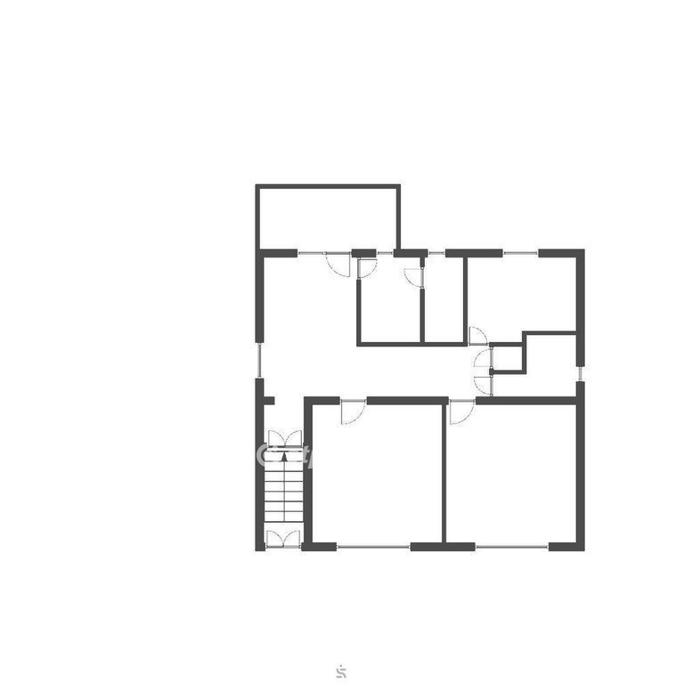
KARBANTARTOTT CSALÁDI HÁZ JÁNOSSOMORJÁN – PINCÉVEL, GARÁZZSAL, JÓ ELRENDEZÉSSEL! Jánossomorja – csendes, nyugodt környezet Eladásra kínálok Jánossomorja kedvelt, nyugodt részén egy 100 m²-es, 3 szobás, jó állapotú családi házat, amely egy 557 m²-es, könnyen karbantartható telken helyezkedik el. Az ingatlan praktikus elosztású, világos terekkel rendelkezik, és ideális választás lehet családok számára. ________________________________________ Főbb jellemzők: 100 m² lakótér 3 szoba + nappali Konyha + tároló Fürdőszoba + külön WC Korszerűsített gázfűtés (4 éve cserélt kazán) Tégla építés (1975) Délnyugati tájolás – napfényes terek 5 cm külső hőszigetelés Tetőszerkezet jó állapotú ________________________________________ Extra lehetőségek: Kb. 60 m²-es pince (részben a ház alatt), felújított elektromos hálózattal – ideális tárolásra, műhelynek vagy hobbitérnek Zárt garázs az udvaron 557 m²-es telek – kerti pihenő, játszótér vagy grillező kialakítására is alkalmas Az ingatlan energetikai besorolása: E, érvényes energetikai tanúsítvánnyal. ________________________________________ Elhelyezkedés Kiváló infrastruktúra: - iskola - óvoda - boltok - buszmegálló Minden fontos szolgáltatás pár perces sétával elérhető. ________________________________________ Ez az ingatlan ideális választás: - családok számára - nyugodt, élhető környezetet keresőknek - jó ár-érték arányú házat keresőknek ________________________________________ Az OTP Ingatlanpont irodánk előnyei: Ügyfeleinknek lehetőségük van az OTP Bank által nyújtott kedvező hitel-, kamat-, és díjkedvezmények igénybevételére, szakképzett és tapasztalt hitel ügyintézőnk által. Referenciaszám: M323565 𝐍𝐞 𝐡𝐚𝐠𝐲𝐣𝐚 𝐤𝐢 - 𝐡𝐢́𝐯𝐣𝐨𝐧 𝐦𝐨𝐬𝐭 𝐚 𝐦𝐞𝐠𝐭𝐞𝐤𝐢𝐧𝐭𝐞́𝐬𝐞́𝐫𝐭! Menich Julianna 𝑰𝒏𝒈𝒂𝒕𝒍𝒂𝒏𝒔𝒛𝒂𝒌é𝒓𝒕ő, 𝑻𝒆𝒍: +36-70-621-7737 Referencia szám: M323565

E-mail küldése a hirdetőnek

Hibás hirdetés bejelentése

Sikeres elküldtük a hiba bejelentést.

Hirdető adatai

Menich Julianna Erzsébet
E-mail cím: erzsebet.menich.julianna@otpip.hu
Telefonszám: +36706217737
OTPip
Hirdetés feladója: Ingatlaniroda
Ingatlaniroda: OTPip
E-mail cím: mosonmagyarovar@otpip.hu
Telefonszám: +36706398927

Képek



Térkép


Ajánlott ingatlanok

Családi ház

Luxus életstílus az osztrák határ közelében – Levélen!

Keresés azonosító alapján: HI-2527046
  • Levél
  • Alapterület: 185 m²
  • Telekterület: 649 m²
  • Ár: 276 000 000 Ft (718 750 €)
  • Feltöltés dátuma: 2026.01.28.
  •  
Családi ház

TÁGAS, DUPLAKOMFORTOS CSALÁDI HÁZ ELADÓ CSORNÁN

Keresés azonosító alapján: HI-2539497
  • Csorna
  • Alapterület: 144 m²
  • Telekterület: 767 m²
  • Ár: 104 900 000 Ft (273 177 €)
  • Feltöltés dátuma: 2026.02.19.
  •  
Családi ház
  • Győr
  • Alapterület: 89 m²
  • Telekterület: 597 m²
  • Ár: 69 900 000 Ft (182 031 €)
  • Feltöltés dátuma: 2026.01.31.
  •  
Családi ház
  • Győr
  • Alapterület: 130 m²
  • Telekterület: 1 371 m²
  • Ár: 56 900 000 Ft (148 177 €)
  • Feltöltés dátuma: 2026.03.04.
  •  
Facebook
Blogger
Twitter
Tweets by hasznaltingatla
Flickr