Kiváló állapotú, tágas családi ház eladó Mosonmagyaróváron – belváros közeli, mégis csendes utcában!

Ingatlan azonosító: HI-2511690

Győr-Moson-Sopron megye - Mosonmagyaróvár, Családi ház


120 000 000 Ft (338 028 €)

  • Hirdetés feladója: Ingatlaniroda
  • Pontos cím: Mosonmagyaróvár
  • Típus: Eladó
  • Belső irodai azonosító: M317888-5105903
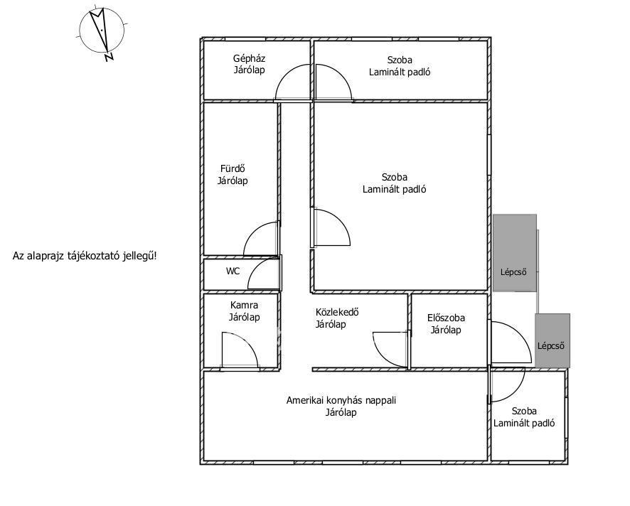
  • Alapterület: 154 m²
  • Telekterület: 714 m² ( 199 négyszögöl )
  • Építés éve: 1980
  • Egész szobák száma (12 m² felett): 3 db
  • Félszobák száma (6-12 m² között): 1 db
  • Ingatlan állapota: felújított
  • Komfort: összkomfortos
  • Fűtés: gáz (cirko)
  • Pince: nincs
  • Akadálymentesített: nincs
  • Napelem van?: nincs
  • Légkondicionáló: nincs

Leírás

Kiváló állapotú, tágas családi ház eladó Mosonmagyaróváron – belváros közeli, mégis csendes utcában! Költözésre kész állapot, karbantartott otthon, garázzsal! Mosonmagyaróvár – kedvelt családi házas övezet Alapterület: 154 m² Telek: 714 m² 3 szoba + 1 félszoba Garázs + zárt kocsibeálló Referenciaszám: M317888 ________________________________________ Eladásra kínálok Mosonmagyaróvár egyik közkedvelt, csendes, mégis jól megközelíthető részén egy folyamatosan karbantartott, kiváló állapotú családi házat, amely azonnal költözhető és minden kényelmi feltételt biztosít új tulajdonosának. A tégla építésű, szigetelt, napfényes otthon kiváló elrendezésű, 3 szoba + 1 félszoba, tágas nappali, garázs, udvari kocsibeálló, elektromos kapu, gondozott kert teszi teljessé. Főbb jellemzők: 154 m² hasznos alapterület 714 m² telek 3+1 tágas szoba korszerűsített fűtés – gázcirkó radiátoros + padlófűtés 5 cm szigetelés elektromos kapu garázs és saját beálló részlegesen bútorozott ________________________________________ Elhelyezkedés és környezet A ház elhelyezkedése rendkívül előnyös: - pár perc autópálya elérés - közel az osztrák határ - gyors kapcsolat Győr felé - csendes családi házas utca - belváros könnyen elérhető Ideális azon családok számára, akik csendes, biztonságos környezetben, mégis városhoz közel keresik új otthonukat. ________________________________________ Az OTP Ingatlanpont irodánk előnyei: CSOK és 3%-os OTTHON START PROGRAM igénybe vehető. Plusz ügyfeleinknek lehetőségük van az OTP Bank által nyújtott kedvező hitel-, kamat-, és díjkedvezmények igénybevételére, szakképzett és tapasztalt hitel ügyintézőnk által. ________________________________________ Keressen bizalommal a megtekintésért! Akár hétvégén is szívesen segítek időpont-egyeztetésben. Referenciaszám: M317888 Az energetikai tanúsítvány készítése folyamatban van, amint rendelkezésre áll, úgy azzal a hirdetés frissítésre kerül. 𝐍𝐞 𝐡𝐚𝐠𝐲𝐣𝐚 𝐤𝐢 - 𝐡𝐢́𝐯𝐣𝐨𝐧 𝐦𝐨𝐬𝐭 𝐚 𝐦𝐞𝐠𝐭𝐞𝐤𝐢𝐧𝐭𝐞́𝐬𝐞́𝐫𝐭! Menich Julianna 𝑰𝒏𝒈𝒂𝒕𝒍𝒂𝒏𝒔𝒛𝒂𝒌é𝒓𝒕ő, 𝑻𝒆𝒍: +36-70-621-7737 Referencia szám: M317888

E-mail küldése a hirdetőnek

Hibás hirdetés bejelentése

Sikeres elküldtük a hiba bejelentést.

Hirdető adatai

Menich Julianna Erzsébet
E-mail cím: erzsebet.menich.julianna@otpip.hu
Telefonszám: +36706217737
OTPip
Hirdetés feladója: Ingatlaniroda
Ingatlaniroda: OTPip
E-mail cím: mosonmagyarovar@otpip.hu
Telefonszám: +36302960101

Képek



Térkép


Ajánlott ingatlanok

Családi ház

MINŐSÉG, NYUGALOM ÉS ENERGIATAKARÉKOSSÁG NYÚL KÖZPONTJÁBAN

Keresés azonosító alapján: HI-2528167
  • Nyúl
  • Alapterület: 143 m²
  • Telekterület: 810 m²
  • Ár: 146 000 000 Ft (411 268 €)
  • Feltöltés dátuma: 2026.01.31.
  •  
Családi ház
  • Mosonmagyaróvár
  • Alapterület: 70 m²
  • Telekterület: 480 m²
  • Ár: 37 900 000 Ft (106 761 €)
  • Feltöltés dátuma: 2026.03.13.
  •  
Családi ház

FELÚJÍTOTT CSALÁDI HÁZ ELADÓ VÁMOSSZABADIN

Keresés azonosító alapján: HI-2558834
  • Vámosszabadi
  • Alapterület: 72 m²
  • Telekterület: 1 138 m²
  • Ár: 69 500 000 Ft (195 775 €)
  • Feltöltés dátuma: 2026.04.07.
  •  
Családi ház
  • Bakonyszentlászló
  • Alapterület: 125 m²
  • Telekterület: 921 m²
  • Ár: 75 000 000 Ft (211 268 €)
  • Feltöltés dátuma: 2026.02.23.
  •  
Facebook
Blogger
Twitter
Tweets by hasznaltingatla
Flickr